Nachhaltigkeit in Serie
Typensporthallen in Berlin von Scholl Architekten
Die modularen Typensporthallen in Berlin von Scholl Architekten weisen eine klare Formensprache auf. © Hans Jürgen Landes Fotografie
Berlin freut sich über neun neue Dreifeldsporthallen, die Scholl Architekten in typisierter Modulbauweise entwickelten. Die zukunftsweisenden Entwürfe setzen auf nachhaltige Materialien sowie Zeit- und Kosteneffizienz.


Die hohe Sporthalle wird von zwei niedrigeren Baukörpern längsseitig gefasst. © Hans Jürgen Landes Fotografie
Typisierte Modulbauweise
Scholl Architekten gewannen mit ihrem Konzept einen nicht offenen Wettbewerb, den das Land Berlin auslobte. Die Typisierung und die Standardisierung der Entwürfe ermöglichen effiziente Planungs- und Fertigungsprozesse sowie eine kurze Bauzeit.
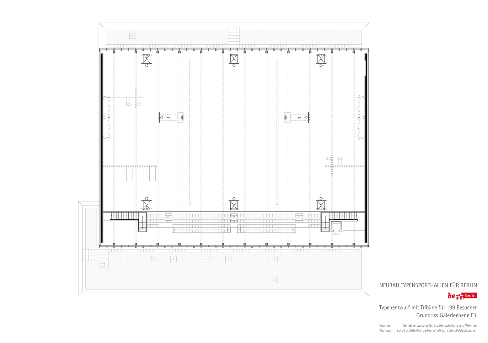
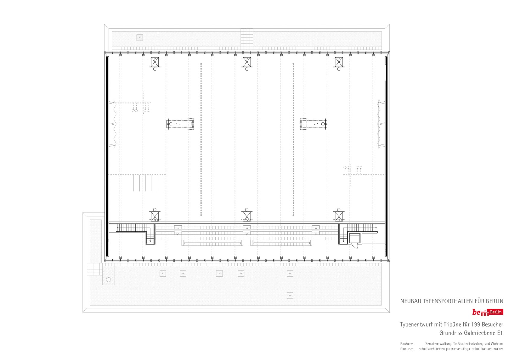
Anpassbarer Grundriss
Das Raumprogramm umfasst neben der Sportfläche eine Zuschauertribüne, Umkleideräume, einen Mehrzweckraum und gegenüberliegend die Geräteräume. Eine Erschließungsachse verbindet beide Eingänge. Durch die Spiegelung des Grundrisses passen sich die Hallen an die jeweiligen Standorte an.


Die Tragwerkselemente aus Brettschichtholz und die horizontal lamellierten Prallwände prägen den Innenraum. © Hans Jürgen Landes Fotografie
Tragwerk aus Holz
Die hohe, zentrale Halle wird an ihren Längsseiten von niedrigeren Gebäudeteilen gefasst. Für eine angenehme Atmosphäre im Inneren sorgen die Tragwerkselemente aus Brettschichtholz und die horizontal lamellierten Prallwände. Die transluzente Dreifachverglasung versorgt das Halleninnere mit schlagschattenfreiem Tageslicht. Eine Pfosten-Riegel-Fassade aus Holz und Alu gliedert diese raumhohen Öffnungen.


Raumhohe, transluzente Fensteröffnungen füllen die Halle mit schlagschattenfreiem Tageslicht. © Hans Jürgen Landes Fotografie
Nachhaltige Materialien
Holz ist das bestimmende Material der Sporthallen. Der Einsatz des Naturbaustoffs für die Konstruktion, die Gebäudehülle und die Innengestaltung ist nicht nur wirtschaftlich gedacht, sondern vor allem nachhaltig. Das Holz stammt aus PEFC-zertifizierten Forstbetrieben des österreichischen Wechselgebiets.


Vertikale Gliederung der oberen Längsseite durch Holz-Alu-Pfosten-Riegel-Fassade, © Hans Jürgen Landes Fotografie
Sägeraue Weißtanne für die Fassade
Die Giebelseiten bleiben fensterlos. Vorvergraute, sägeraue Weißtannenbretter beplanken die Fassade. Die Vorfertigung der Holzbauelemente ermöglicht eine schnelle Ausführung vor Ort bei höchster Präzision.


Fassade aus vorvergrauten Weißtannenbrettern, © Hans Jürgen Landes Fotografie
Nachhaltig bauen
Mit der Verwendung des nachwachsenden Rohstoffs Holz, der möglichen Trennbarkeit der Bauteilschichten und einer hohen Energieeffizienz beweisen Scholl Architekten, dass Modulbau zukunftsfähig ist. Der bewusste Blick auf die Umwelt zeigt sich auch in der Einrichtung von Fledermaushabitaten im Giebel und verdeutlicht, dass Architektur zum Artenschutz beitragen kann.
Die Standorte der ersten neun Typensporthallen in Berlin finden Sie hier.
Architektur: Scholl Architekten Partnerschaft mbB
Bauherr: Land Berlin, Senatsverwaltung für Stadtentwicklung Bauen und Wohnen
Standort: Berlin (DE)
Tragwerksplanung: HELBER+RUFF Beratende Ingenieure
Technische Ausrüstung: Heimann Ingenieure
Holzbau: Rubner
Landschaftsarchitektur: Frank Kiessling Landschaftsarchitekten
Bauphysik, Akustik: rw bauphysik
Orientierungssystem: Büro für Gestaltung Wangler & Abele
Überflutungsnachweis: G.U.B. Ingenieur AG




















