Typologische Vielfalt: Wohnkomplex in Paris von Moussafir Architectes und Nicolas Hugoo
Foto: Hervé Abbadie
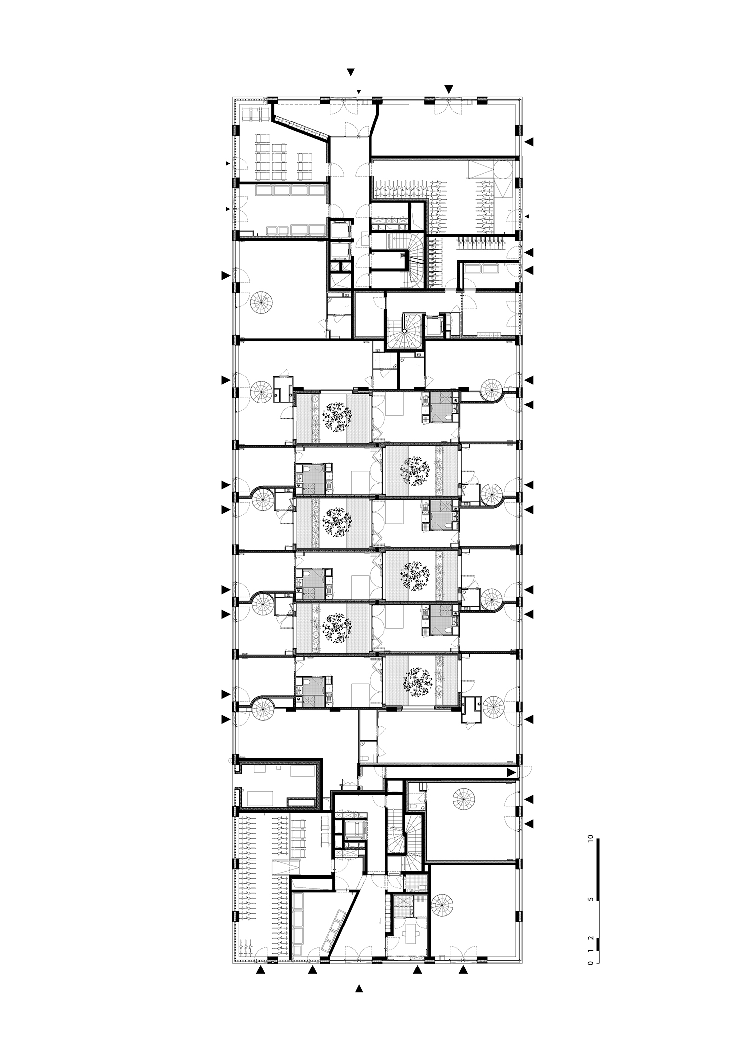
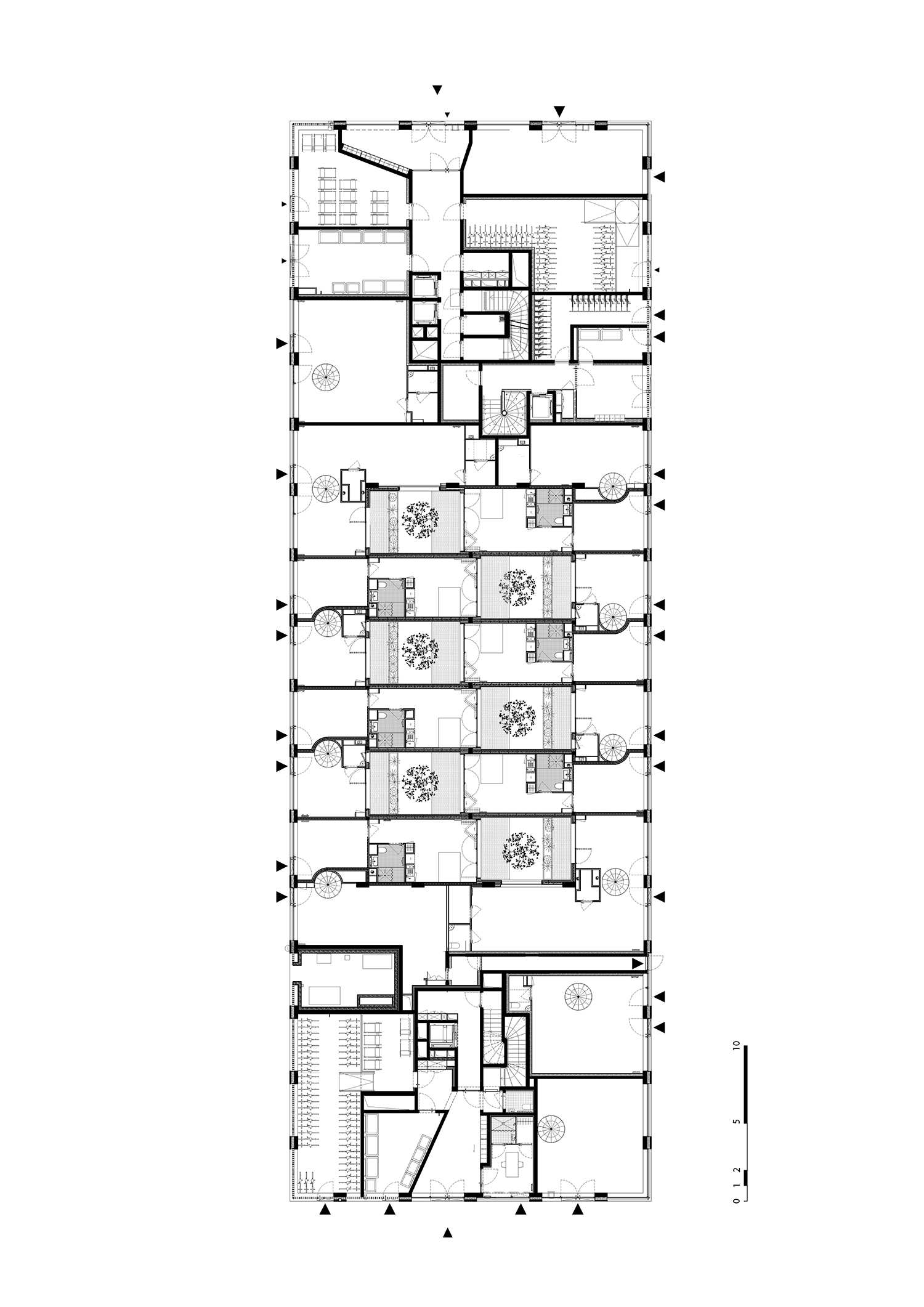
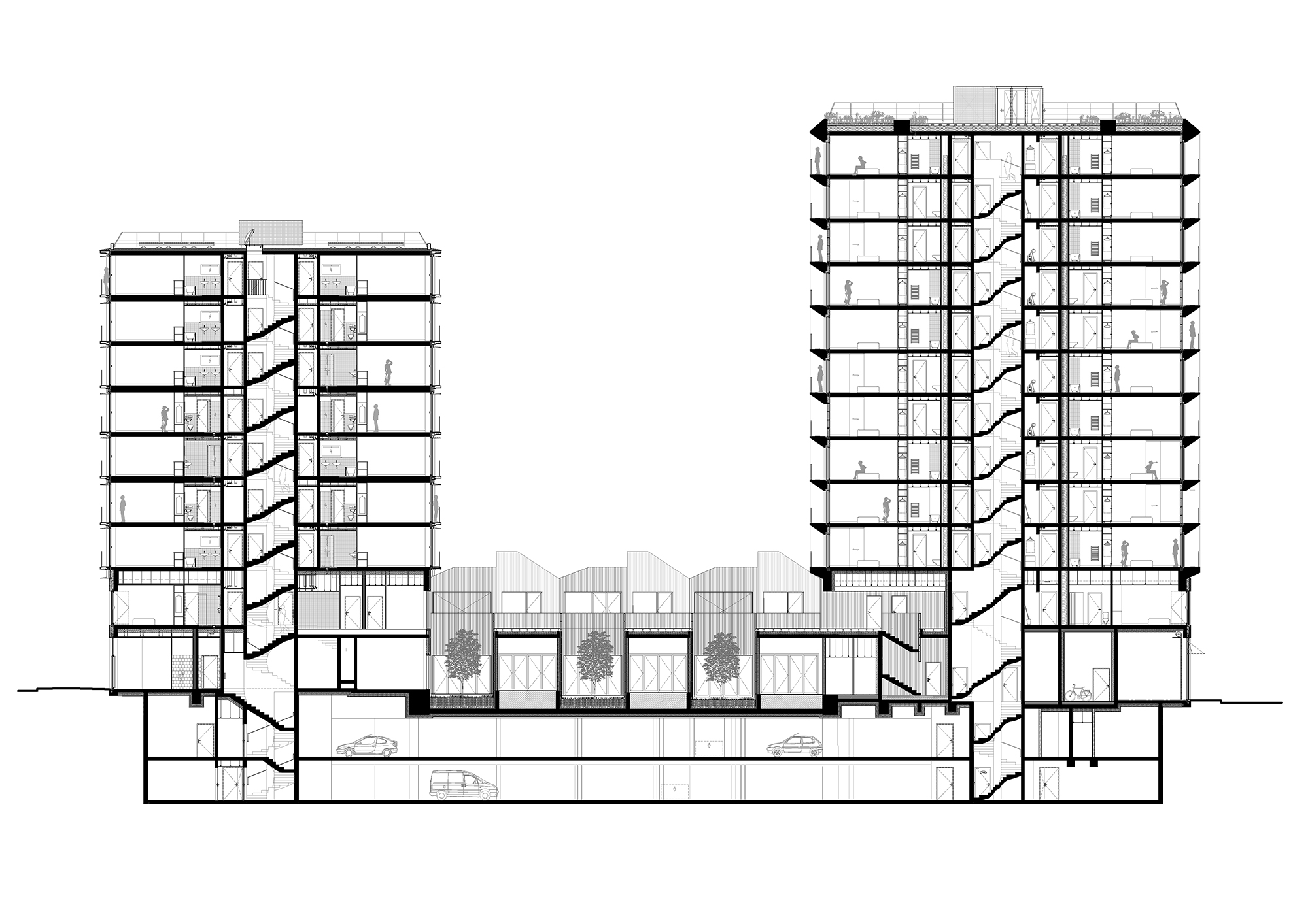
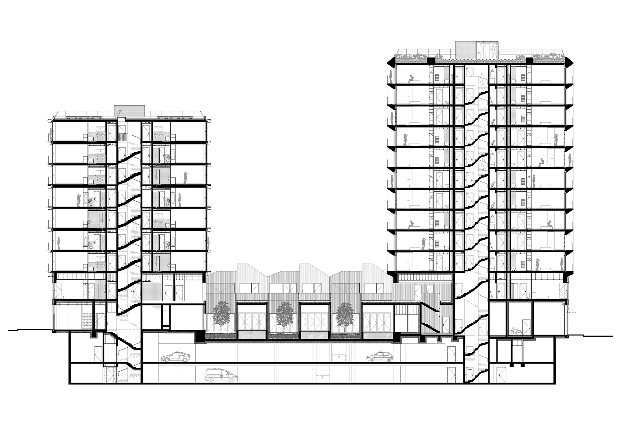
An der Porte de la Chapelle im Norden von Paris wird derzeit ein ehemaliges Bahnareal neu bebaut. Der Rahmenplan des Büros AUC macht dafür klare Vorgaben: Über einer zweigeschossigen Sockelbebauung mit Sohos – Mieteinheiten, die je eine Wohnung und ein Büro oder Ladenlokal umfassen – entstehen auf jeder Parzelle zwei Wohnhochhäuser mit bis zu 50 m Höhe.
In den beiden Hochhäusern von Jacques Moussafir Architectes und Nicolas Hugoo Architecture gibt es insgesamt 105 Sozialwohnungen, viele davon mit Panoramablick über die Dächer von Paris. Die Herausforderung bestand darin, in den bis zu 25 m tiefen Volumina funktionierende Wohnungsgrundrisse unterzubringen. Dabei griffen die beiden Architekturbüros zu ähnlichen Lösungen: Rund um einen zentralen Erschließungskern sind die Sanitärräume untergebracht, weiter außen folgen die Wohn- und Schlafräume mit großzügigen Öffnungen nach draußen. Im neungeschossigen, niedrigeren der beiden Türme (G1) arbeiteten Nicolas Hugoo und sein Team überdies mit Maisonettewohnungen und bis zu 18 m2 großen Eckterrassen, um Licht ins Gebäudeinnere zu bringen. Lärchenholzpfosten gliedern die großen Glasflächen, davor laufen Staketengeländer über die gesamte Gebäudebreite durch. Abgehängte, leicht auskragende Metalldecken verleihen den Deckenrändern eine filigrane Ästhetik.
Ganz anders der zwölfgeschossige Wohnturm G2 von Moussafir Architectes: Neben dem Kern tragen hier große Dreiecksstützen aus Ortbeton die Geschossdecken und gliedern zugleich die Fassaden. Passend dazu sind auch die Deckenränder abgeschrägt. Vorteil der Lösung: Die Trennwände zwischen den Räumen und Wohnungen sind nichttragend und so langfristig flexibel versetzbar. Zugunsten einer rationaleren Planung wiederholen sich die Geschossgrundrisse alle vier Etagen, außerdem sind die einander gegenüber liegenden Fassaden jeweils gleich.
Bei den 18 Sohos im Gebäudesockel handelt es sich um zweigeschossige, im Inneren durch Wendeltreppen erschlossene Mieteinheiten mit je einer oberen Wohn- und einer unteren Arbeitsetage. Letztere ist von der Straße zugänglich und öffnet sich Richtung Blockinnenraum zu sechs kleinen Patios. In der Etage darüber erschließt ein längs durch den Gebäudeblock verlaufender Gitterroststeg die Wohneinheiten der Sohos. Der Gebäudesockel zeigt zwei sehr unterschiedliche Gesichter: Seine Straßenfassaden bestehen aus einem regelmäßigen Betonfertigteilraster. Im Blockinneren dagegen löst er sich dagegen in 18 metallverkleidete „Häuschen“ mit flach geneigten Dächern auf. Ihre Dächer, Fassaden und Fensterläden bestehen aus teils perforierten, gerippten Aluminiumpaneelen. Die Stege, Brüstungen und Pflanzkübel sind dagegen aus verzinkten Stahlrosten hergestellt.






















