Über den Dächern Wiens: Pavillon von O&O Baukunst
Foto: Hertha Hurnaus
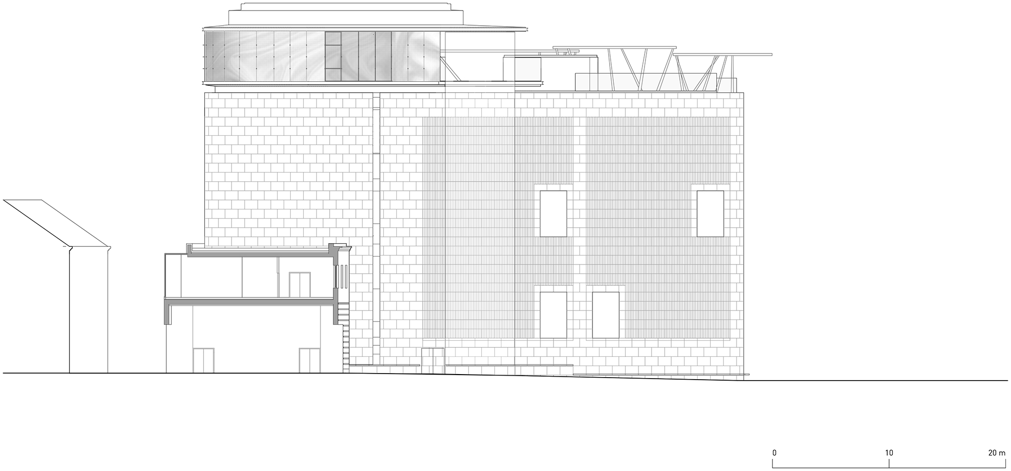
Luftig und leicht schwebt der neue Pavillon von O&O Baukunst auf dem Dach des Leopold Museums in Wien. Die Architekten assoziieren die Dachaufstockung mit einer Libelle, „flirrend leicht und zugleich machtvoll durch ihre Position auf der Terrasse des Museums“. Die durchgängig verglasten Fassaden des Pavillons ziehen dynamische Kurven und Kreise, die einen Kontrapunkt zur strengen Geometrie des steinernen Museumsbaukörpers setzen. Wirkt dieser wie ein hermetischer Kunstkubus mit Fassaden aus Muschelkalk, so öffnet sich der Pavillon mit 500 m2 Grundfläche mit einem fließenden und offenen Raum auf seine vorgelagerte Terrasse. Von dort fällt der Blick von oben auf das einzigartige städtebauliche Ensemble des Museumsquartiers und die Wiener Innenstadt.
Lichtkreise als Signal für die Kunst
Der festliche Raum des Dachpavillons soll für Veranstaltungen und Präsentationen genutzt werden – als eine Art Stadtsalon für den Austausch von Meinungen und Ideen. Ein flirrendes Netz aus Millionen weißer Punkte in der gläsernen Außenhülle schützt den Innenraum vor direkter Sonneneinstrahlung. Gleichzeitig stellt die Intervention der Künstlerin Eva Schlegel sicher, dass der Raumeindruck fließend und offen bleibt. Durch einen Panoramaaufzug, dessen dünner Schaft in den Hof reicht, ist der gläserne Baukörper der Libelle mit dem Boden verbunden. Die große Panoramaterrasse ist für die Öffentlichkeit zugänglich und lädt in den warmen Sommermonaten auch dank einer Freiluftbar zum Verweilen ein. Drei Lichtkreise auf schräg gestellten Stützen setzen ein deutliches Zeichen für die Kunst: Die Installation der Künstlerin Brigitte Kowanz greift die Form, Größe und Anordnung der drei Kreise im Grundriss der Libelle auf. Tagsüber erscheinen sie als filigrane Skulptur. Nachts hingegen werden sie zum weithin sichtbaren ein Signal für die Kunst und der Wiener Innenstadt.















