Überraschungsei: Wohnhaus in Pully von Localarchitecture
Fotos: Michel Bonvin
Sichtbarer Wohlstand, aber ein oft wenig treffsicherer Architekturgeschmack kennzeichnet die Wohngebiete von Pully, einem Vorort von Lausanne am Nordufer des Genfer Sees. Auch die Architekten von Localarchitecture konnten dem heterogenen Kontext wenig Reize abgewinnen. Daraus erklärt sich die Form, die sie ihrem Dreifamilienhaus im Chemin de Chamblandes gaben: turmartig aufragend, mit eiförmigem Grundriss und Exoskelett aus Sichtbeton, wie man es eher von Bürobauten als aus der Wohnarchitektur kennt. Kurzum: ein autonomes Objekt inmitten formloser Villen mit wuchernden Balkonen und Terrassen.
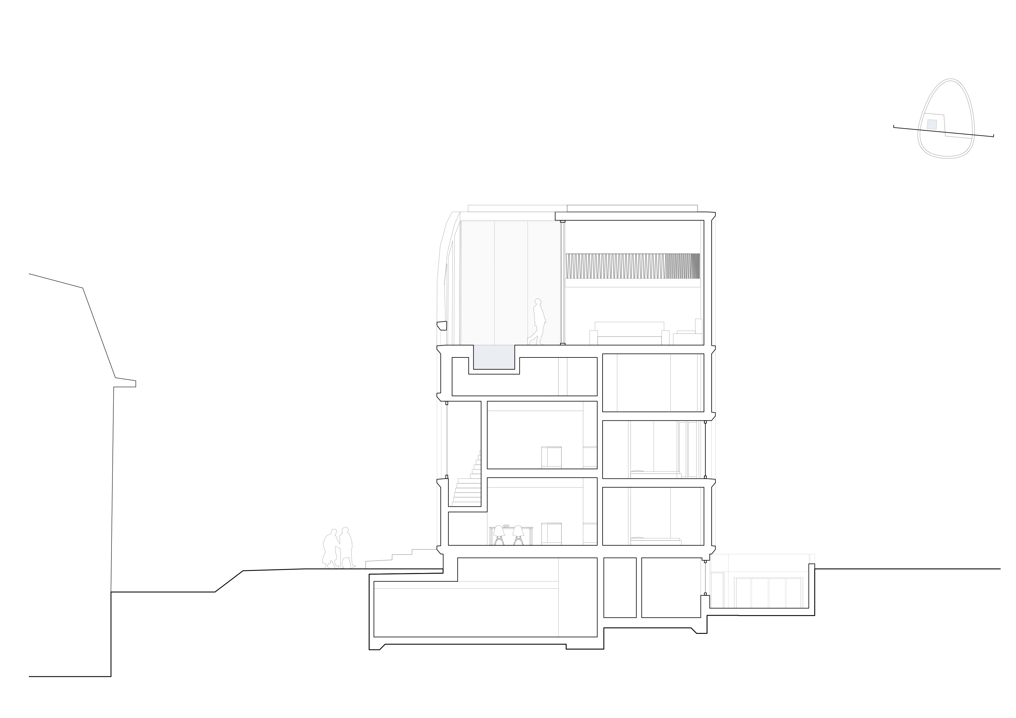
Mit seinen drei Vollgeschossen und den zurückgesetzten beiden Staffelgeschossen nutzt der Baukörper die Spielräume des Bebauungsplans bestmöglich aus. Die drei obersten Ebenen bewohnt der Hausherr selbst, die unteren Etagen sind vermietet. Durch den eiförmigen Grundriss sind sie im Süden etwas breiter als im Norden, haben dadurch eine bessere Aussicht Richtung Genfer See und versperren ihrerseits den nördlichen Nachbarn weniger den Blick.
Um die maximal erlaubte Gebäudehöhe einzuhalten, arbeiteten die Architekten mit gestuften Geschossdecken. Die Schlafräume im Norden sind niedriger als die Wohnräume im Süden. Unter der Dachterrasse fügten die Architekten ein niedriges Technikgeschoss ein, in das auch der Whirlpool der Hausherren integriert ist.
Weil in dem schmalen Gebäudegrundriss kein zentrales Treppenhaus Platz hatte, verläuft im Norden eine durchgehende, gekrümmte Treppenkaskade entlang der Fassade durch alle Geschosse. Die Fassade selbst ist tragend und besteht aus sandgestrahlten Fertigteilstützen sowie vor Ort betonierten, auskragenden Gesimsen entlang der Deckenränder. Auch die Geschossdecken wurden in Ortbeton erstellt. Die Gefache des Exoskeletts sind teils verglast und teils mit vorvergrauten Holzpaneelen geschlossen. Auch in den Innenräumen prägen Holz und Sichtbeton die Atmosphäre. Die Fassadenstützen sind auch auf der Innenseite sandgestrahlt, die Wände des Aufzugskerns erhielten dagegen eine raue Brettschalung. Ihre Struktur setzt sich in den Wandpaneelen und Einbaumöbeln aus Holz fort, mit denen die Architekten den ungewöhnlichen Ovalgrundriss bewohnbar machten.






















