Behutsame Sanierung
Umbau eines Altstadthauses von Angela Deuber Architects
Natürliches Licht durchflutet die Innenräume des sanierten Altstadthauses. © Schaub Stierli Fotografie
Mittels gezielter Eingriffe haben Angela Deuber Architects ein denkmalgeschütztes Altstadthaus in Zürich umgebaut. Die Maßnahmen sind darauf angelegt natürliches Tageslicht in alle Geschosse zu bringen und den ursprünglichen Charakter des Gebäudes wiederherzustellen.


Historische Fotografie des denkmalgeschützten Altstadthauses in Zürich, © Schaub Stierli Fotografie
Erweiterung
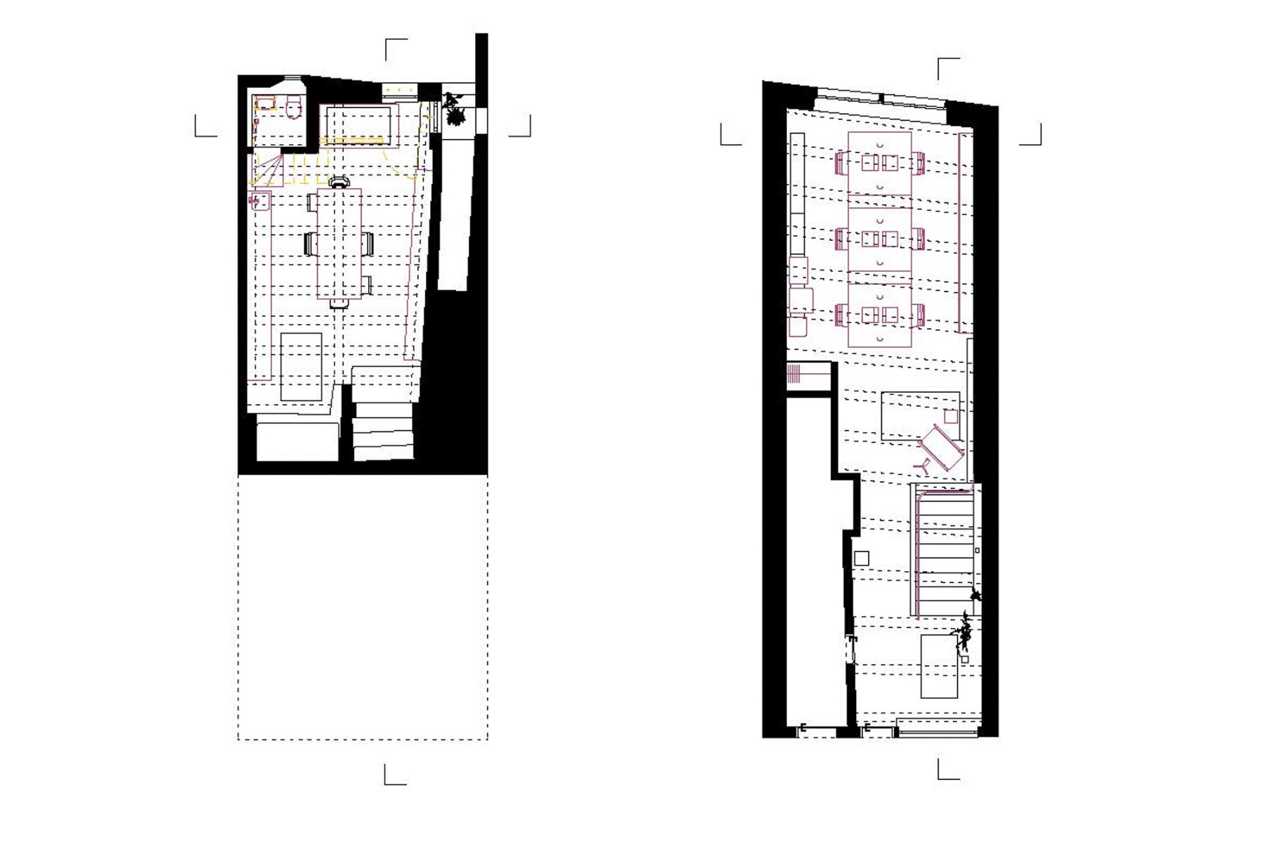
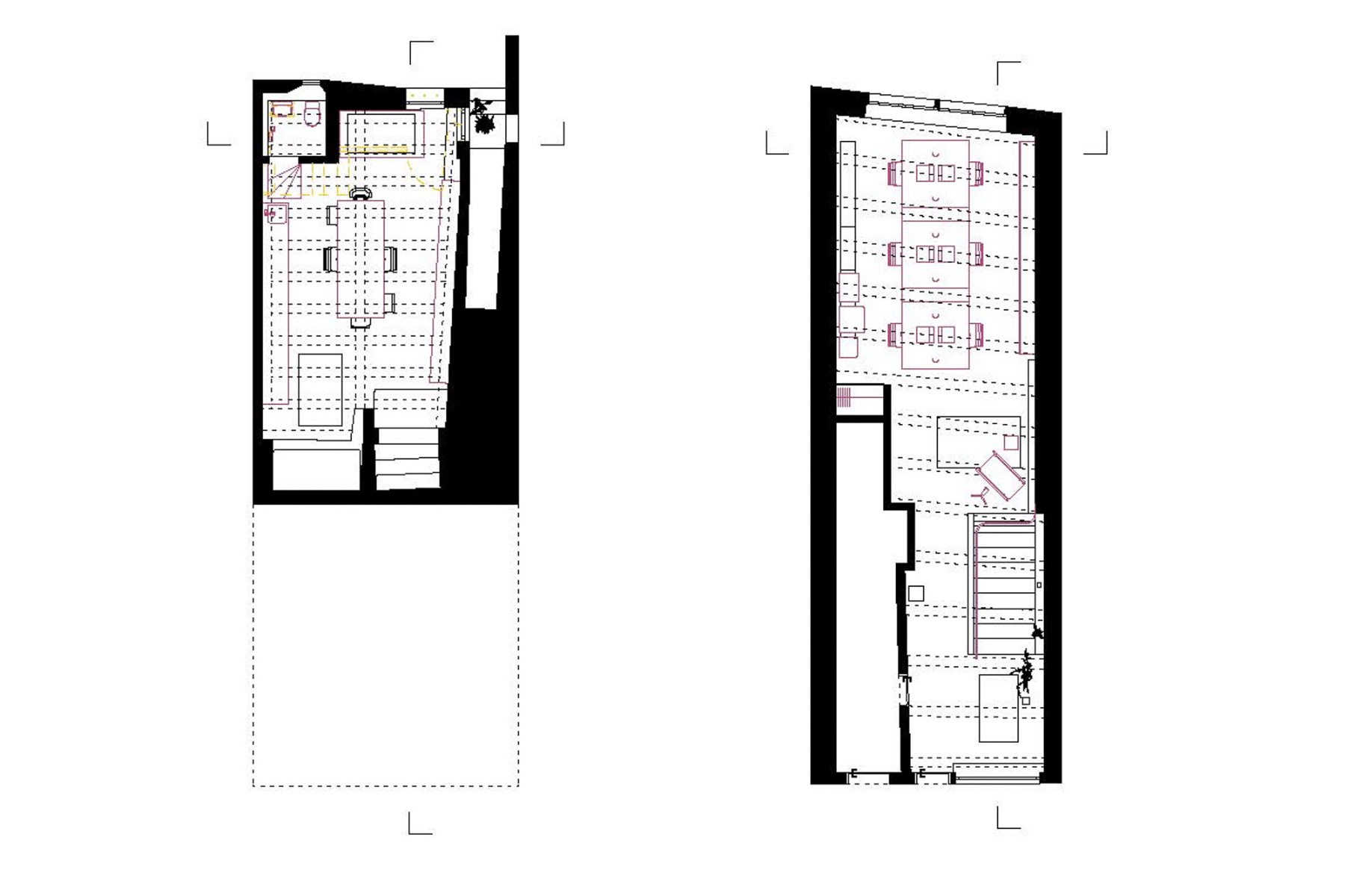
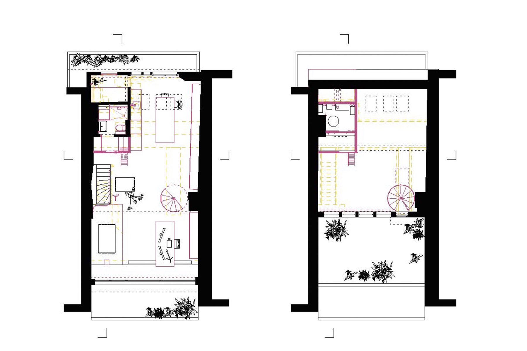
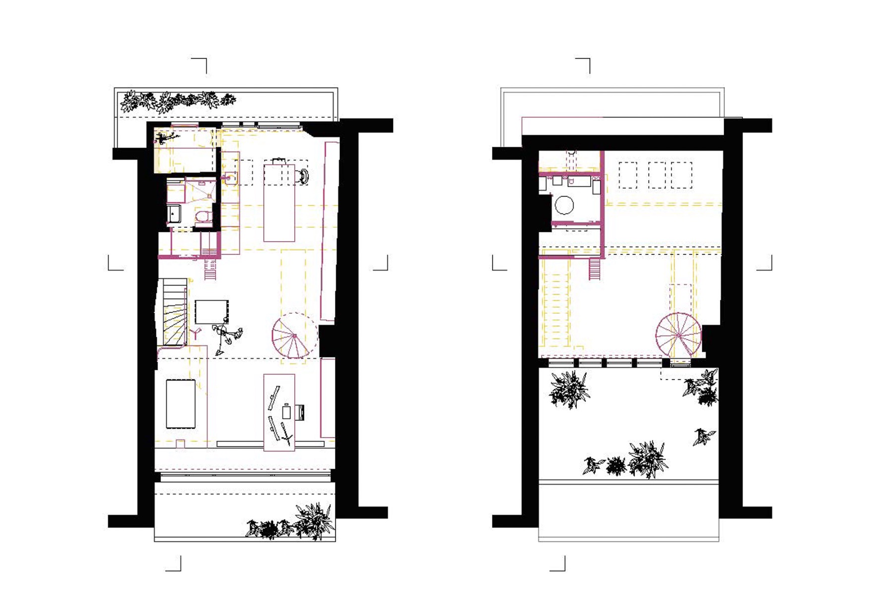
Das Gebäude wurde 1530 erbaut und weist einen sehr schmalen und langen Grundriss auf. Die Breite des Baus beträgt lediglich 4 m, während es sich in der Tiefe auf 16 m ausdehnt. Sowohl im 17. als auch im 19. Jahrhundert wurde der Baukörper erweitert und umgebaut, wodurch er heute acht Stockwerke aufweist.
Die Maßnahmen der Planer greifen vornehmlich im Untergeschoss in Kombination mit dem Erdgeschoss sowie im vierten und fünften Obergeschoss. In den unteren zwei Geschossen befinden sich Büroflächen, welche durch eine vorhandene Natursteintreppe verbunden sind. Der so entstandene Raum ist durchlaufend; seine lineare Raumstruktur wurde durch minimale bauliche Eingriffe verstärkt. Die Decke des Raums ist geprägt durch die originalen Holzbalken.


Originale Holzbalken an der Decke im Innenraum, © Schaub Stierli Fotografie
Durch das Entfernen einer 2 m dicken Wand im Untergeschoss wurde die Versorgung mit Tageslicht sichergestellt. Zudem ermöglicht die Topografie eine Öffnung in den Außenraum mit Zugang in den Innenhof. Eine Treppe aus Ortbeton überbrückt den Höhenunterschied zwischen Hauptraum und WC. Diese ist als additives Element klar von der bestehenden Struktur zu unterscheiden.


Treppe aus Ortbeton, © Schaub Stierli Fotografie


Untergeschoss mit originalen Steinwänden, © Schaub Stierli Fotografie
Der Umbau des vierten und fünften Obergeschosses macht die Höhe des Altstadthauses erlebbar. Die Raumhöhe von circa 6 m verleiht dem Raum seinen Atelier-Charakter. Die originalen Steinwände enden im vierten Obergeschoss und machen die ursprüngliche Dachform klar ablesbar. Diese offene Zurschaustellung von Alt und Neu zieht sich durch den gesamten Umbau und beweist einen geschickten Umgang mit der bestehenden Substanz.
Architektur: Angela Deuber Architects
Bauherr: privat
Standort: Zürich (CH)
Bauleitung: Angela Deuber Architects
Baumeister: Wanner & Lott















