Kunst im Kulturdenkmal
Umnutzung einer Zuckerfabrik in Ljubljana
© Miran Kambič
Das slowenische Studio Scapelab verwandelt die ehemalige Zuckerfabrik Cukrarna in Ljubljana in eine Kunstgalerie. Dafür setzen die Architekten in die behutsam sanierte Hülle des Kulturdenkmals einen neuen Kern.


© Miran Kambič
Der 1828 im Herzen der Stadt erbaute Industriekomplex blickt auf eine bewegte Geschichte zurück: Bereits 1845 wurde das Gebäude durch ein Feuer zerstört. Später Durch ein Feuer zerstört, wurden in dem wieder errichteten Bau in den Bau nach Zucker zunächst Tabak und Textilien hergestellt, bevor man ihn zuerst danach zum Kasernengebäude und anschließend zur Obdachlosenunterkunft umfunktionierte.
Lorem Ipsum: Zwischenüberschrift
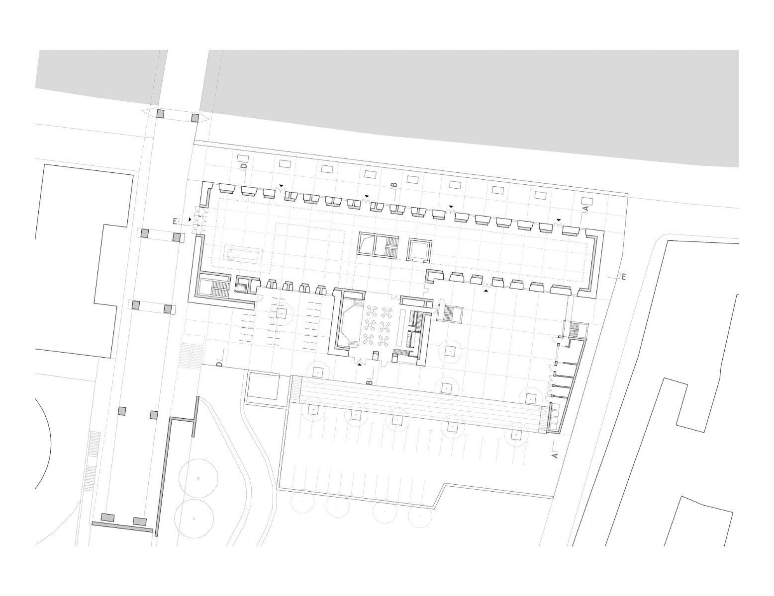
Nachdem das denkmalgeschützte Fabriksgebäude zuletzt immer mehr verfiel, sollte der Bau im Zuge eines 2009 von der Stadt ausgelobten Wettbewerbs mit neuem Leben erfüllt werden. Das ortsansässige Planerteam entwickelt dafür einen Entwurf, der die historische Gebäudehülle erhält, diese aber komplett aushöhlt. Mit ihren regelmäßigen, quadratischen Fensteröffnungen erstrahlen die mit Bedacht renovierten Lochfassaden nun mit Bedacht renoviert in schlichtem Weiß.


© Miran Kambič
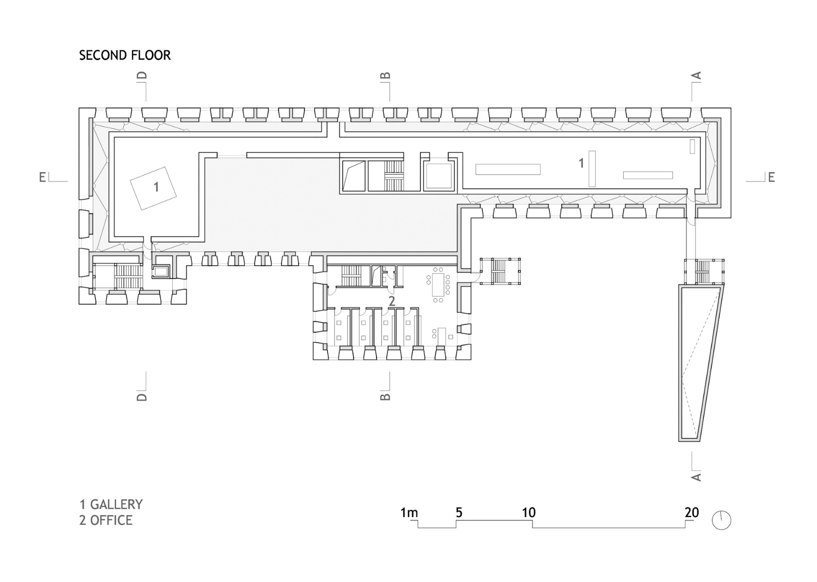
Im Inneren der entkernten Hülle dient eine neue Dachkonstruktion aus Stahl als Tragwerk für eine Struktur aus perforierten Aluminiumpaneelen. Das Volumen wird in den Bau eingehängt und schwebt über dem offenen Erdgeschoss. Alt und Neu heben sich durch einen Spalt zwischen den massiven Betonwänden der einstigen Fabrik und den glatten Oberflächen des Einbaus deutlich voneinander ab.


© Miran Kambič
Die Paneele sind nicht nur aus optischen, sondern auch aus funktionalen Gründen durchlocht: Sie regulieren mit schalldämpfenden Qualitäten die Akustik, fungieren als Beleuchtungsmittel und nehmen die Installationen ders Gebäudetechniksystems auf.


© Miran Kambič
In der leichten Lochblechstruktur entstehen auf mehreren Etagen multifunktionale Ausstellungsräume. Sie bieten – als White Cubes gestaltet – Platz für zeitgenössische Kunst und Kultur. Zusätzlich zu den Galerieflächen dient die renovierte Cukrarna- Galerie mit einem neuen Untergeschoss auch als Veranstaltungsort. Mit Sälen in verschiedenen Größen, Bühnen, Werkstätten und einem Café lädt der Kulturbau mit einem bunten Programm nicht nur zu ExpositionenAusstellungen, sondern auch zu Konzerten, Workshops und Vorträgen und bereichert so künftig die kulturelle Infrastruktur Ljubljanas.
Architektur: Scapelab
Bauherr: Stadt Ljubljana
Standort: Ljubljana (SI)
Tragwerksplanung: Elea IC
TGA-Planung: MENERGA
Lichtplanung: Arcadia lightwear
Energieplanung: EN PLUS
Generalunternehmen: Strabag
























