// Check if the article Layout ?>
Unkonventionelles Arbeiten: »workplace« in London
Foto: Hufton + Crow
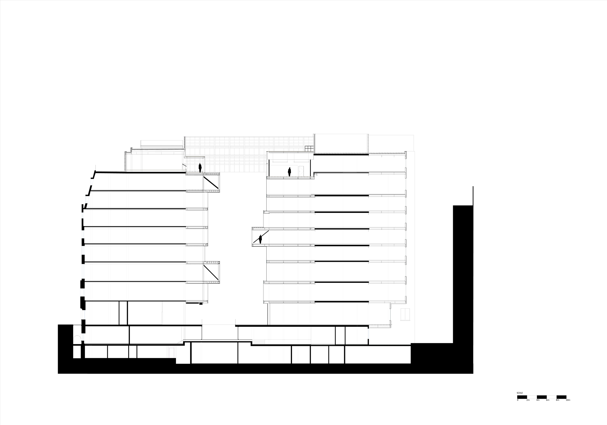
Der Bereich zwischen Shoreditch und der Londoner Innenstadt ist ein von Bürobauten geprägter Stadtteil, überwiegend aus dem Finanzsektor. Hier wurde nun ein großzügiges Arbeitsumfeld für den Bereich Medien und Technologie verwirklicht. Für die Realisierung der neuen Räumlichkeiten wurden drei bestehende Gebäude aus dem Jahre 1910–1930 umfassend saniert und erweitert. Auf 22.300 Quadratmeter wurde die Typologie konventioneller Londoner Bürogebäude überdacht und in eine moderne und alternative Werkstätte transformiert.
Ein 750 Quadratmeter großes Atrium bildet den sozialen und kommunikativen Dreh- und Angelpunkt von Alphabeta. Auf der innenliegenden, verglasten Ost- und Westfassade ragen Glaskuben drei Meter in den neungeschossigen Raum hinein. Sie fungieren als Besprechungsräume und ermöglichen vielfältige Blickbezüge im Inneren. Die Nordfassade hingegen wurde mit einer vertikalen Holzverschalung verkleidet. Der untere Teil wird durch eine großformatige Glasscheibe durchbrochen, die den Blick auf eine farblich auffällig gestaltete Rampe freigibt: Die großzügige Rampe verbindet das Straßenniveau mit dem Untergeschoss. Radfahrer können hier bequem und barrierefrei bis in den Fahrradraum fahren, der Platz für bis zu 250 Fahrzeuge bietet.
Im Erdgeschoss lassen sich vorrangig gemeinschaftlich nutzbare Einrichtungen wie ein fünf Meter langer Küchentisch, eine Bibliothek, ein Café sowie ein Basketballfeld finden, die die Aktivität und die Interaktion der Mitarbeiter untereinander stärken sollen. Vielfältige Oberflächen und Materialien, von Beton über Keramikfliesen, sowie Stahl und Holz, sorgen für optische Varietät. Auf dem Dach wurden weitere Büroräume integriert, die über Dachterrassen in den Außenraum erweitert werden können und weitläufige Ausblicke über London bieten. Zwei historische Türme, die bislang nicht betretbar waren, wurden zugänglich gemacht und in außergewöhnliche Besprechungsräume verwandelt.
Der neue »workplace« Alphabeta präsentiert sich als ein vielschichtiger Hybrid, bei dem die Realisation von offenen Arbeitsräumen sowie die kommunikative Ausrichtung des Projekts im Vordergrund standen. Das Innere des historischen Gebäudeensembles zeigt sich nun in einem modernen und bunten Gewand. Doch auch die charakteristischen Eigenarten der historischen Gemäuer wurden in das Konzept integriert: Stahlstützen, Gesimse, Mauerwerk oder eigenartige Niveauversprünge wurden nicht versteckt, sondern als spezifische Besonderheit selbstbewusst offengelegt.
Ein 750 Quadratmeter großes Atrium bildet den sozialen und kommunikativen Dreh- und Angelpunkt von Alphabeta. Auf der innenliegenden, verglasten Ost- und Westfassade ragen Glaskuben drei Meter in den neungeschossigen Raum hinein. Sie fungieren als Besprechungsräume und ermöglichen vielfältige Blickbezüge im Inneren. Die Nordfassade hingegen wurde mit einer vertikalen Holzverschalung verkleidet. Der untere Teil wird durch eine großformatige Glasscheibe durchbrochen, die den Blick auf eine farblich auffällig gestaltete Rampe freigibt: Die großzügige Rampe verbindet das Straßenniveau mit dem Untergeschoss. Radfahrer können hier bequem und barrierefrei bis in den Fahrradraum fahren, der Platz für bis zu 250 Fahrzeuge bietet.
Im Erdgeschoss lassen sich vorrangig gemeinschaftlich nutzbare Einrichtungen wie ein fünf Meter langer Küchentisch, eine Bibliothek, ein Café sowie ein Basketballfeld finden, die die Aktivität und die Interaktion der Mitarbeiter untereinander stärken sollen. Vielfältige Oberflächen und Materialien, von Beton über Keramikfliesen, sowie Stahl und Holz, sorgen für optische Varietät. Auf dem Dach wurden weitere Büroräume integriert, die über Dachterrassen in den Außenraum erweitert werden können und weitläufige Ausblicke über London bieten. Zwei historische Türme, die bislang nicht betretbar waren, wurden zugänglich gemacht und in außergewöhnliche Besprechungsräume verwandelt.
Der neue »workplace« Alphabeta präsentiert sich als ein vielschichtiger Hybrid, bei dem die Realisation von offenen Arbeitsräumen sowie die kommunikative Ausrichtung des Projekts im Vordergrund standen. Das Innere des historischen Gebäudeensembles zeigt sich nun in einem modernen und bunten Gewand. Doch auch die charakteristischen Eigenarten der historischen Gemäuer wurden in das Konzept integriert: Stahlstützen, Gesimse, Mauerwerk oder eigenartige Niveauversprünge wurden nicht versteckt, sondern als spezifische Besonderheit selbstbewusst offengelegt.
weitere Informationen:
Planung: Dezember 2012 - Juli 2013
Baubeginn: Februar 2013
Fertigstellung: September 2015
Projektleiter: Richard Hywel Evans
Team: Dickon Hayward, Tomos Owen, Joe Bamber, Thidaa Roberts, Tom Foster, Ben Nemeny
Projektmanagement: Quartz Project Services
Bauunternehmer: Galliford Try
Innenausbau: Studio RHE
Bauingenieur: Furness Partnership
M&E Ingenieur: URS
Planung: Dezember 2012 - Juli 2013
Baubeginn: Februar 2013
Fertigstellung: September 2015
Projektleiter: Richard Hywel Evans
Team: Dickon Hayward, Tomos Owen, Joe Bamber, Thidaa Roberts, Tom Foster, Ben Nemeny
Projektmanagement: Quartz Project Services
Bauunternehmer: Galliford Try
Innenausbau: Studio RHE
Bauingenieur: Furness Partnership
M&E Ingenieur: URS




























