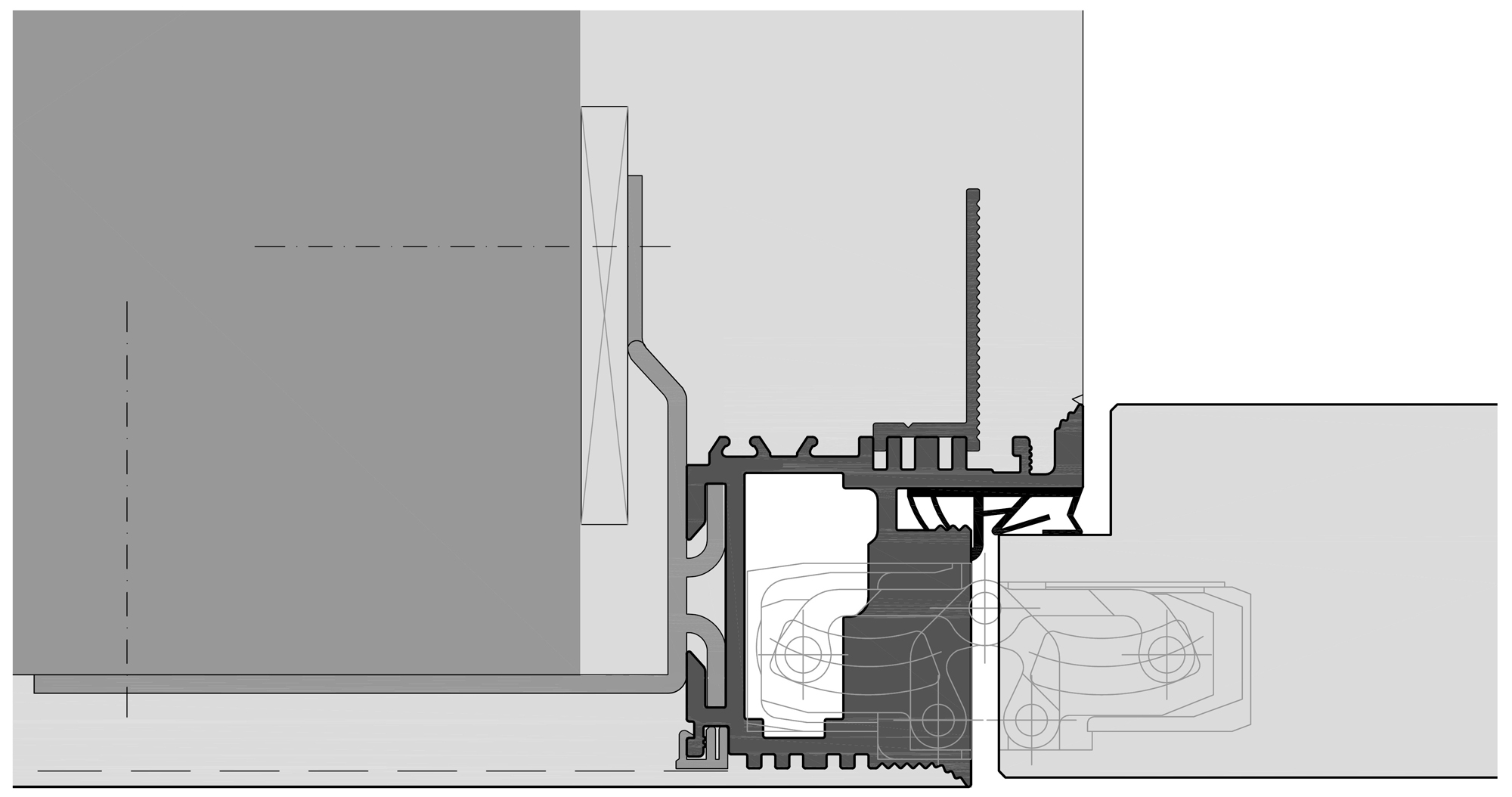
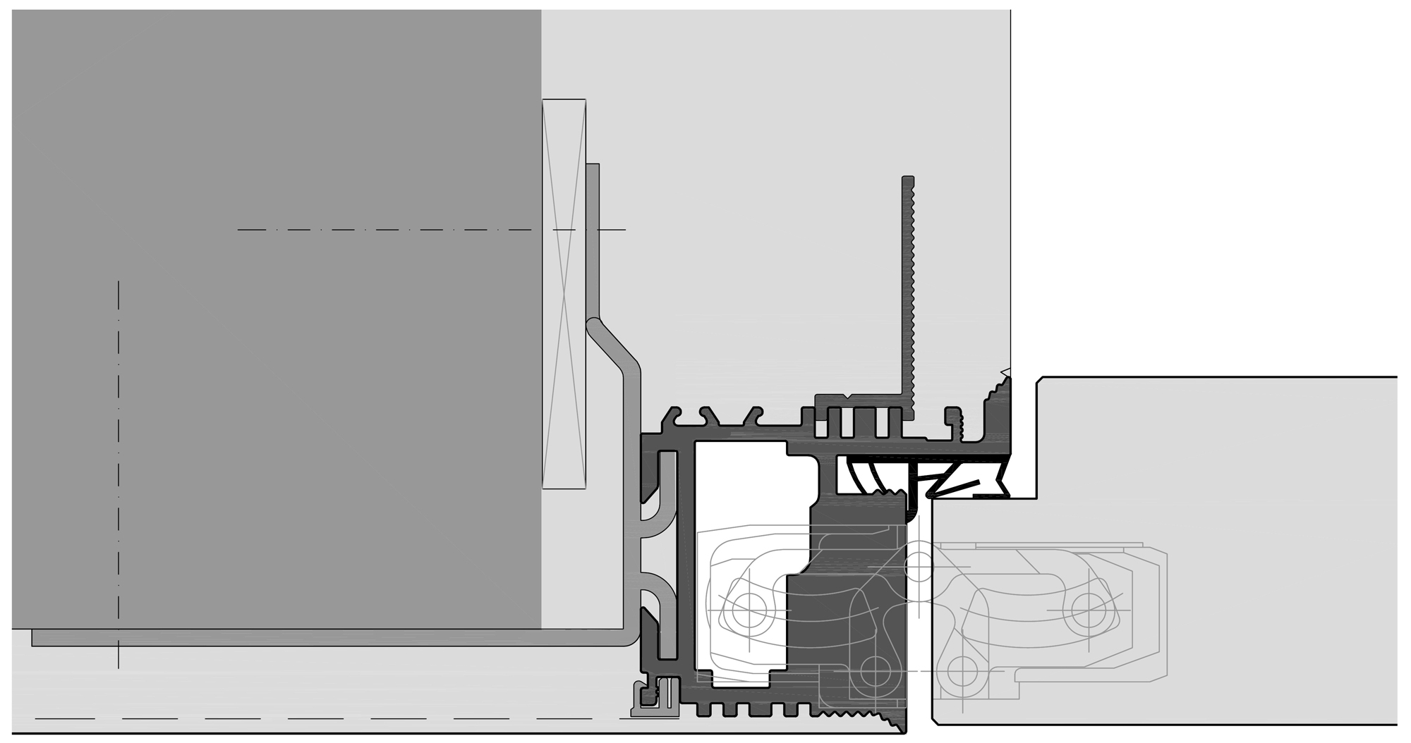
Unsichtbare Zarge für flächenbündige Türen
Foto: Küffner Aluzargen GmbH & Co. OHG
Bei geschlossener Tür ist die Aluminium-Zarge Zeroline unsichtbar und wird Teil der Wand. Die Zarge eignet sich standardmäßig für 40 mm starke Türblätter. Dabei kann das universelle Profil TZL band- oder bandgegenseitig flächenbündig montiert werden. Der stabile Rahmen dient als Putzprofil, Dichtungsaufnahme und Verbindung zur Wand. Spezielle Putzgewebe, die in das Aluminiumprofil eingeclipst werden, sorgen für einen abrissfreien Wandanschluss. Verdeckte Bandsysteme sowie ein Magnetfallenschloss ergänzen die Türblätter.
Je nach Raumkonzept lassen sich mit den verdeckten Türzargen nahezu unsichtbare Türen gestalten, die optisch mit der Wandfläche verschmelzen. Farblich oder durch Tapeten auf die Wand abgestimmt, nehmen sich diese Türen im Raum komplett zurück. Im Gegensatz dazu kann das Türblatt zum Gestaltungselement moderner Interieurs werden, in dem es einen Kontrast zur Wandfläche bildet. Da anstelle einer sichtbaren Zarge nur eine schmale Fuge zu sehen ist, nimmt der Betrachter vor allem das Türblatt als zweidimensionales Einrichtungselement wahr. Zeroline-Zargen eignen sich sowohl für massive als auch Leichtbauwände. Die Türelemente sind auch als Funktionstüren mit Brand-, Rauch- oder Schallschutzanforderung für 50 oder 70 mm dicken Türblätter lieferbar.
www.kueffner.de









