// Check if the article Layout ?>
Unter der Haube: Kindergarten in Okazaki
Foto: Fuji Koji
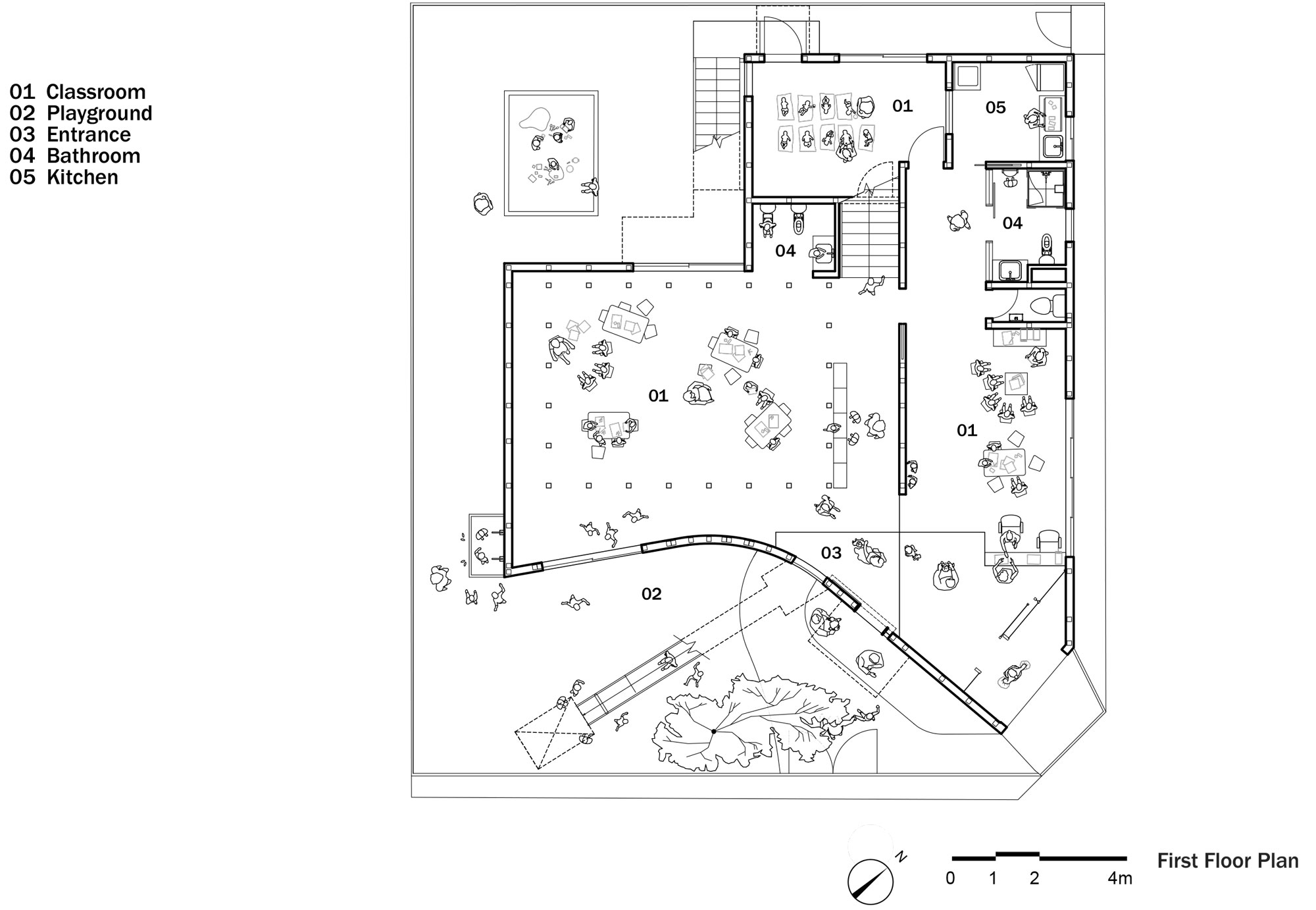
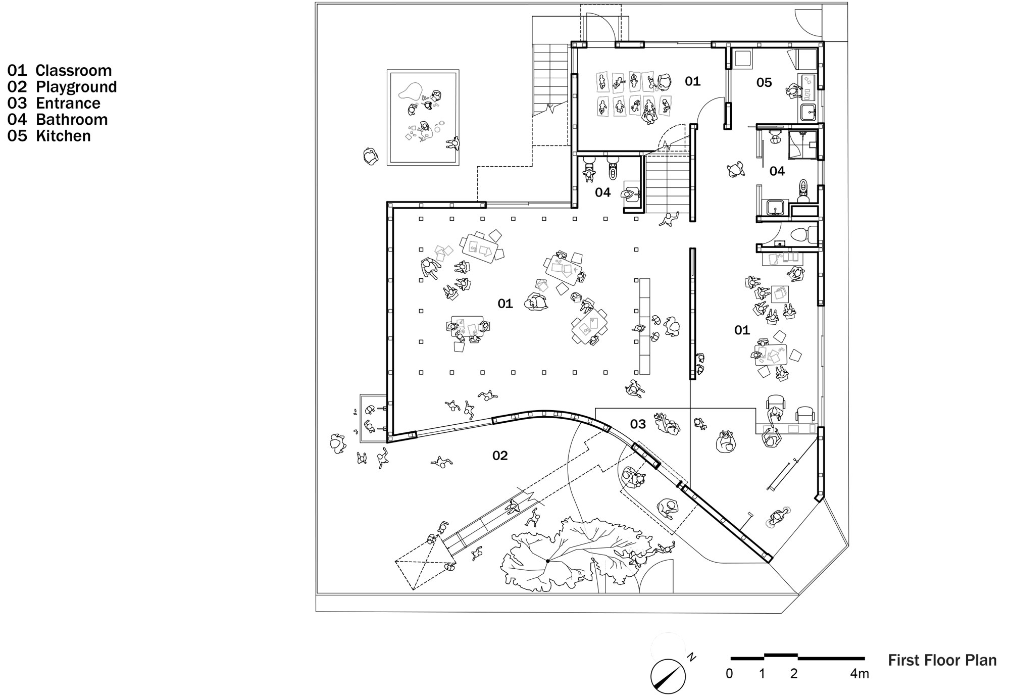
Eine Zeitlang hatte das Geschwisterpaar Kentaro und Tamaki Nara in ihrem eigenen Wohnhaus in der japanischen Kleinstadt Okazaki einen Kindergarten betrieben. Die ruhige Lage, mit Blick über Reisfelder und das Gebirge, schien dafür perfekt geeignet. Doch das zweigeschossige, nur 105 Quadratmeter große Fertighaus begann schon bald aus allen Nähten zu platzen.
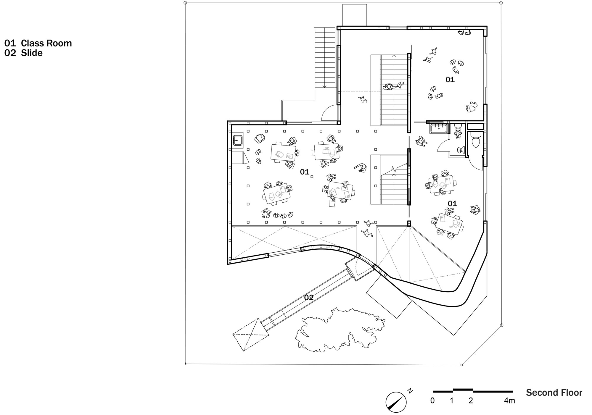
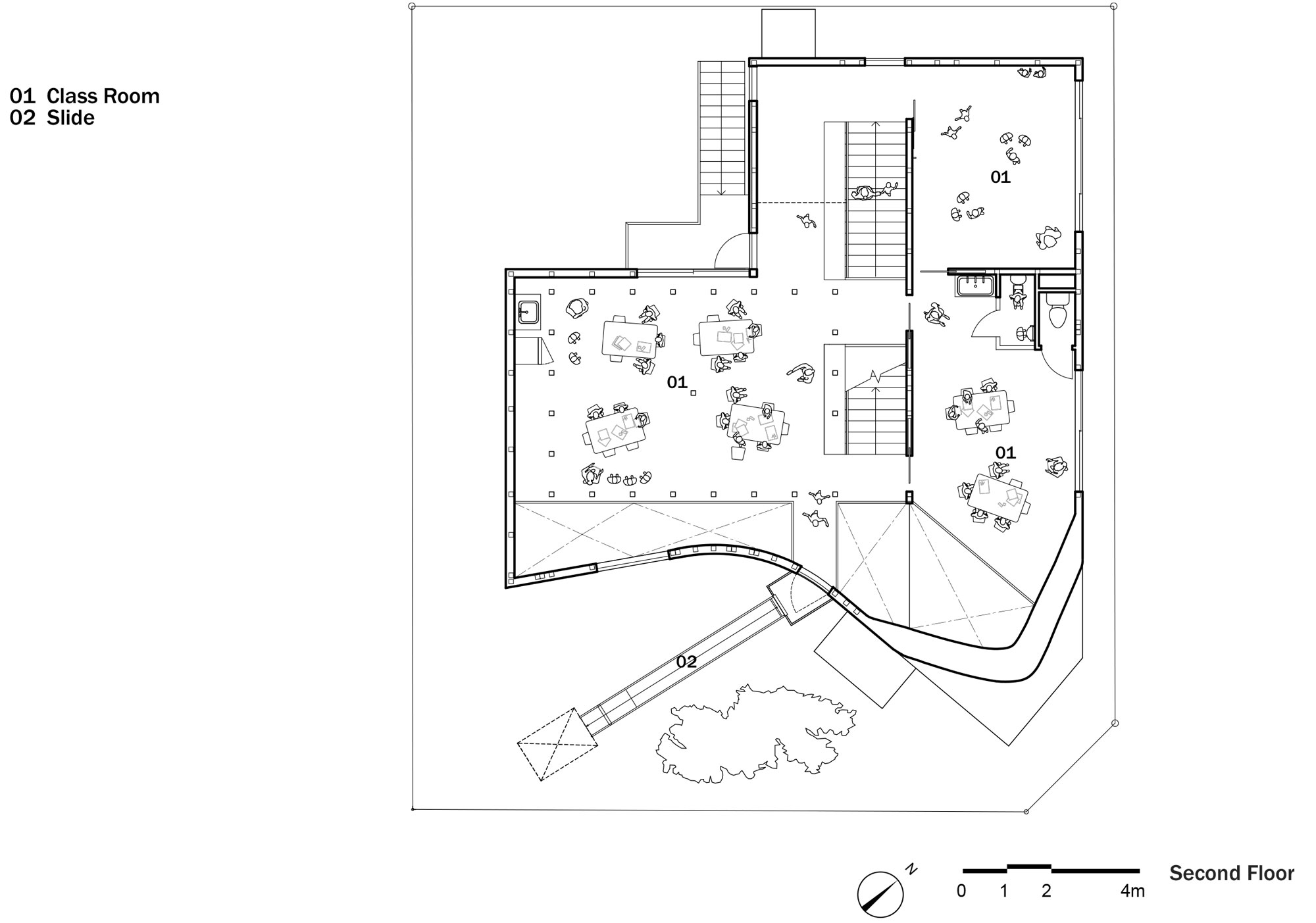
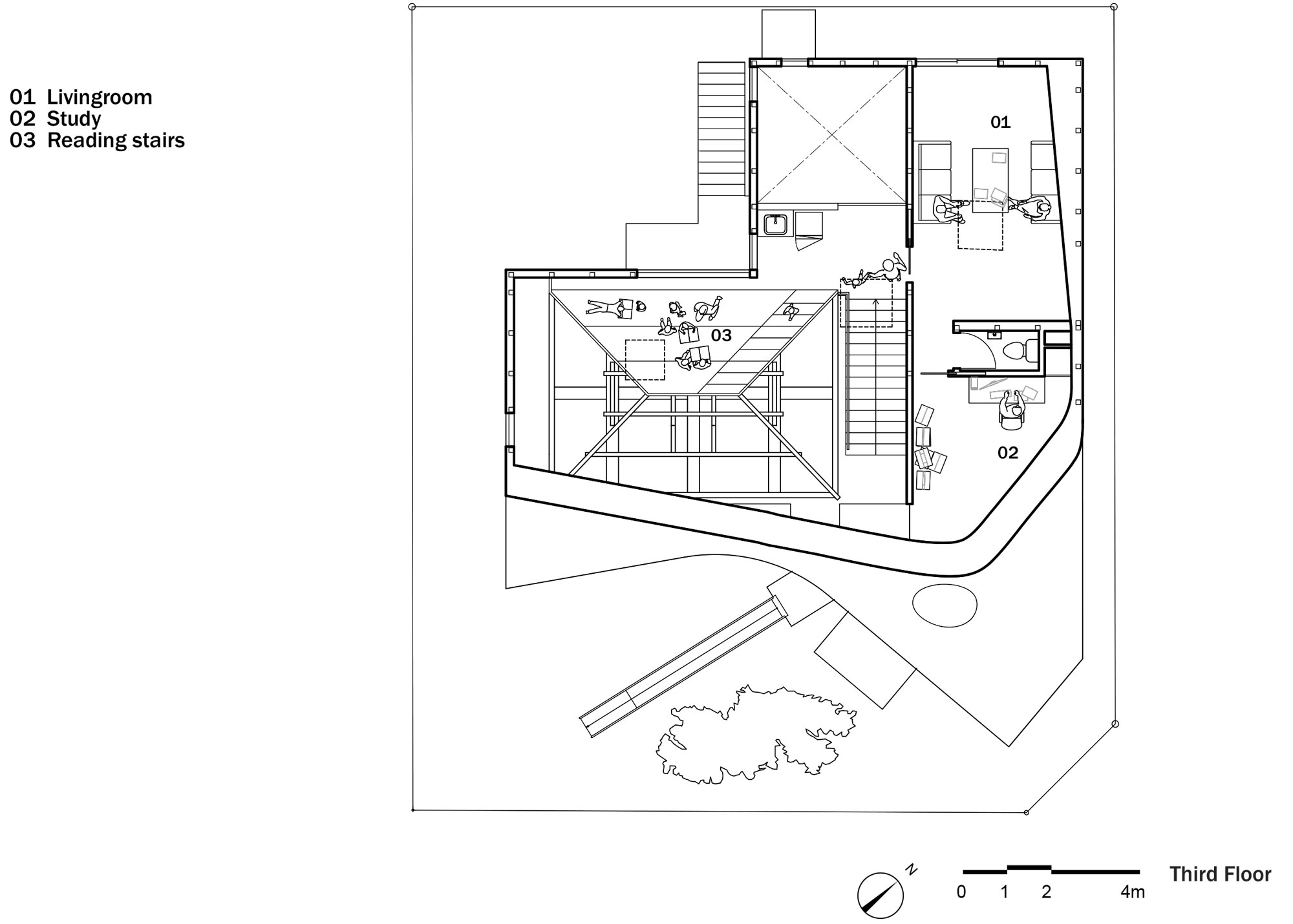
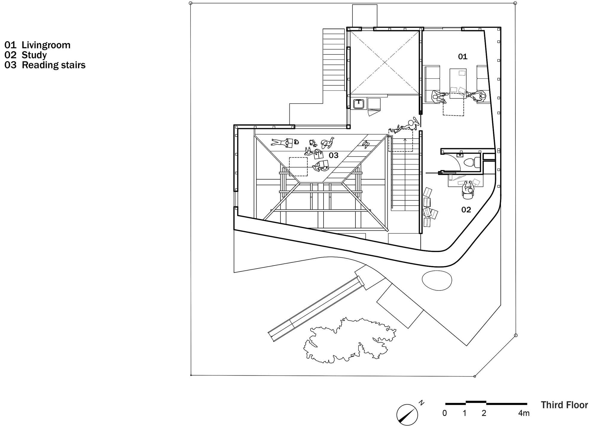
Es wäre ein Leichtes gewesen, das Alte einfach fortzuräumen und ein komplett neues Bauwerk zu errichten. Doch der mit dem Neubau beauftragte Ma Yansong und sein Architekturbüro MAD entschieden, das Bestandsgebäude symbolisch in der neuen Kindertagesstätte fortleben zu lassen. Die Erdgeschossstützen tragen nun den Gruppenraum im Obergeschoss. Oben auf den Dachstuhl setzten die Architekten einen kleinen Vorlesebereich mit Sitzstufen. Große Lufträume verbinden die unterschiedlichen Ebenen miteinander und machen das Haus-im-Haus-Prinzip des Entwurfs ablesbar.
Die kokonartige, neue Außenhülle des Kindergartens fällt in dem Wohnquartier schon von Weitem ins Auge. Auch sie ist größtenteils als Holzskelettkonstruktion gefertigt, was aber weder innen noch außen sichtbar wird. Dach- und Fassadenflächen erhielten eine einheitliche Haut aus flexiblen weißen Bitumenschindeln. Die verspielte Anordnung der kreisrunden, rechteckigen und parabelförmigen Gebäudeöffnungen gibt sich betont kindgerecht. Aus dem Obergeschoss führt eine Rutsche direkt hinunter in den kleinen Vorhof. Ma Yansong: »Wir haben das Haus aus dem Blickwinkel eines Kindes heraus entworfen. Wir wollten ein verspieltes Stück Architektur schaffen, das den Kindern auch im Erwachsenenalter noch in Erinnerung bleibt.«
Es wäre ein Leichtes gewesen, das Alte einfach fortzuräumen und ein komplett neues Bauwerk zu errichten. Doch der mit dem Neubau beauftragte Ma Yansong und sein Architekturbüro MAD entschieden, das Bestandsgebäude symbolisch in der neuen Kindertagesstätte fortleben zu lassen. Die Erdgeschossstützen tragen nun den Gruppenraum im Obergeschoss. Oben auf den Dachstuhl setzten die Architekten einen kleinen Vorlesebereich mit Sitzstufen. Große Lufträume verbinden die unterschiedlichen Ebenen miteinander und machen das Haus-im-Haus-Prinzip des Entwurfs ablesbar.
Die kokonartige, neue Außenhülle des Kindergartens fällt in dem Wohnquartier schon von Weitem ins Auge. Auch sie ist größtenteils als Holzskelettkonstruktion gefertigt, was aber weder innen noch außen sichtbar wird. Dach- und Fassadenflächen erhielten eine einheitliche Haut aus flexiblen weißen Bitumenschindeln. Die verspielte Anordnung der kreisrunden, rechteckigen und parabelförmigen Gebäudeöffnungen gibt sich betont kindgerecht. Aus dem Obergeschoss führt eine Rutsche direkt hinunter in den kleinen Vorhof. Ma Yansong: »Wir haben das Haus aus dem Blickwinkel eines Kindes heraus entworfen. Wir wollten ein verspieltes Stück Architektur schaffen, das den Kindern auch im Erwachsenenalter noch in Erinnerung bleibt.«
























