// Check if the article Layout ?>
Unter einem Dach: Das neue Sicherheitszentrum Weinfelden
Foto: Ruedi Walti
Das Sicherheitszentrum des Architekturbüros kit aus Zürich, gelegen an der Osteinfahrt Weinfeldens, präsentiert sich als Bindeglied zwischen Industrie- und Wohngebiet und setzt einen städtebaulichen Akzent. Aufgrund der unterschiedlichen Anforderungen der Umgebungsbauten, hat jede Fassadenseite einen eigenen architektonischen Ausdruck. So gliedert sich die großzügige Glasfront der einen Seite in die Reihen der Gewerbebauten ein, während sich das Volumen in Richtung des Wohngebiets abtreppt um sich dem kleineren Maßstab der Wohnbauten anzunähern.
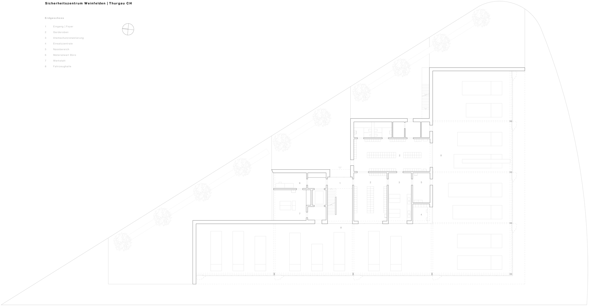
Das straßenseitig subtrahierte Volumen bildet drei kleine, dreieckige Außenräume, die mit einer Baumreihe von der Straße abgegrenzt werden. Hier befindet sich der Haupteingang, der unabhängig vom Feuerwehrbetrieb nutzbar ist. Über das zweigeschossige Foyer können sämtliche Räumlichkeiten des Kernbereichs erschlossen werden. Im Erdgeschoss sind Einsatzzentrale, Werkstatt und Büros direkt an die große Fahrzeughalle angeschlossen, um kurze Wege und einen reibungslosen Betriebsablauf zu garantieren. Im Obergeschoss befinden sich Schulungs- und Aufenthaltsräume, die durch Öffnungen in der Decke belichtet werden. Ein großes Panoramafenster bietet Einblicke in den Betrieb der Fahrzeughalle, deren Höhe sich über zwei Geschosse erstreckt, und verbindet Praxis und Theorie räumlich miteinander.
Die Besonderheit des Gebäudes liegt in seinem schlüssigen Zusammenspiel von Tragwerk und räumlicher Anordnung. Das Dach ist in zehn geneigte Flächen unterteilt, was sich ebenfalls in der Grundrissorganisation ablesen lässt. Sieben der zehn Einheiten bilden in L-Form die Fahrzeughalle, die aufgrund mächtiger Stahlträger stützenfrei ausgeführt ist und eine große Flexibilität in der Nutzbarkeit aufweist. Die restlichen drei Einheiten werden von der Fahrzeughalle umschlossen und beinhalten auf zwei Geschossen beheizte Räume für Feuerwehr und Samariter. In diesem Kernbereich liegt das Dach auf massiven Stahlbetonwänden auf. Durch die Mischung von Skelett- und Massivbauweise, ist ein differenzierter Umgang mit den internen Nutzungen möglich, sodass eine klare Unterteilung in beheizte und unbeheizte Bereiche stattfinden kann. Auf diese Weise kann der Umfang der Dämmung erheblich gesenkt werden. Ergänzend befindet sich eine Photovoltaikanlage auf dem Dach.
Das straßenseitig subtrahierte Volumen bildet drei kleine, dreieckige Außenräume, die mit einer Baumreihe von der Straße abgegrenzt werden. Hier befindet sich der Haupteingang, der unabhängig vom Feuerwehrbetrieb nutzbar ist. Über das zweigeschossige Foyer können sämtliche Räumlichkeiten des Kernbereichs erschlossen werden. Im Erdgeschoss sind Einsatzzentrale, Werkstatt und Büros direkt an die große Fahrzeughalle angeschlossen, um kurze Wege und einen reibungslosen Betriebsablauf zu garantieren. Im Obergeschoss befinden sich Schulungs- und Aufenthaltsräume, die durch Öffnungen in der Decke belichtet werden. Ein großes Panoramafenster bietet Einblicke in den Betrieb der Fahrzeughalle, deren Höhe sich über zwei Geschosse erstreckt, und verbindet Praxis und Theorie räumlich miteinander.
Die Besonderheit des Gebäudes liegt in seinem schlüssigen Zusammenspiel von Tragwerk und räumlicher Anordnung. Das Dach ist in zehn geneigte Flächen unterteilt, was sich ebenfalls in der Grundrissorganisation ablesen lässt. Sieben der zehn Einheiten bilden in L-Form die Fahrzeughalle, die aufgrund mächtiger Stahlträger stützenfrei ausgeführt ist und eine große Flexibilität in der Nutzbarkeit aufweist. Die restlichen drei Einheiten werden von der Fahrzeughalle umschlossen und beinhalten auf zwei Geschossen beheizte Räume für Feuerwehr und Samariter. In diesem Kernbereich liegt das Dach auf massiven Stahlbetonwänden auf. Durch die Mischung von Skelett- und Massivbauweise, ist ein differenzierter Umgang mit den internen Nutzungen möglich, sodass eine klare Unterteilung in beheizte und unbeheizte Bereiche stattfinden kann. Auf diese Weise kann der Umfang der Dämmung erheblich gesenkt werden. Ergänzend befindet sich eine Photovoltaikanlage auf dem Dach.
Weitere Informationen:
Holzbauingenieur und Brandschutz: Josef Kolb, Romanshorn
Fassadenplaner: gkp, Aadorf
HLKSE-Ingenieur: 3-plan, Kreuzlingen
Holzbauingenieur und Brandschutz: Josef Kolb, Romanshorn
Fassadenplaner: gkp, Aadorf
HLKSE-Ingenieur: 3-plan, Kreuzlingen

















