// Check if the article Layout ?>
Urbanes Chamäleon: Wohnhaus in Tokio
Foto: Jérémie Souteyrat
Kleine Grundstücke, schneller Abriss, ständiger Neubau: Tokio macht Architekten das Bauen nicht immer leicht. Sugawaradaisuke reagieren mit ihrer Fassade aus korrodierendem Streckmetall und Gipsplatten mit Eisenpulver-Zuschlag auf diesen rapiden Wandel. Anstatt Bezug auf architektonische Merkmale und Formenelemente der Nachbarn zu nehmen, folgt die Gebäudehülle den natürlichen Umwelteinflüssen und verändert sich mit dem Lauf der Zeit. Das kleine Grundstück forderte zudem ein intelligentes Raumkonzept, das die Anforderungen von Flexibilität und Komfort gleichermaßen bedient. Mithilfe vier verschiedener Klimazonen entstehen vielseitige Räumlichkeiten im Wechselspiel von Außen- und Innenraum.
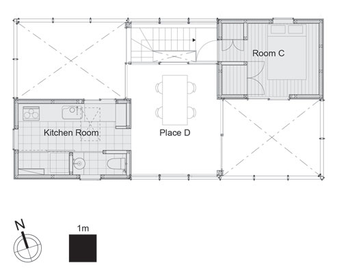
Zwei diagonal angeordnete, eingestellte Boxen formieren die privaten Bereiche des Wohnhauses und schließen gleichzeitig gemeinschaftlich nutzbare Flächen im entstehenden Zwischenraum in der Mittelzone ein. Alle Räume lassen sich frei bespielen, während die Architekten die jeweilige Offen- oder Geschlossenheit der Räume vorgeben. Transluzente Wände erweitern den Wohnraum über die eigentliche Grundstücksgrenze hinaus in den Außenraum und holen ein Stückchen Natur nach innen. Eingehend auf die Diversität heutiger familiärer Strukturen und wechselnder Wohngemeinschaften folgt die Grundrissgliederung einer symmetrischen Raumaufteilung, die klar zoniert ein hohes Maß variabel nutzbarer Möglichkeiten erzeugt. Private und halböffentliche Bereiche wechseln sich ab und schaffen je nach Licht, Wetter und Tageszeit unterschiedliche Lebensräume. Vier Klimazonen ergeben sich durch die jeweiligen Öffnungsanteile und den Einsatz von Lüftungsgeräten. So werden privatere Bereiche von natürlich belüfteten und sich bereits im Außenraum befindenden Bereichen ergänzt und lassen optimales Klima für jeden Komfortwunsch entstehen.
Den Architekten gelingt mit ihrem Konzept eine ganz eigene Art der »Nachhaltigkeit«. Während sich der Innenraum den sich ständig ändernden Bewohnerstrukturen anpasst, verändert sich die Fassade je nach Wind und Wetter. Den Wünschen seiner Bewohner anpassend, wird die Erscheinung des Gebäudes nicht dem Architekten, sondern dem Lauf der Zeit selbst überlassen. Ein offener Grundriss lässt sich flexibel immer wieder verändern und bietet Platz für verschiedenste Bewohnerstrukturen. Mal drinnen, mal draußen, mal ganz privat oder in der Gemeinschaft – im Wechselspiel verschiedenster Raumsituationen entsteht urbanes Wohnen auf kleinem Raum ohne Verzicht auf Außenraum und Gemeinschaft.


























