// Check if the article Layout ?>
Urbanes Cottage: Greenhouse in Melbourne
Foto: Earl Carter
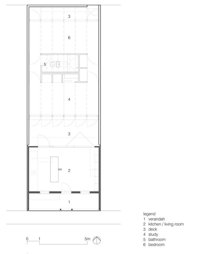
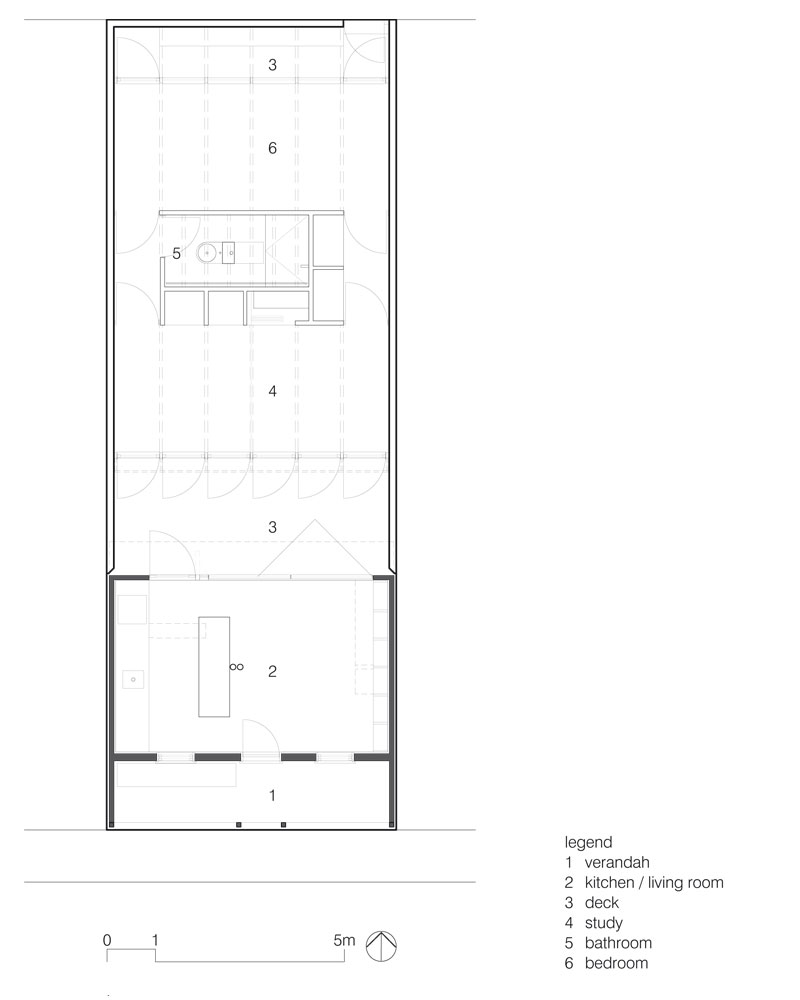
Sean Godsell und sein Architektenteam standen vor der Herausforderung im dichten Stadtgefüge von Melbourne ein längliches Grundstück mit einem bereits bestehenden Holz-Cottage in ein Wohnhaus zu transformieren. Entgegen seiner Einschätzung befand die zuständige Behörde die vorhandene Struktur, insbesondere die Südfassade mit ihrer ländlich anmutenden Veranda, als historisch wertvoll und setzte das Haus unter Denkmalschutz. Da ein Einspruch erfolglos blieb, entschied er sich, den existierenden Teil des Gebäudes behutsam zu renovieren und ein modernes, jedoch sehr diskretes Hinterhofgebäude zur nördlich verlaufenden Gasse zu schaffen. Durch einen Abstand zwischen Neu- und Altbau entstand ein privater, von Betonwänden begrenzter Innenhof.
Als eine der Inspirationsquellen für den neuen Wohnraum des Ehepaares Green nennt Sean Godsell japanische Reihenhäuser in urbanem Umfeld, wie beispielsweise das „House in White“ von Shinohara oder einige Projekte von Tadao Ando. Das „Row House in Sumiyoshi“ bezeichnet er als eine der bahnbrechenden Arbeiten der zweiten Hälfte des 20. Jahrhunderts.
Die denkmalgeschützte Fassade an der südlich angrenzenden Straße wurde in ihrem Erscheinungsbild eines australischen Outback-Cottages erhalten und der Innenraum in modernem Landhausstil remodelliert. Anhand der Positionierung ehemaliger, dem Abbruch zum Opfer gefallener Trennwände, konnten an derselben Stelle zwei neue Lichtkanäle in der Dachhaut geschaffen werden, die den großen Koch-, Ess- und Wohnbereich mit seinem rein weißen Mobiliar punktuell erhellen. Großzügige öffenbare Fronten auf beiden Seiten des Innenhofs bieten die Möglichkeit, die Innenräume des Bestands sowie des Neubaus miteinander zu verbinden, um so ihre eigentliche historische und bauliche Trennung aufzuheben.
Der an einem strengen Raster ausgerichtete neue Baukörper bietet den Bauherren größtmögliche Flexibilität. Lediglich ein zentraler Kern beherbergt Einbauschränke sowie ein sehr minimalistisch und platzsparend geplantes Badezimmer. Um für ausreichende natürliche Belichtung der tiefen Räume zu sorgen wird der auf drei Meter Höhe begrenzte Baukörper von einer gänzlich verglasten Dachfläche überspannt. Darüber liegende automatisierte Holzpaneele sorgen für den Sonnenschutz. Diese variablen, mit perforierten Aluminium verkleideten Elemente können zur Regulierung des Lichteinfalls in beliebig viele Positionen und Winkel gebracht werden und verändern somit ständig das Erscheinungsbild des Neubaus. Bei geschlossener Position aller Paneele ist die Dachfläche – inoffiziell – über eine simple Leiter zugänglich und als Dachterrasse benutzbar.
Programmatisch erinnert das Greenhouse an ein früheres Projekt von Sean Godsell: den MPavilion im Melbourne Queen Victoria Garden, der als temporäres Gebilde eine Reminiszenz an Heuschuppen, Scheunen und Verandas im Outback Down Under darstellt. Hier umhüllen die beweglichen Elemente sogar das gesamte Gebäude und generieren unterschiedlichste Konfigurationen zwischen offen und geschlossen.
Das Fertigstellungsdatum des Greenhouse fällt mit dem des RMIT design Hub in Melbourne von Sean Godsell zusammen und entlockt dem Architekten auf Grund deren Differenz das Statement: »Die Macht der Architektur ist unabhängig von ihrer Größe«.
Sean Godsell setzte sich auf einem Grundstück der inneren Vorstadt Melbournes mit einem historisch geschützten Altbestand und dessen möglicher Erweiterung zu einem modernen Stadthaus auseinander. Der Entwurf greift auf die Typologie japanischer Reihenhäuser zurück und verbindet australische Bautradition mit urbanem Wohnen.
Architekt: Sean Godsell Architects, Melbourne
Standort: Melbourne, Australien
Architekt: Sean Godsell Architects, Melbourne
Standort: Melbourne, Australien
Sean Godsell und sein Architektenteam standen vor der Herausforderung im dichten Stadtgefüge von Melbourne ein längliches Grundstück mit einem bereits bestehenden Holz-Cottage in ein Wohnhaus zu transformieren. Entgegen seiner Einschätzung befand die zuständige Behörde die vorhandene Struktur, insbesondere die Südfassade mit ihrer ländlich anmutenden Veranda, als historisch wertvoll und setzte das Haus unter Denkmalschutz. Da ein Einspruch erfolglos blieb, entschied er sich, den existierenden Teil des Gebäudes behutsam zu renovieren und ein modernes, jedoch sehr diskretes Hinterhofgebäude zur nördlich verlaufenden Gasse zu schaffen. Durch einen Abstand zwischen Neu- und Altbau entstand ein privater, von Betonwänden begrenzter Innenhof.
Als eine der Inspirationsquellen für den neuen Wohnraum des Ehepaares Green nennt Sean Godsell japanische Reihenhäuser in urbanem Umfeld, wie beispielsweise das „House in White“ von Shinohara oder einige Projekte von Tadao Ando. Das „Row House in Sumiyoshi“ bezeichnet er als eine der bahnbrechenden Arbeiten der zweiten Hälfte des 20. Jahrhunderts.
Die denkmalgeschützte Fassade an der südlich angrenzenden Straße wurde in ihrem Erscheinungsbild eines australischen Outback-Cottages erhalten und der Innenraum in modernem Landhausstil remodelliert. Anhand der Positionierung ehemaliger, dem Abbruch zum Opfer gefallener Trennwände, konnten an derselben Stelle zwei neue Lichtkanäle in der Dachhaut geschaffen werden, die den großen Koch-, Ess- und Wohnbereich mit seinem rein weißen Mobiliar punktuell erhellen. Großzügige öffenbare Fronten auf beiden Seiten des Innenhofs bieten die Möglichkeit, die Innenräume des Bestands sowie des Neubaus miteinander zu verbinden, um so ihre eigentliche historische und bauliche Trennung aufzuheben.
Der an einem strengen Raster ausgerichtete neue Baukörper bietet den Bauherren größtmögliche Flexibilität. Lediglich ein zentraler Kern beherbergt Einbauschränke sowie ein sehr minimalistisch und platzsparend geplantes Badezimmer. Um für ausreichende natürliche Belichtung der tiefen Räume zu sorgen wird der auf drei Meter Höhe begrenzte Baukörper von einer gänzlich verglasten Dachfläche überspannt. Darüber liegende automatisierte Holzpaneele sorgen für den Sonnenschutz. Diese variablen, mit perforierten Aluminium verkleideten Elemente können zur Regulierung des Lichteinfalls in beliebig viele Positionen und Winkel gebracht werden und verändern somit ständig das Erscheinungsbild des Neubaus. Bei geschlossener Position aller Paneele ist die Dachfläche – inoffiziell – über eine simple Leiter zugänglich und als Dachterrasse benutzbar.
Programmatisch erinnert das Greenhouse an ein früheres Projekt von Sean Godsell: den MPavilion im Melbourne Queen Victoria Garden, der als temporäres Gebilde eine Reminiszenz an Heuschuppen, Scheunen und Verandas im Outback Down Under darstellt. Hier umhüllen die beweglichen Elemente sogar das gesamte Gebäude und generieren unterschiedlichste Konfigurationen zwischen offen und geschlossen.
Das Fertigstellungsdatum des Greenhouse fällt mit dem des RMIT design Hub in Melbourne von Sean Godsell zusammen und entlockt dem Architekten auf Grund deren Differenz das Statement: »Die Macht der Architektur ist unabhängig von ihrer Größe«.
Weitere Informationen:
Planungsphase: 2011-2013
Bauphase: 2013-2014
Architekt: Sean Godsell Architects
Projektteam: Sean Godsell, Hayley Franklin
Kunde: Mr. Peter und Mrs. Janina Green
Tragwerk: Perrett Simpson Stanton
Innenarchitektur: Sean Godsell Architects
Umweltgutachter: Filter ESD
Denkmalschutz: Michael Taylor Architecture + Heritage
Kostenkalkulation: Plan Cost Australia
Planungsberatung: Meredith Withers
Baufirma: Sargant Constructions Pty Ltd
Grundstück: 101,4 m²
Wohnfläche: 77,55 m²
Eine ausführliche Dokumentation zum Projekt finden Sie in unserer Ausgabe DETAIL 11/2015.
Weitere Informationen:
Planungsphase: 2011-2013
Bauphase: 2013-2014
Architekt: Sean Godsell Architects
Projektteam: Sean Godsell, Hayley Franklin
Kunde: Mr. Peter und Mrs. Janina Green
Tragwerk: Perrett Simpson Stanton
Innenarchitektur: Sean Godsell Architects
Umweltgutachter: Filter ESD
Denkmalschutz: Michael Taylor Architecture + Heritage
Kostenkalkulation: Plan Cost Australia
Planungsberatung: Meredith Withers
Baufirma: Sargant Constructions Pty Ltd
Grundstück: 101,4 m²
Wohnfläche: 77,55 m²
Eine ausführliche Dokumentation zum Projekt finden Sie in unserer Ausgabe DETAIL 11/2015.

















