// Check if the article Layout ?>
Vereinte Individualität: Deutsch-polnische Schule in Wilanow
Foto: Marcus Ebener Fotografie
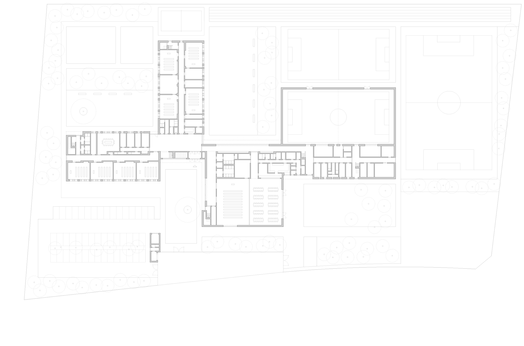
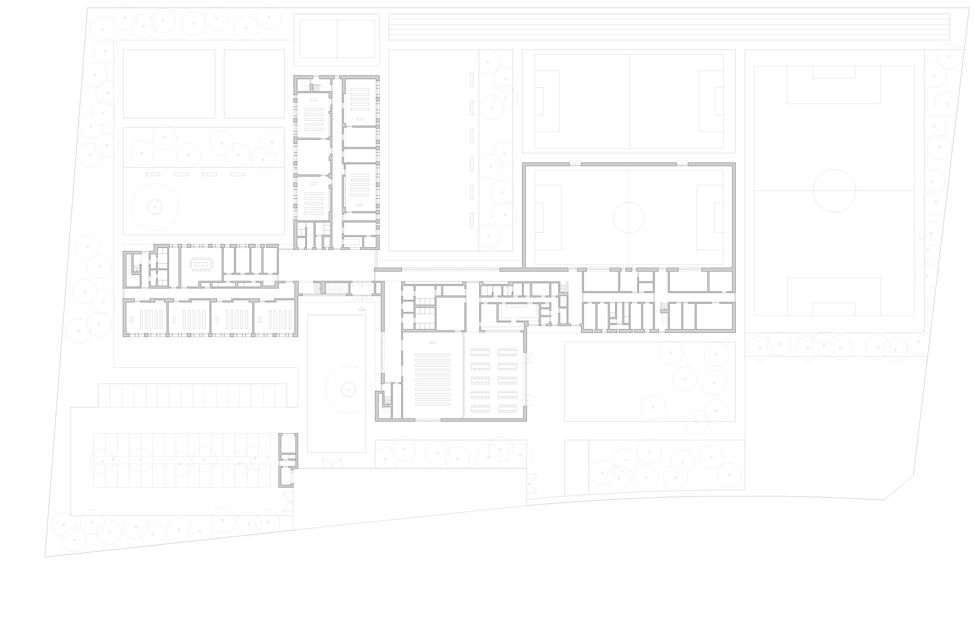
Ausgangssituation des Wettbewerbs war ein circa 20.000 m2 großes Grundstück in einem Stadtteil südlich von Warschau, um das herum keine städtebaulich relevante Bebauung vorzufinden war, auf die man hätte Bezug nehmen müssen. Daher beschlossen Staab Architekten die Schule aus dem vorgegebenen Programm von Grundschule, Gymnasium, Sporthalle und zentralen Nutzungen, wie Aula, Mensa und Bibliothek heraus zu entwickeln. Entstanden sind vier individuelle Häuser mit klar zugeordneten Nutzungen. Die einzelnen Kuben sind stark voneinander versetzt und überlappen nur an den notwendigen Stellen, wodurch einerseits die Individualität der jeweiligen Bereiche sowie Klassenstufen gewährleistet ist und andererseits das Gebäude als funktional zusammenhängende Schuleinrichtung funktioniert. Das genaue Arrangieren der Einzelbaukörper gliedert das Areal und schafft gleichzeitig andersartige und gut proportionierte Außenräume, die mit verschiedenen Nutzungen bespielt werden.
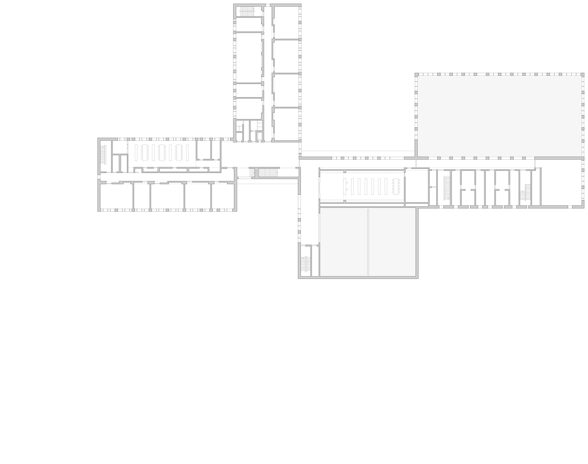
Über den Parkplatz und den dahinterliegenden Eingangshof gelangt man zum zentralen Foyer, dem Herzstück der Schule. Es dient als Verteiler zu den einzelnen Klassenräumen, der Schulverwaltung, dem Lehrerzimmer sowie zu der zweigeschossigen Aula mit Mensa und Sporthalle. Letztere können aufgrund gesonderter Zugänge auch außerhalb des Schulbetriebes genutzt werden. Große Fensterflächen und Oberlichter sorgen im Inneren zusammen mit einer freundlich bunten Farbgestaltung für eine gute Lernatmosphäre. Mit der einheitlichen Fassade vereinen Staab Architekten die individuellen Häuser prononciert zu einem großen Gesamtensemble.
Über den Parkplatz und den dahinterliegenden Eingangshof gelangt man zum zentralen Foyer, dem Herzstück der Schule. Es dient als Verteiler zu den einzelnen Klassenräumen, der Schulverwaltung, dem Lehrerzimmer sowie zu der zweigeschossigen Aula mit Mensa und Sporthalle. Letztere können aufgrund gesonderter Zugänge auch außerhalb des Schulbetriebes genutzt werden. Große Fensterflächen und Oberlichter sorgen im Inneren zusammen mit einer freundlich bunten Farbgestaltung für eine gute Lernatmosphäre. Mit der einheitlichen Fassade vereinen Staab Architekten die individuellen Häuser prononciert zu einem großen Gesamtensemble.
Weitere Informationen:
Wettbewerb: 1. Preis, 2008
Planungsbeginn: 2008
Fertigstellung: 2014
Nutzfläche: 5.800 m2
BGF: 9.400 m2
BRI: 40.600 m3
Gesamtkosten: 18,92 Mio.€
Kontaktarchitekten: CGA Architekci
Tragwerksplanung: Hartwich Mertens Ingenieure
Freiraumplanung: Levin Monsigny Landschaftsarchitekten
Haustechnik und Elektroplanung: Heimann Ingenieure GmbH
Fotograf: Marcus Ebener Fotografie
Wettbewerb: 1. Preis, 2008
Planungsbeginn: 2008
Fertigstellung: 2014
Nutzfläche: 5.800 m2
BGF: 9.400 m2
BRI: 40.600 m3
Gesamtkosten: 18,92 Mio.€
Kontaktarchitekten: CGA Architekci
Tragwerksplanung: Hartwich Mertens Ingenieure
Freiraumplanung: Levin Monsigny Landschaftsarchitekten
Haustechnik und Elektroplanung: Heimann Ingenieure GmbH
Fotograf: Marcus Ebener Fotografie

















