Vergänglicher Bierpalast: Braunstein Taphouse in Køge
Foto: Rasmus Hjørtshøj/COAST
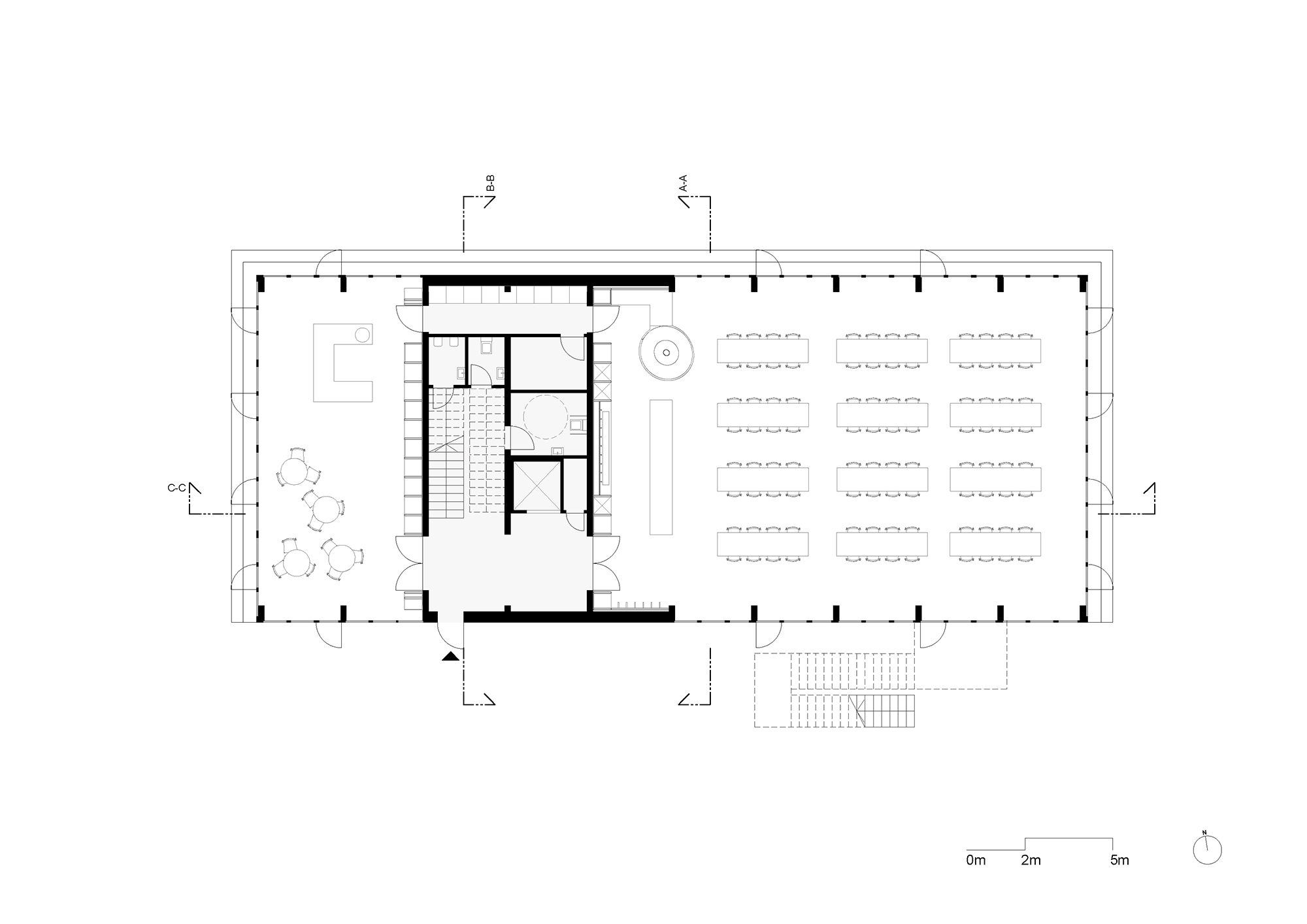
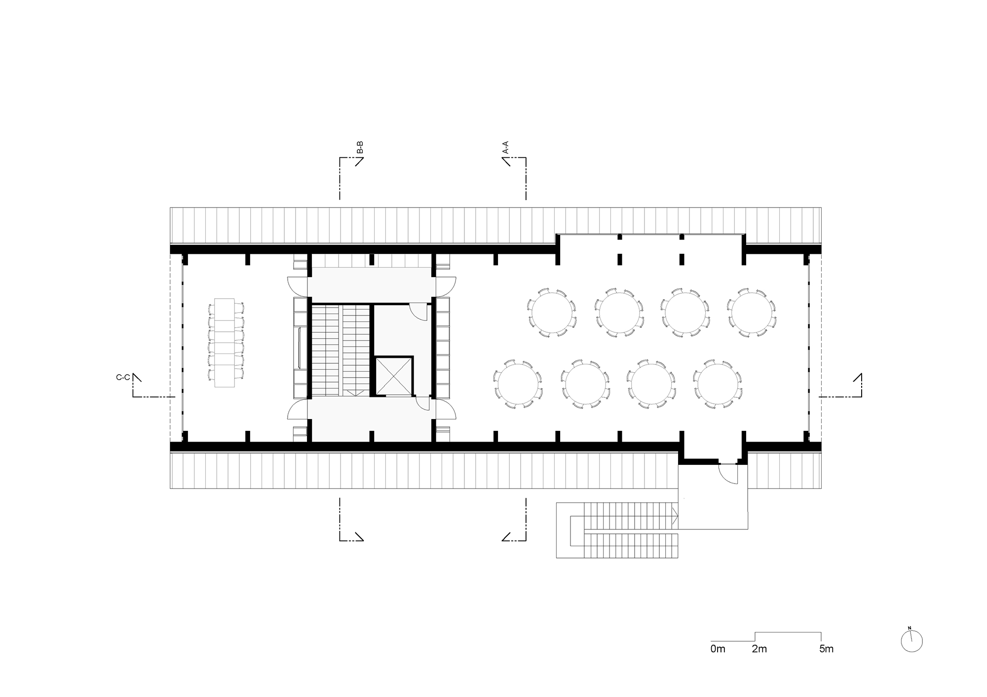
Die 40.000-Einwohner-Stadt Køge südlich von Kopenhagen hat einen gut erhaltenen, mittelalterlichen Stadtkern und einen großen Industrie- und Fährhafen, der sie fast vollständig von der Ostsee abschneidet. Das Café-Restaurant, das die Kopenhagener Architekten Adept im Auftrag einer örtlichen Craft-Beer-Brauerei geplant haben, steht an der Schnittstelle zwischen Stadt und Hafen auf einer Kaimauer, über deren Zukunft sich die Stadtverwaltung selbst noch unschlüssig ist. Sie ist eigentlich zu niedrig, um vor den künftig prognostizierten, klimawandelbedingten Hochwassern Schutz zu bieten. Daher ist der zweigeschossige Neubau so konzipiert, dass er sich problemlos wieder in seine Einzelteile zerlegen und woanders neu errichten lässt. Die Architekten nutzten die Fundamente eines alten Lagerhauses, das hier gestanden hatte, und legten darauf eine Holzplattform knapp über dem voraussichtlichen Hochwasserniveau an. Die Tragstruktur des Gebäudes besteht aus mächtigen Stahlrahmen mit charakteristischer A-Form, deren geneigte Seiten mit großformatigen Polycarbonatstegplatten mit Nut- und-Feder-Verbindung eingedeckt sind. Auf dem Flachdach an der höchsten Stelle des Gebäudes ist eine Photovoltaikanlage installiert.
Hinter den großflächig verglasten Stirnseiten öffnet sich auf der einen Seite der Gastraum des Restaurants, auf der anderen ein kleines Café. Im Obergeschoss sind zwei Veranstaltungsräume untergebracht. Nur der Gebäudekern mit Küche, Treppenhaus und WC erhielt eine Fassadenverkleidung aus acetyliertem und dadurch wetterfestem Accoya-Holz. Dahinter – und hinter der Polycarbonat-Dachdeckung – befinden sich gedämmte Holzrahmenelemente, die für den nötigen Wärmeschutz sorgen. Die Wände sind laut Adept ohne Farbanstriche und Fugendichtmassen konstruiert und die Holzböden wurden aus Abfallprodukten eines nahe gelegenen Bodenbelagsherstellers hergestellt.




























