Verpixelt: Firmenzentrale in Brixen von Monovolume
Foto: Paolo Riolzi / Rolf Nachbar © Durst Group
Die Firma Durst widmet sich der Herstellung von digitalen Hochleistungs-Drucksystemen. Den Hauptstandort des weltweit operierenden Familienbetriebs stellt seit seinen Anfängen das Bestandsgebäude in Brixen von Othmar Bart dar. Von ihm stammt auch die ursprüngliche – aber nie realisierte – Entwurfsidee für einen schwebenden Flügel mit Turm. Die Architekten Monovolume greifen aber genau darauf zurück und verwandeln die Vision in einen neuen, repräsentativen Headquarterbau.
Der neue Baukörper legt sich mit seinem auffälligen, parametrischen Design vor den alten und zieht sämtliche Blicke auf sich. Er setzt sich aus einem verglasten Sockel und einem organischen Volumen zusammen, das sich an einem Ende in Form eines Turmes in die Höhe zieht. Die weiße Hauptfassade des Gebäudes ist in pulverbeschichtete Aluminiumbleche gehüllt, die eine Vielzahl an kleinen Aussparungen aufweist. Über LED’s in den Laibungen erstrahlen die pixelartigen Fenster bei Nacht in verschiedenen Farben und setzen die Firmenzentrale in Szene. Den oberen Abschluss des Neubaus bildet ein enormes, geschwungenes Glasdach. Dieses besteht aus 250 unterschiedlichen Isolierglasscheiben.
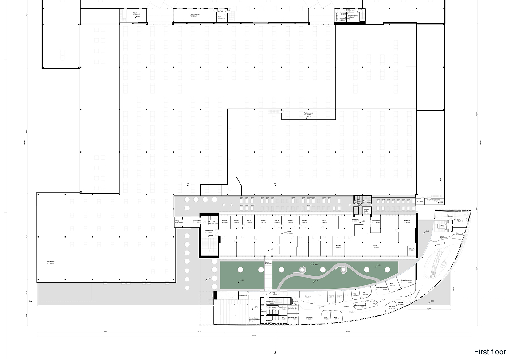
Im offen gestalteten Erdgeschoss sind Demobereiche und Labors untergebracht. An den Kundeneingang im südlichen Teil schließt das Foyer mit Bar und WCs an. Eine Treppe führt weiter in den sechsstöckigen Turm, in dessen obersten Niveaus Geschäftsleitung und Konferenzraum Platz finden. Die erste und zweite Etage teilen sich in Kundendienst, Büros und Besprechungsräume auf. Private Nischen, raumhoch verglaste Arbeitszonen und farbige Details prägen die Innenräume des neuen Headquarters. Außerdem dockt es an mehreren Stellen an die bestehende Verwaltungszentrale an. Ein langgezogener, begrünter Innenhof verbindet die beiden Baukörper und bietet einen geschützten Ort für eine Auszeit an der frischen Luft.
























