Verrückter Bücherstapel: Neue Bibliothek von Suzhou
Foto: Christian Gahl
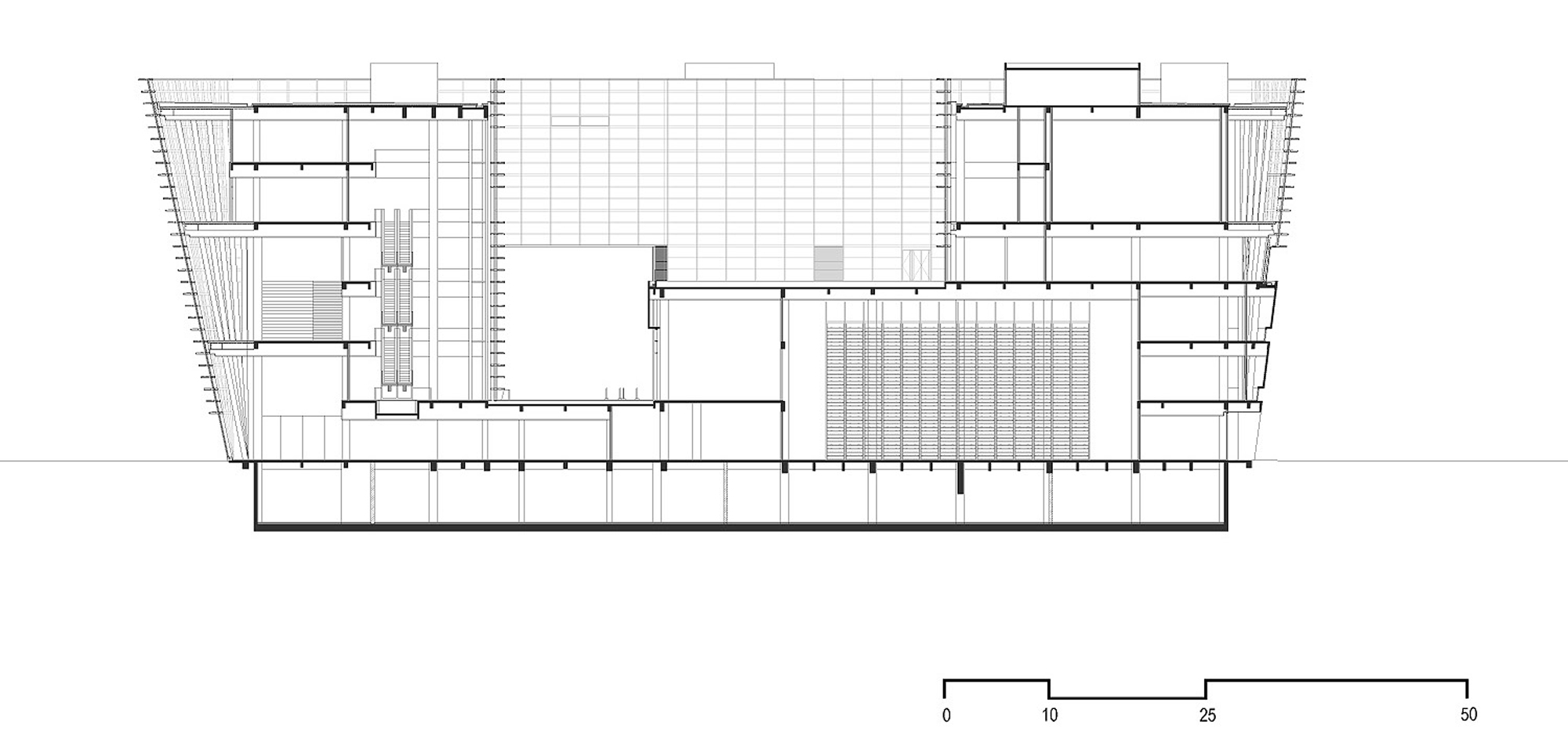
Die Bibliothek von Suzhou wurde bereits im Jahr 1914 durch die vorrevolutionäre Qing-Dynastie gegründet. Sie war Teil des Zhengyi Colleges und hatte zunächst den Namen »Jiangsu Provincial Second Library«. Deshalb trägt der von den Hamburger gmp Architekten entworfene und realisierte Bibliotheksneubau den Namen »Suzhou No.2 Library«. Mit einer Bruttogeschossfläche von 45.300 m² ist der Neubau tatsächlich eine Art Zentralbibliothek der 10-Millionen-Einwohner-Stadt. Erstmals in ganz China wurde hier ein Hochregallager für 7. Mio. Bücher eingerichtet. Derzeit umfasst die Sammlung, die sich auf 6.500 m² verteilt, über 4,544 Mio. Bände.
Das im Prinzip quadratische Gebäude weißt eine Kantenlänge von etwa 70 m und eine Höhe von 36,80 m auf. Allerdings sind seine sechs, jeweils 5,70 m hohen Geschosse zueinander, ähnlich einem Bücherstapel, leicht im Uhrzeigersinn verdreht, wodurch sich geneigte Fassadenflächen ergeben. Der Baukörper umschließt einen quadratischen Hohlraum, der sich aufteilt in eine passagenartige Zugangszone im 1. OG und eine rechteckige Dachterrasse im 3. OG. Von außen erreichbar ist die erhöht angelegte Zugangspassage über Freitreppen an der östlichen und an der westlichen Gebäudeseite. Über diese Durchgänge hinweg haben die Architekten ab der dritten Etage die Geschossebenen brückenartig geführt, so dass ab diesem Level eine durchgehende Bibliotheksfläche entsteht.
Auskragende Deckenflächen
Bedingt durch die stark geneigte Fassadenfront kragen die Bodenplatten der obersten Geschosse bis zu 10 m vor den tragenden Wänden aus. Sie werden teilweise abgefangen durch eingestellte, analog zur Fassade geneigte Rundstützen. Auch diese schräg stehenden Stützen sind übereinander angeordnet; sie leiten ihre Gewichts- und Scherkräfte geradlinig durch die dazwischen geschalteten Geschossplatten in die Schrägstützen der Ebene darunter ein.
Bei der Fassade handelt es sich um eine Vorhangfassade, bei der die vertikal angeordneten Glaselemente von großformatigen Rechteckprofilen gehalten werden. Formal gegliedert ist sie durch großformatige und horizontal angeordnete Aluminiumlammellen. Die Bibliothek ist getreu dem selbst auferlegten Grundsatz »Gleich, frei, professionell, höflich und effizient« 365 Tage im Jahr, zwölf Stunden am Tag geöffnet.













