// Check if the article Layout ?>
Versteckt in der Landschaft: Wohnhaus auf Sizilien
Foto: Filippo Poli
Das Wohnhaus mit Atelierräumen befindet sich in der Nähe der Stadt Scicli. Die Gegend ist geprägt von terrassierten Hügeln, auf denen vor allem Olivenbäume wachsen; Trockenmauern aus weißem Stein durchziehen die Landschaft. Die Architekten verwendeten den Stein auch als Bekleidung der Frontfassade, die – seitlich verlängert – gleichzeitig als Stützwand für den Hügel fungiert. Unterbrochen wird die Vorderseite durch große, gebäudehohe, verglaste Fenster und Türen, die den Blick freigeben in Richtung Mittelmeer. Rückseitig schiebt sich das Gebäude in den Hügel und bildet dort zwei geschützte Freibereiche aus. So integriert sich das Wohnhaus perfekt in die umgebende Natur.
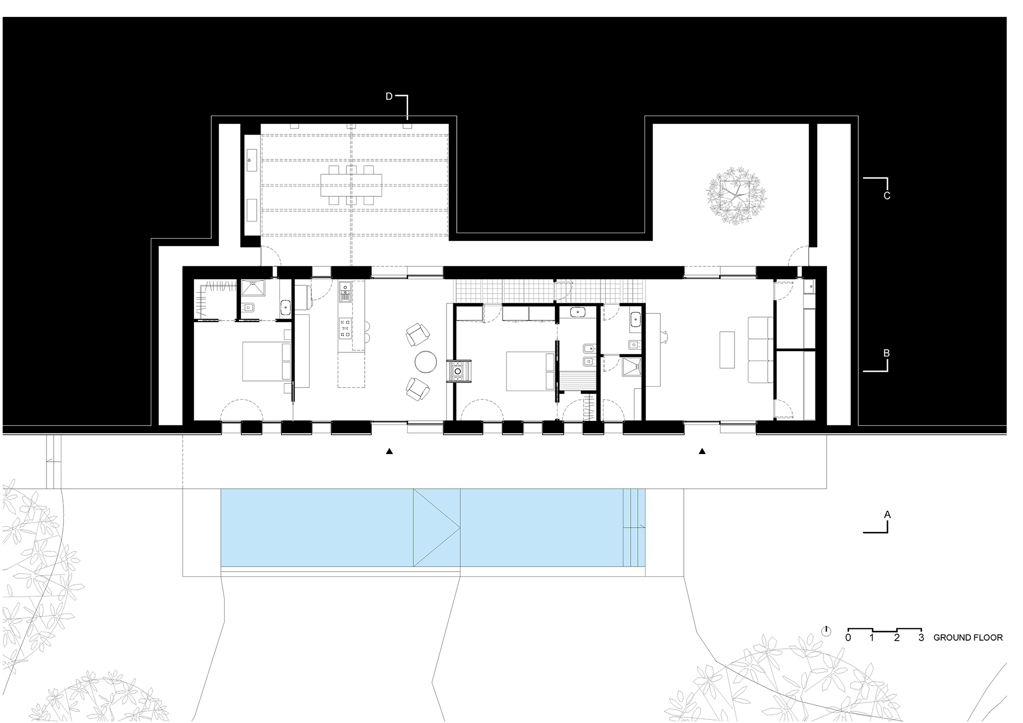
Vor dem Gebäude erstreckt sich über fast die gesamte Länge ein Pool, der nicht nur der Erholung, sondern auch zur Kühlung des Hauses dient: Vom Wasser steigt kühlere Luft auf und wird durch das Haus geleitet; die dort erwärmte Luft kann über die beiden Innenhöfe wieder austreten.
Diese, von traditionellen Bauweisen inspirierten Innenhöfe auf der Nordseite des Gebäudes sind in den Hügel hinein geschnitten und von außen nicht direkt einsehbar. Sie bieten Schutz vor der Sonne und der extremen Hitze im Sommer. Besonders ist, dass einer der Einschnitte als Freiluftküche genutzt werden kann, die mit einem leichten Bambusgeflecht überdacht ist. Der andere Innenhof grenzt an das Atelier an und ermöglicht damit eine zusätzliche Belichtung von Norden. Das Gebäude ist so in den Hügel hineingebaut, dass man es von weiter oben im Gelände fast nicht sehen kann. Diese Art der Bauweise wurde von den Architekten nicht nur aus ästhetischen sondern auch aus energetischen Gründen gewählt. Die umgebenden Erdschichten stellen eine natürliche Isolierung für das Haus dar.
Das Dach ist begrünt mit lokalen Pflanzen und kann als Dachgarten genutzt werden. Als Schutz vor der Sonne kragt es weit über die Frontfassade hinaus – eine einfache Lösung, die großflächigen Öffnungen zu verschatten.
Die Raumaufteilung im Inneren folgt einem einfachen Muster: Die wichtigsten Räume sind direkt durchgesteckt zwischen Vorder- und Rückseite was den Anschein ergibt, die Landschaft ziehe sich durch das Gebäude. Privaträume und Nutzräume orientieren sich nur nach vorne zur Landschaft. Das mittig liegende Schlafzimmer mit Bad und begehbarem Schrank scheint das Gebäude zweizuteilen. Eine Seite ist dem Wohnen gewidmet, die andere der Ateliernutzung.
Insgesamt wurde bei der Planung des Gebäudes viel Wert darauf gelegt, die Sonne Siziliens mittels nachhaltiger Energien zu nutzen und die Natur so wenig wie möglich zu beeinträchtigen. Da das Haus sowohl Energie durch Solarthermie als auch durch Photovoltaik generiert ist es fast autark von anderen Energiequellen.
Vor dem Gebäude erstreckt sich über fast die gesamte Länge ein Pool, der nicht nur der Erholung, sondern auch zur Kühlung des Hauses dient: Vom Wasser steigt kühlere Luft auf und wird durch das Haus geleitet; die dort erwärmte Luft kann über die beiden Innenhöfe wieder austreten.
Diese, von traditionellen Bauweisen inspirierten Innenhöfe auf der Nordseite des Gebäudes sind in den Hügel hinein geschnitten und von außen nicht direkt einsehbar. Sie bieten Schutz vor der Sonne und der extremen Hitze im Sommer. Besonders ist, dass einer der Einschnitte als Freiluftküche genutzt werden kann, die mit einem leichten Bambusgeflecht überdacht ist. Der andere Innenhof grenzt an das Atelier an und ermöglicht damit eine zusätzliche Belichtung von Norden. Das Gebäude ist so in den Hügel hineingebaut, dass man es von weiter oben im Gelände fast nicht sehen kann. Diese Art der Bauweise wurde von den Architekten nicht nur aus ästhetischen sondern auch aus energetischen Gründen gewählt. Die umgebenden Erdschichten stellen eine natürliche Isolierung für das Haus dar.
Das Dach ist begrünt mit lokalen Pflanzen und kann als Dachgarten genutzt werden. Als Schutz vor der Sonne kragt es weit über die Frontfassade hinaus – eine einfache Lösung, die großflächigen Öffnungen zu verschatten.
Die Raumaufteilung im Inneren folgt einem einfachen Muster: Die wichtigsten Räume sind direkt durchgesteckt zwischen Vorder- und Rückseite was den Anschein ergibt, die Landschaft ziehe sich durch das Gebäude. Privaträume und Nutzräume orientieren sich nur nach vorne zur Landschaft. Das mittig liegende Schlafzimmer mit Bad und begehbarem Schrank scheint das Gebäude zweizuteilen. Eine Seite ist dem Wohnen gewidmet, die andere der Ateliernutzung.
Insgesamt wurde bei der Planung des Gebäudes viel Wert darauf gelegt, die Sonne Siziliens mittels nachhaltiger Energien zu nutzen und die Natur so wenig wie möglich zu beeinträchtigen. Da das Haus sowohl Energie durch Solarthermie als auch durch Photovoltaik generiert ist es fast autark von anderen Energiequellen.

















