// Check if the article Layout ?>
Versteckte Dissonanzen: Musikzentrum Allende in Mons-en-Baroeul
Foto: Eugeni Pons
Wie oft wohl wurde im Zusammenhang mit neu errichteten Konzertsälen schon das Schopenhauer-Zitat von der Architektur als gefrorener Musik zu zitiert? Bei Dominique Coulons Musikzentrum Allende in der Nähe von Lille drängt es sich indes geradezu auf. Wenn dieses Haus ein Musikstück ist, dann eines aus der modernen Zwölftonmusik: ständig von einem Harmoniewechsel zum nächsten drängend, ohne je bei einem Moll- oder Dur-Dreiklang zur Ruhe zu kommen.
Das beginnt schon beim Baukörper: Große, rechtwinklige Baublocks aus der Nachkriegszeit prägen das Stadtzentrum von Mons-en-Baroeul. Mit seinem Erdgeschoss passt sich der Neubau in deren rechtwinkliges Raster ein, nur um mit seiner Drehung des Obergeschosses davon wieder abzuweichen. Das Haus sei dadurch auf die Blickachse zum Rathaus ausgerichtet, argumentieren die Architekten.
Doch natürlich ist der eigenwillige Dreh auch ein Mittel, um räumliche Spannung zu erzeugen. Äußerlich gibt sich das Haus noch vergleichsweise nüchtern. Seine Betonfassaden sind teils rau und teils glattpiliert. Feine Bruchstücke aus Spiegelglas in den Oberflächen verleihen ihnen im Sonnenschein einen sanften Glitzereffekt.
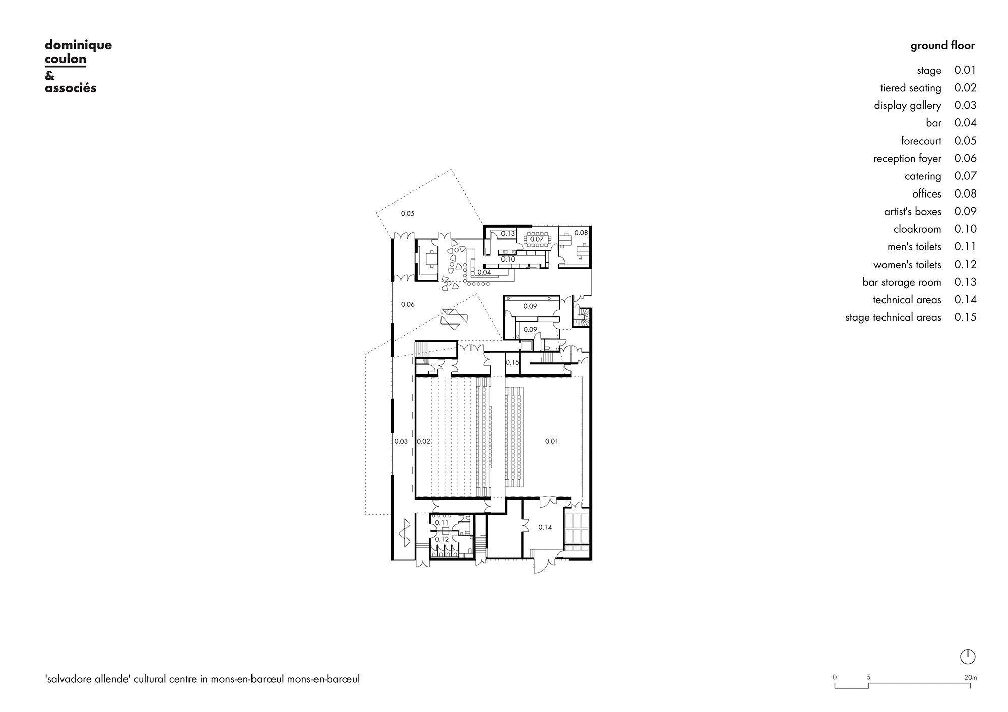
Im Gebäudeinneren stehen klar zwei Dinge im Vordergrund: die Musik – und das Kommen und Gehen, Sehen und Gesehen werden auf den Treppen und Galerien im Foyer. Nur minimale Fläche beanspruchen dagegen die Verwaltungsbüros, und auch die Gastronomie ist nicht viel mehr als ein betonierter Bar-Tresen neben dem Haupteingang.
Das Herzstück des Gebäudes bildet ein Konzertsaal mit wahlweise 500 Sitzplätzen auf einer Teleskoptribüne oder 1000 Stehplätzen. Im Obergeschoss gibt es ein Instrumentenlager und drei Probenräume, von denen einer auch für Aufnahmen genutzt werden kann. Schon bei ihren gekippten, teils gelochten oder verspiegelten, schwarzen und weißen Wand- und Deckenoberflächen zeigt der bekennende Komplexitätsliebhaber Coulon seine Abneigung gegen alles Banale, geradeaus Gedachte. Im Foyer potenziert sich dieser Eindruck nochmals: Die Treppenläufe und Galerien überkreuzen sich mehrfach, ihre Unterseiten sind schwarzglänzend lackiert, was den darunter liegenden Bereichen eine etwas gedrückte Atmosphäre verleiht. Aufgehoben wird ihre Dissonanz erst von der weißen Gipskartondecke über dem obersten Geschoss, die mit ihren integrierten Leuchten an einen Sternenhimmel erinnern soll.
Das beginnt schon beim Baukörper: Große, rechtwinklige Baublocks aus der Nachkriegszeit prägen das Stadtzentrum von Mons-en-Baroeul. Mit seinem Erdgeschoss passt sich der Neubau in deren rechtwinkliges Raster ein, nur um mit seiner Drehung des Obergeschosses davon wieder abzuweichen. Das Haus sei dadurch auf die Blickachse zum Rathaus ausgerichtet, argumentieren die Architekten.
Doch natürlich ist der eigenwillige Dreh auch ein Mittel, um räumliche Spannung zu erzeugen. Äußerlich gibt sich das Haus noch vergleichsweise nüchtern. Seine Betonfassaden sind teils rau und teils glattpiliert. Feine Bruchstücke aus Spiegelglas in den Oberflächen verleihen ihnen im Sonnenschein einen sanften Glitzereffekt.
Im Gebäudeinneren stehen klar zwei Dinge im Vordergrund: die Musik – und das Kommen und Gehen, Sehen und Gesehen werden auf den Treppen und Galerien im Foyer. Nur minimale Fläche beanspruchen dagegen die Verwaltungsbüros, und auch die Gastronomie ist nicht viel mehr als ein betonierter Bar-Tresen neben dem Haupteingang.
Das Herzstück des Gebäudes bildet ein Konzertsaal mit wahlweise 500 Sitzplätzen auf einer Teleskoptribüne oder 1000 Stehplätzen. Im Obergeschoss gibt es ein Instrumentenlager und drei Probenräume, von denen einer auch für Aufnahmen genutzt werden kann. Schon bei ihren gekippten, teils gelochten oder verspiegelten, schwarzen und weißen Wand- und Deckenoberflächen zeigt der bekennende Komplexitätsliebhaber Coulon seine Abneigung gegen alles Banale, geradeaus Gedachte. Im Foyer potenziert sich dieser Eindruck nochmals: Die Treppenläufe und Galerien überkreuzen sich mehrfach, ihre Unterseiten sind schwarzglänzend lackiert, was den darunter liegenden Bereichen eine etwas gedrückte Atmosphäre verleiht. Aufgehoben wird ihre Dissonanz erst von der weißen Gipskartondecke über dem obersten Geschoss, die mit ihren integrierten Leuchten an einen Sternenhimmel erinnern soll.
Weitere Informationen:
Mitarbeiter: Fanny Lienart, Lukas Unbekandt, Thibaut Muller, Guillaume Wittmann, Diego Bastos-Romero
Bauüberwachung: Damien Surroca Architects
Tragwerksplanung: Batiserf Ingénierie
Elektro- und TGA-Planung: BET Gilbert Jost
Umweltingenieure: Impact QE
Szenografie: Changement à vue
Kostenplanung: E3 Économie
Akustik: Euro sound project
Mitarbeiter: Fanny Lienart, Lukas Unbekandt, Thibaut Muller, Guillaume Wittmann, Diego Bastos-Romero
Bauüberwachung: Damien Surroca Architects
Tragwerksplanung: Batiserf Ingénierie
Elektro- und TGA-Planung: BET Gilbert Jost
Umweltingenieure: Impact QE
Szenografie: Changement à vue
Kostenplanung: E3 Économie
Akustik: Euro sound project





























