// Check if the article Layout ?>
Vertikal interpretiert: K8 in Kioto
Fotos: Nacása & Partners
Kleine Gässchen mit Kneipen, Bordellen, Wohnungen und Shops durchziehen das Viertel Pontocho. Unaufdringliche Luxus-Restaurants wechseln sich mit preiswerteren und visuell auffälligeren Bars und Bautypologien ab, darunter immer wieder kleine Schätze. Städtebauliche Regularien haben dazu geführt, dass das Viertel Pontocho architektonisch nahezu unverändert geblieben ist. Intakte Gebäudeensembles aus schmalen und niedrigen Häusern machen den Reiz dieser Gegend aus. Im westlich zu Pontochos Hauptstraße verlaufenden Kiyamachidori entstanden dagegen peu à peu Gebäude mit bis zu sechs Geschossen. Wo sich früher auf gerade einmal 50 Quadratmetern zwölf Bars in drei aneinander grenzenden Häusern drängten, befindet sich heute zwischen zwei dieser Gebäude auf einem schmalen Grundstück das K8.
Die Fassade verrät auf den ersten Blick weder Maßstab noch Funktion des Gebäudes. Mit ihrer homogenen sich jedoch immer wieder verändernden Ansicht, kreiert sie eine Zweideutigkeit, die in Kiotos Architektur oft zu finden ist: Hunderte, hölzerne Lamellen erzeugen – graduell gedreht – ein Bild von Bewegung. Während man aus jedem Betrachtungswinkel neue Eindrücke gewinnt und nicht genau weiß, wie viele Etagen sich hinter der Fassade eigentlich verbergen, befindet sich das Gebäude in einem ständigen Dialog zu seiner Umgebung. Fast ein bisschen so, als würde es sich selbst bewegen und nicht der Passant, der daran vorbeischreitet, versteckt es mehr als es preisgibt und erzeugt dabei eine mystische Atmosphäre.
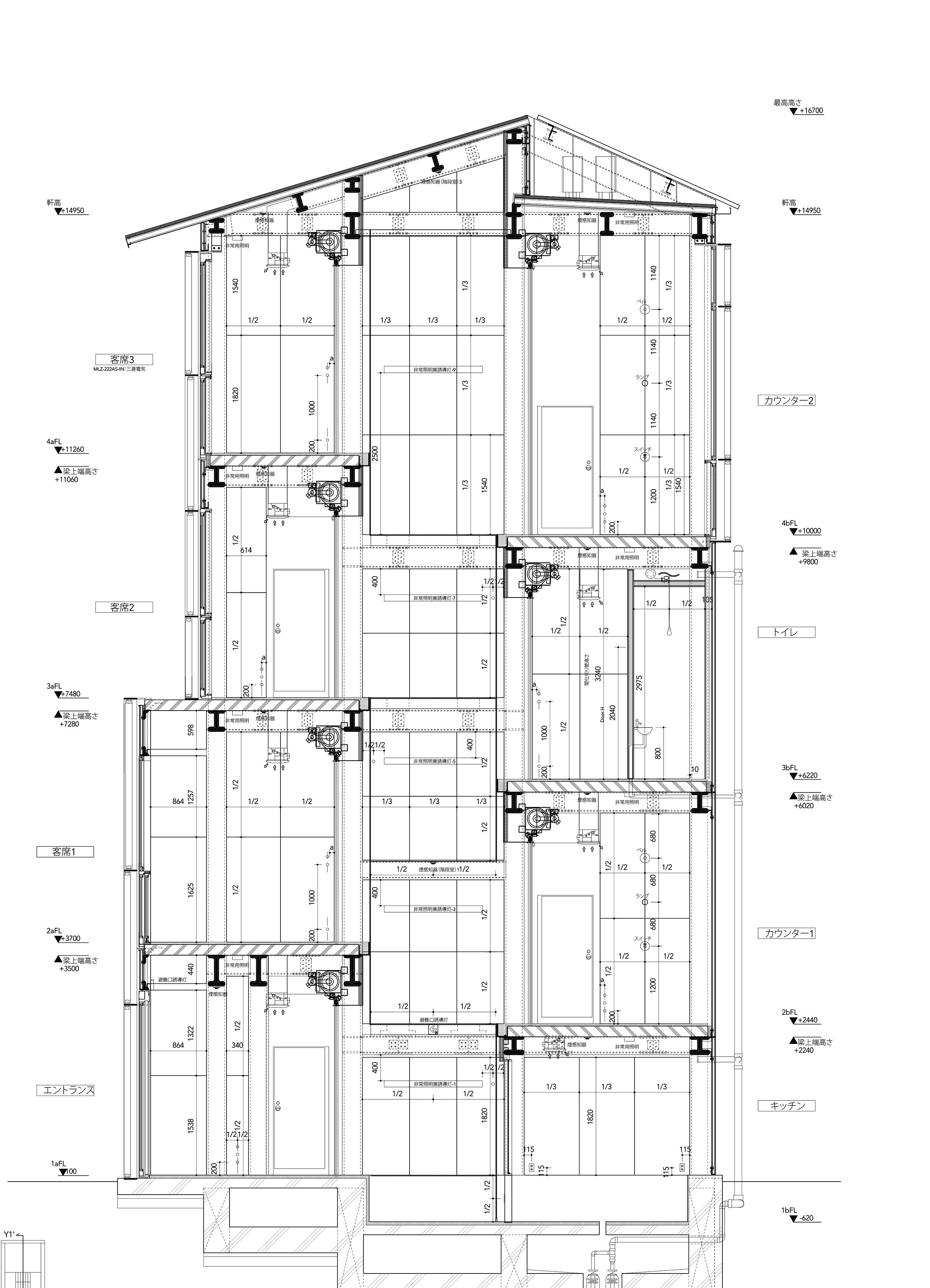
Für das K8 übersetzen die Architekten die historisch verankerten, horizontal organisierten Begegnungsmuster in eine spannungsreiche vertikale Struktur. Durch den bewussten Verzicht auf einen Aufzug – der nach Meinung der Architekten mehr trennt als verbindet – entsteht ein zusammenhängender, nahezu fließender Raum, der sich über acht Geschosse erstreckt. Der Abend soll sich hier graduell entwickeln, vom Aperitif im Erdgeschoss zum Digestif im Dachgeschoss mit Blick auf das Viertel und den nahen Fluss Kamogawa. Im Mittelpunkt steht dabei das Geschehen auf dem Weg zwischen den einzelnen Ebenen. Roh belassene, authentische Materialien schaffen dabei einen puren Raum mit viel Platz und eine ideale Kulisse für spontane Begegnungen.
Die Fassade verrät auf den ersten Blick weder Maßstab noch Funktion des Gebäudes. Mit ihrer homogenen sich jedoch immer wieder verändernden Ansicht, kreiert sie eine Zweideutigkeit, die in Kiotos Architektur oft zu finden ist: Hunderte, hölzerne Lamellen erzeugen – graduell gedreht – ein Bild von Bewegung. Während man aus jedem Betrachtungswinkel neue Eindrücke gewinnt und nicht genau weiß, wie viele Etagen sich hinter der Fassade eigentlich verbergen, befindet sich das Gebäude in einem ständigen Dialog zu seiner Umgebung. Fast ein bisschen so, als würde es sich selbst bewegen und nicht der Passant, der daran vorbeischreitet, versteckt es mehr als es preisgibt und erzeugt dabei eine mystische Atmosphäre.
Für das K8 übersetzen die Architekten die historisch verankerten, horizontal organisierten Begegnungsmuster in eine spannungsreiche vertikale Struktur. Durch den bewussten Verzicht auf einen Aufzug – der nach Meinung der Architekten mehr trennt als verbindet – entsteht ein zusammenhängender, nahezu fließender Raum, der sich über acht Geschosse erstreckt. Der Abend soll sich hier graduell entwickeln, vom Aperitif im Erdgeschoss zum Digestif im Dachgeschoss mit Blick auf das Viertel und den nahen Fluss Kamogawa. Im Mittelpunkt steht dabei das Geschehen auf dem Weg zwischen den einzelnen Ebenen. Roh belassene, authentische Materialien schaffen dabei einen puren Raum mit viel Platz und eine ideale Kulisse für spontane Begegnungen.
weitere Informationen:
Projektteam: Florian Busch Architects: Florian Busch, Sachiko Miyazaki, Suguru Takahashi, Akira Miyamoto, Antoine Vaxelaire, Renee Reder, Oliver Pershav, Katie Colford (intern), Shiori Sageshima (intern), Anne-Marlene Rüede (intern), Kayo Nakamura (intern)
Bruttogeschossfläche: 155,98 m²
Höhe: 16,70 Meter
Bruttogeschossfläche: 155,98 m²
Höhe: 16,70 Meter


























