// Check if the article Layout ?>
Vertikal rhythmisiert: Sporthalle von Atelier Zündel Cristea
Foto: Sergio Grazia
Der Stadtteil Neudorf bei Straßburg unterliegt derzeit einem umfassenden Neuentwicklungsprogramm und soll durch Nahverdichtungsmaßnahmen stärker an die Innenstadt angebunden werden. Eines der Hauptprojekte dieses Programms bildet die neue Sporthalle, die bereits von der Hauptverkehrsstraße sichtbar ist. Zwei Meter in den Boden abgesenkt, wirkt das Volumen jedoch nicht dominant, sondern tritt in Bezug zu seinem städtebaulichen Umfeld.
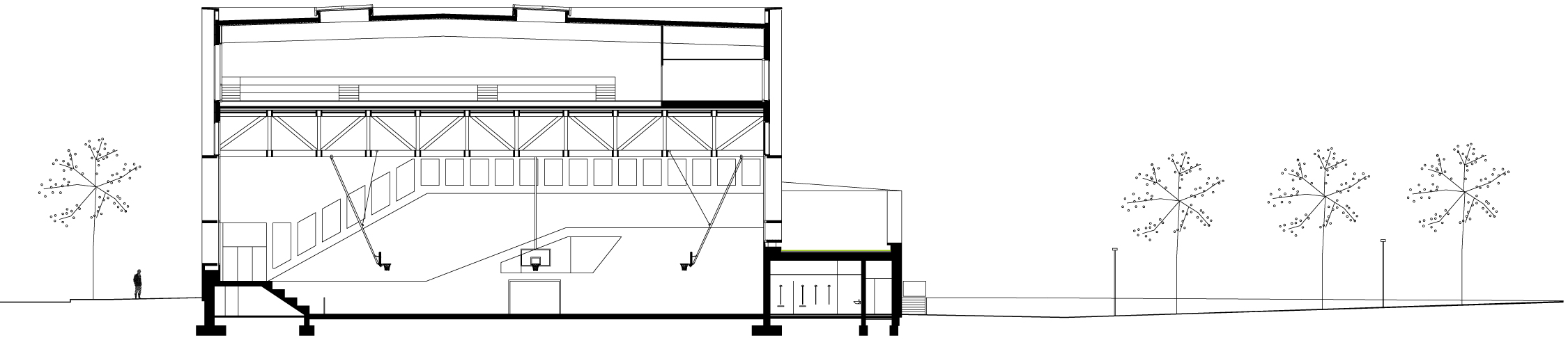
Die Wahl der Materialien stand für die Architekten schnell fest: Aufgrund seiner extremen, sportlichen Nutzung wurde der Sockel der Sporthalle in Stahlbeton konstruiert. Auf jeder Seite schiebt sich dieser schräg verlaufend aus dem Erdreich hervor und formiert sich im Eingangsbereich zu einer eigenständigen Figur. Im Kontrast zum massiven Unterbau ist der darüber liegende Kubus in einer stahlverstärkten Holzkonstruktion ausgeführt. In einem Achsabstand von 1,6 Metern erzeugt die nach außen gelegte Konstruktion eine gleichmäßig gegliederte Fassade, die dem strengen Baukörper eine filigrane Note verleiht.
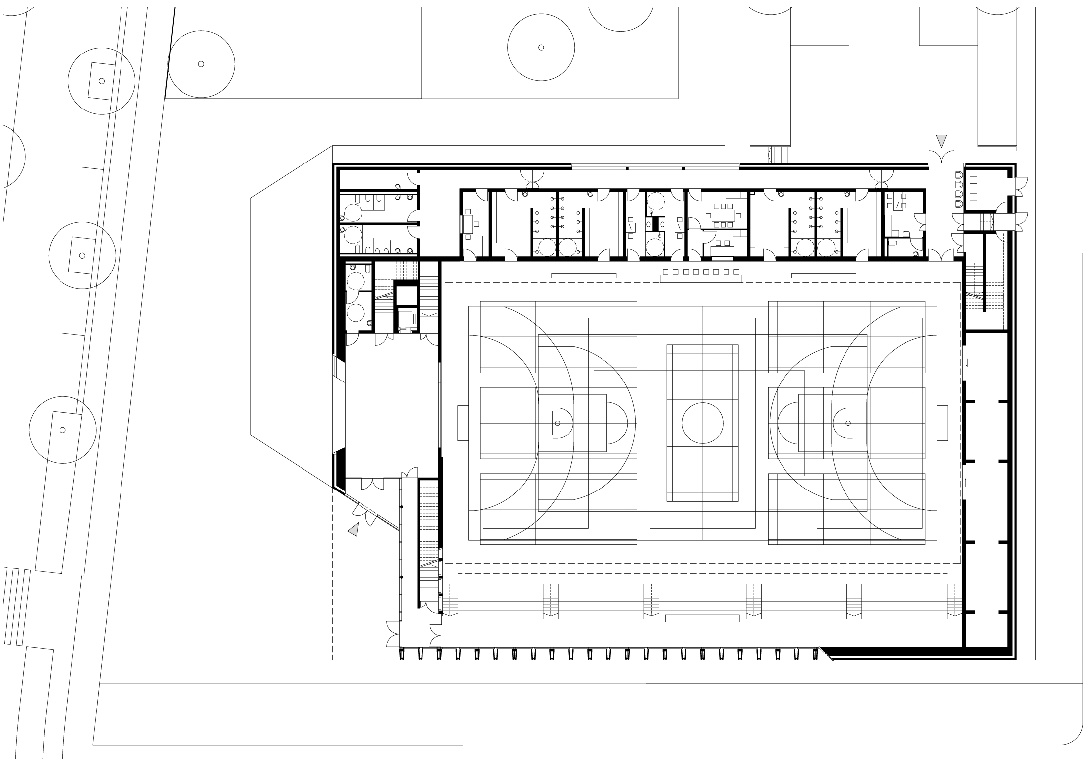
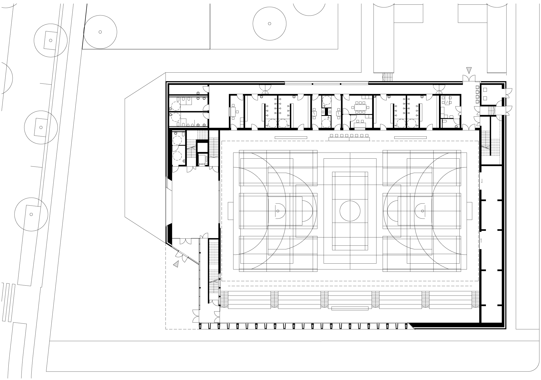
Die Sporthalle kann über zwei unterschiedliche Eingänge betreten werden: Der Haupteingang im Erdgeschoss richtet sich an das öffentliche Publikum, ein zweiter Eingang ist für Sportklubs oder Schulgruppen vorgesehen. Der abgesenkte Sockel beherbergt neben der Eingangshalle, einer Cafeteria und Umkleideräumen auch eine großzügige Mulitfunktionssporthalle, welche durch ein mäanderartig verlaufendes Fensterband allseitig natürlich belichtet wird. Neben dem Oberlicht wird die Haupthalle außerdem von einer markanten gitterartigen Deckenkonstruktion geprägt. Im darüberliegenden Geschoss befindet sich eine weitere, kleinere Sporthalle, die zum Fechten genutzt wird und über separate Umkleideräume verfügt.
Fechten, Handball, Basketball, Badminton oder Gymnastik: Die neue Sporthalle in Neudorf bietet für jede Sportart eine geeignete Hülle. Trotz seines umfangreichen Raumprogramms mit seinen spezifischen, festgesetzten Vorgaben entstand ein klarer und kompakter Baukörper mit einer strengen aber nicht starren Geometrie. Mit Hilfe der vertikal rhythmisierten Fassade konnte trotz der Dimensionen eine nahezu spielerisch anmutende Gebäudehülle erzeugt werden, die in angemessenen Bezug zum Umfeld tritt.
Die Wahl der Materialien stand für die Architekten schnell fest: Aufgrund seiner extremen, sportlichen Nutzung wurde der Sockel der Sporthalle in Stahlbeton konstruiert. Auf jeder Seite schiebt sich dieser schräg verlaufend aus dem Erdreich hervor und formiert sich im Eingangsbereich zu einer eigenständigen Figur. Im Kontrast zum massiven Unterbau ist der darüber liegende Kubus in einer stahlverstärkten Holzkonstruktion ausgeführt. In einem Achsabstand von 1,6 Metern erzeugt die nach außen gelegte Konstruktion eine gleichmäßig gegliederte Fassade, die dem strengen Baukörper eine filigrane Note verleiht.
Die Sporthalle kann über zwei unterschiedliche Eingänge betreten werden: Der Haupteingang im Erdgeschoss richtet sich an das öffentliche Publikum, ein zweiter Eingang ist für Sportklubs oder Schulgruppen vorgesehen. Der abgesenkte Sockel beherbergt neben der Eingangshalle, einer Cafeteria und Umkleideräumen auch eine großzügige Mulitfunktionssporthalle, welche durch ein mäanderartig verlaufendes Fensterband allseitig natürlich belichtet wird. Neben dem Oberlicht wird die Haupthalle außerdem von einer markanten gitterartigen Deckenkonstruktion geprägt. Im darüberliegenden Geschoss befindet sich eine weitere, kleinere Sporthalle, die zum Fechten genutzt wird und über separate Umkleideräume verfügt.
Fechten, Handball, Basketball, Badminton oder Gymnastik: Die neue Sporthalle in Neudorf bietet für jede Sportart eine geeignete Hülle. Trotz seines umfangreichen Raumprogramms mit seinen spezifischen, festgesetzten Vorgaben entstand ein klarer und kompakter Baukörper mit einer strengen aber nicht starren Geometrie. Mit Hilfe der vertikal rhythmisierten Fassade konnte trotz der Dimensionen eine nahezu spielerisch anmutende Gebäudehülle erzeugt werden, die in angemessenen Bezug zum Umfeld tritt.
weitere Informatonen:
Architekten: Atelier Zündel Cristea
Team: Alexie Bertrand, Stefano Lunardi
Partner: Jost, Hagenmuller, Sedime, E3 Economie, CAP Avenir, Euro Sound Project, François Liermann
Fläche: 4290 m2
Team: Alexie Bertrand, Stefano Lunardi
Partner: Jost, Hagenmuller, Sedime, E3 Economie, CAP Avenir, Euro Sound Project, François Liermann
Fläche: 4290 m2





















