// Check if the article Layout ?>
Vertikalisierung im Backstein: Five-Story-House von stpmj
Foto: Bae Jihun
Das »Five-Story-House« von stpmj ist ein fünfstöckiges Einfamilienhaus für eine fünfköpfige Familie in Seoul. Auf weniger als 100 m2 Wohnfläche erstrecken sich vertikal angeordnete Raumaufteilungen. In der dicht besiedelten südkoreanischen Hauptstadt mit einer standardisierten Wohnkultur auf einer Ebene durchaus als architektonische Provokation zu verstehen, so die Architekten.
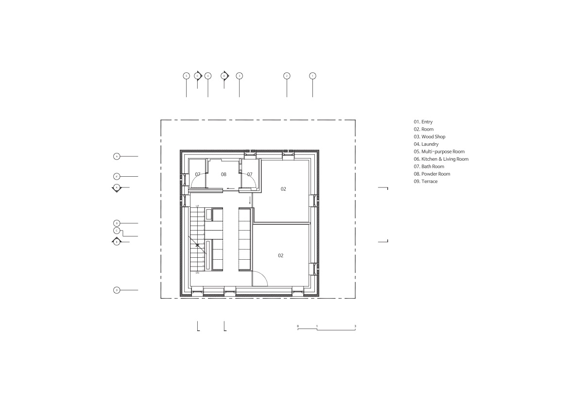
Im Erdgeschoss befindet sich das Möbelstudio des Vaters und ein multifunktionaler Raum für die drei Töchter. Der erste Stock mit Küche, Wohn- und Essbereich bildet einen großen Raum für gemeinsame Aktivitäten der Familie. Die Schlafzimmer sind auf die übrigen drei Stockwerke verteilt. Die hohen, schmalen Fenster sind zur Südseite mit Backsteingitter vor den Blicken der benachbarten Gebäude abgeschirmt.
Einzelne Wölbungen und in der Fassade zurückgesetzte Elemente geben dem »Five-Story-House« besondere Raumqualitäten – so fließt die abgeschrägte Wand auf der vierten Etage in den Terrassenbereich und formt ein im vertikalen Verlauf ein weiteres hervorstehendes Merkmal, das sich von der normierten Wohnform in Seoul optisch absetzt.






































