Verwandelter Lokschuppen: Bibliothek in Tilburg
Foto: Stijn Bollaert
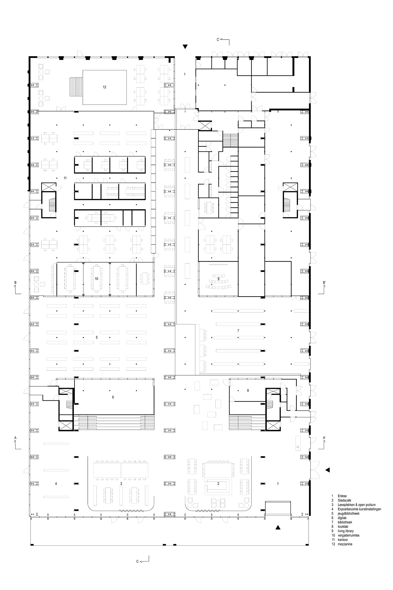
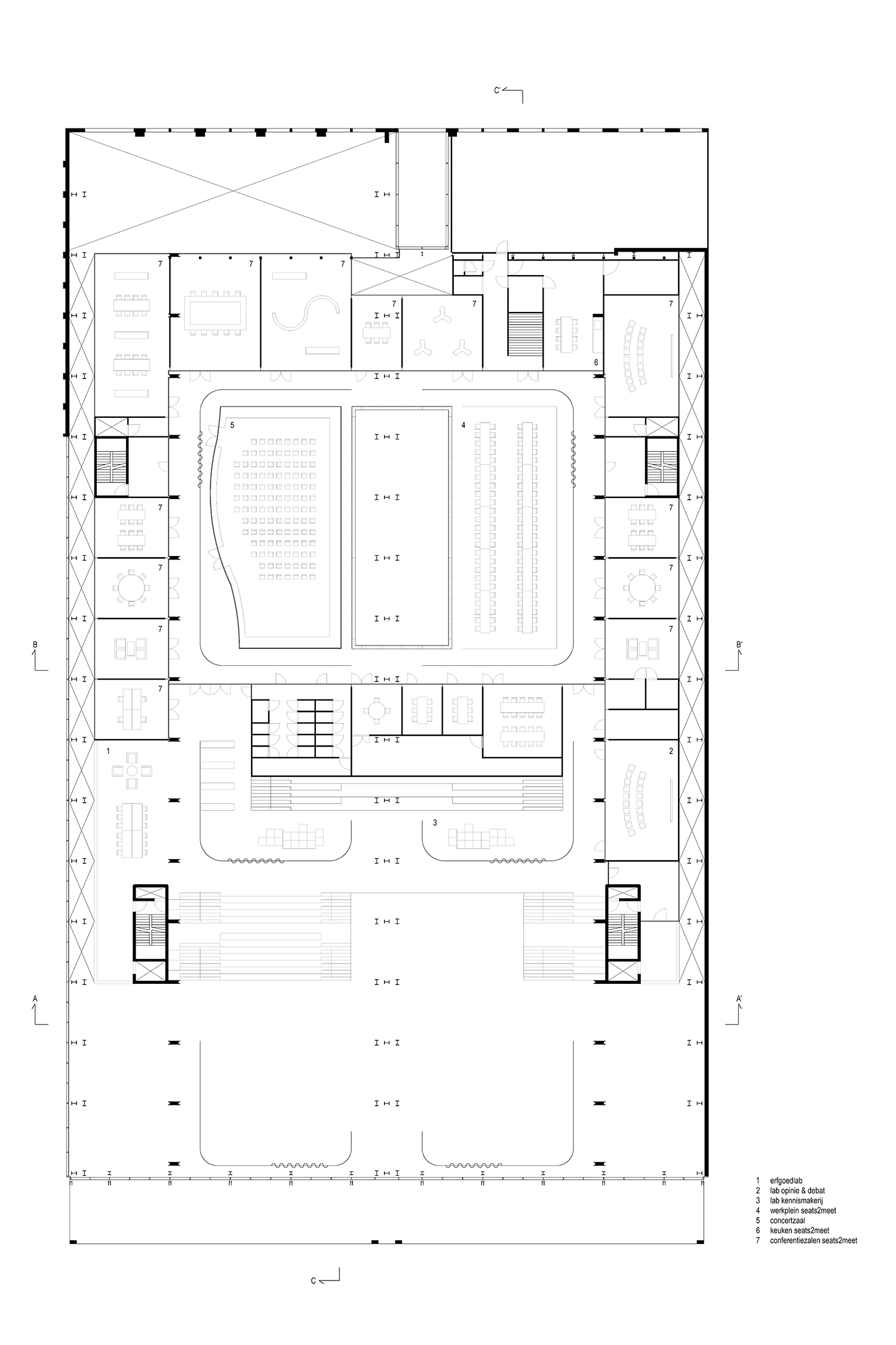
Unter dem Namen »LocHal« ist ein lebendiger Kulturtreffpunkt entstanden: Das ehemalige Eisenbahngebäude bietet nicht nur viel Platz für Bücher, sondern auch für Ausstellungen, Veranstaltungen, Gastronomie und Coworking Spaces.
Die zweischiffige Industriehalle aus dem Jahr 1932 mit Abmessungen von 90 x 60 m und 15 m Höhe blieb im Wesentlichen erhalten und wurde lediglich durch zwei Ebenen und eine Galerie ergänzt, welche die verschiedenen Nutzungen von Konzertsaal bis Lernlabor aufnehmen. Dabei unterstreichen die neuen Materialien – schwarzer Stahl und Holz – den rohen Charme des ehemaligen Lokschuppens.
Zentrales Element ist die breite Freitreppe, die die verschiedenen Ebenen miteinander verbindet und mit ihren einladenden Sitzstufen Leseplatz, Treffpunkt und Auditorium zugleich ist. Bei Bedarf finden hier bis zu 1000 Zuschauer Platz.
Um einzelne Bereiche, zum Beispiel für Veranstaltungen, in dem riesigen Volumen abtrennen zu können, haben sich die Architekten einen besonderen Clou einfallen lassen: Sechs überdimensionale Vorhänge hängen von der Decke und bieten – computergesteuert – verschiedene Möglichkeiten der Raumzonierung. Gleichzeitig setzen die insgesamt 4125 m2 großen Stoffbahnen einen starken Akzent in dem imposanten Industriebau.
Weitere Informationen:
Innenarchitektur/Möbel: Mecanoo
Landschaftsarchitekten: Donkergroen
Bauleitung: Stevens van Dijck Bouwmanagers & Adviseurs
Bauunternehmen: Binx Smartility















