Industriekultur in historischen Mauern
Vetrina dell’Ingegno in Udine von Alessandro Verona
Mit einem weit heruntergezogenen, grau verputzten Fassadenschirm grenzt sich der neue Anbau vom Innenhof ab. © Massimo Crivellari
Einst war die Torre Santa Maria Teil der Stadtbefestigung von Udine. Später beherbergte der Wehrturm aus dem 13. Jahrhundert Läden, ein Kunstatelier und eine Zeit lang sogar das Museum für Stadtgeschichte. Anfang des 21. Jahrhunderts begann ein 15-jähriger Leerstand, jetzt ist der Turm zu neuem Leben erwacht.


Von der Straße aus gesehen kündet nur der neue Aufzugsturm von dem Umbau. Die bestehenden Fassadenöffnungen des Turms wurden großzügig verglast. © Massimo Crivellari
Vitrine für den Erfindergeist
Der regionale Industrieverband Confindustria Udine, der seinen Hauptsitz im benachbarten Palazzo Torriani-Manin hat, ließ das Gebäude nach Plänen von Alessandro Verona zum Museum für Industriekultur umbauen. Der offizielle Name: La Vetrina dell’Ingegno (deutsch: Schaufenster des Erfindungsreichtums).
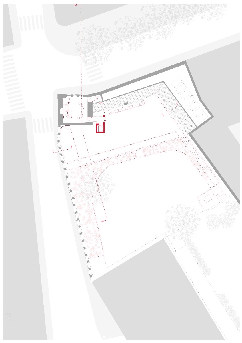
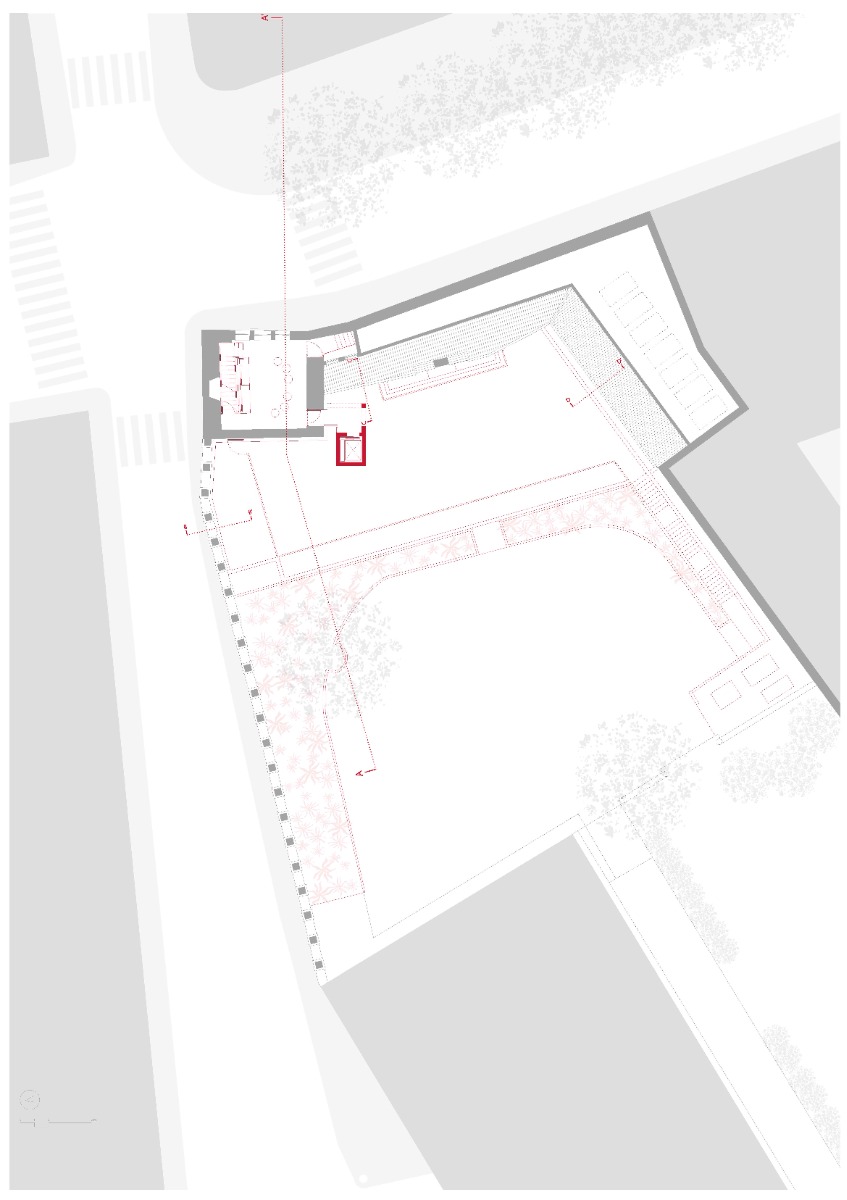
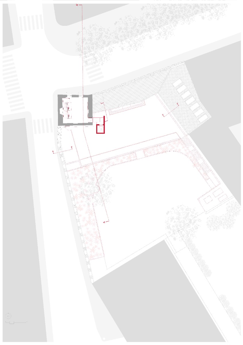
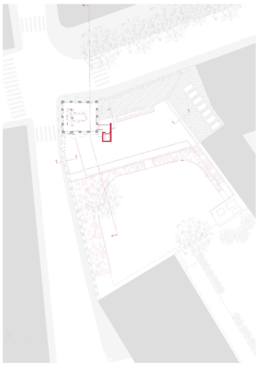
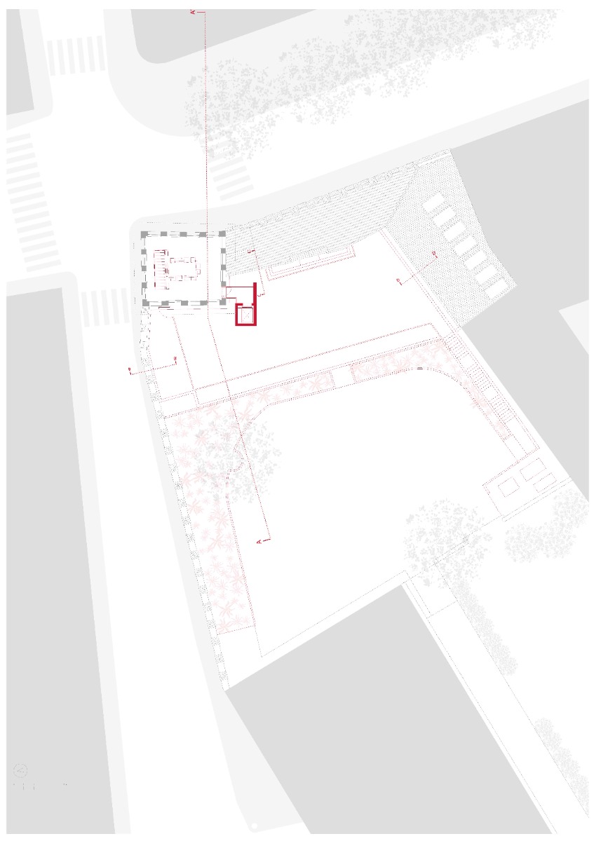
Alessandro Veronas Entwurf fokussiert sich auf zwei Bestandteile: die Erweiterung des Erdgeschosses sowie den Umbau des sechsgeschossigen Turms. Der Architekt ergänzte die bestehende, zinnenbekrönte Blockrandbebauung um einen Anbau Richtung Innenhof und zum Palazzo Torriani.


Blick in die neue Eingangshalle. Rechts die bestehende Tordurchfahrt zum Hof. © Massimo Crivellari
Von beiden Seiten zugänglich
Der Durchgangscharakter dieses Geschosses ist indes erhalten geblieben. Die neue Eingangshalle bleibt von beiden Seiten aus zugänglich – aus Osten, von der Straße, durch einen gewaltigen Torbogen und aus dem Innenhof unter einem weit heruntergezogenen Fassadenschirm hindurch. Hinter der grau verputzten Fläche verbirgt sich eine leichte Stahlkonstruktion, dann ein tiefer Fassadenzwischenraum für die technischen Installationen und schließlich die eigentliche, massive Außenwand des Anbaus.


Anbau, Aufzugsturm und Dachterrasse heben sich in homogenem Grau deutlich von den Bestandsstrukturen ab. © Massimo Crivellari
Großzügige Dachterrasse
Der Anbau ist niedrig genug, um von der Straße aus unsichtbar zu bleiben. Sein großes Flachdach ist zugänglich – als Fluchtweg für die Obergeschosse des Turms, aber auch ganz regulär für Veranstaltungen und als Aussichtsterrasse. Im Inneren der Eingangshalle befinden sich der Empfang, ein kleiner Bibliotheksbereich sowie der Auftakt zu den Ausstellungsflächen, die sich in den Turmgeschossen fortsetzen. Im angrenzenden Bestandsflügel ist ein Veranstaltungssaal untergebracht.


Glasflächen und umlaufende Lichtfugen in den Decken trennen Alt und Neu. © Massimo Crivellari
Glas und Licht trennen Alt und Neu
Alt und neu sind innen wie außen säuberlich voneinander getrennt, zum Beispiel durch Verglasungen und durch umlaufende Lichtfugen in den abgehängten Decken. Gleichzeitig verbanden die Architekten Innen und Außen an vielen Stellen miteinander, etwa indem sie den Bodenbelag aus der Halle in den Vorbereich zum Hof hinaus fortsetzten.


In den Turmgeschossen sollen Wechselausstellungen gezeigt werden. © Massimo Crivellari
Markanter Aufzugsturm
Ebenso deutlich ist der Alt-Neu-Kontrast am Turm: Hier ließ Alessandro Verona die alte Außentreppe entfernen und durch einen markanten Aufzugsturm ersetzen. Er erhielt den gleichen grauen Putzüberzug wie die Fassaden an der Hofseite. In den Turmgeschossen sind fünf je 45 m² große Bereiche für Wechselausstellungen entstanden. Sie sollen sich jeweils einer der elf Branchen widmen, die Confindustria Udine vertritt.
Architektur: Alessandro Verona Studio
Bauherr: Confindustria Udine
Standort: Via Antonio Zanon, 31, 33100 Udine (IT)
Tragwerksplanung: Andrea Craighero
TGA-Planung: ETA Progetti
Bauunternehmen: Cella Costruzioni

















