// Check if the article Layout ?>
Vielfalt in der Einheit: Universitätszentrum »des Quais« in Lyon
Foto: Aldo Amoretti
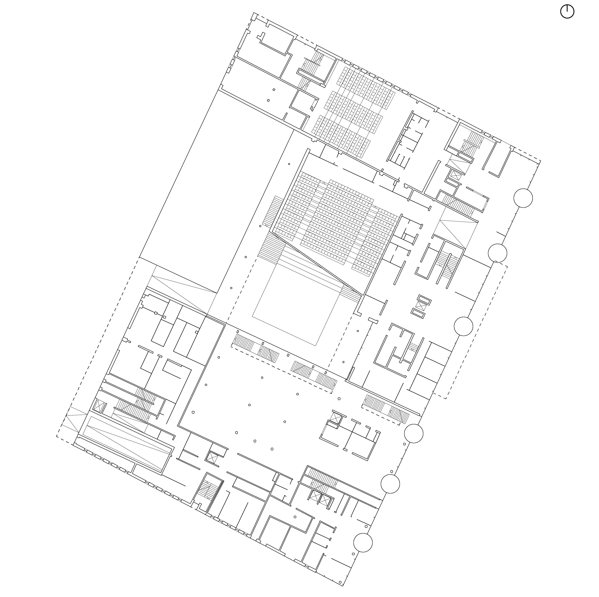
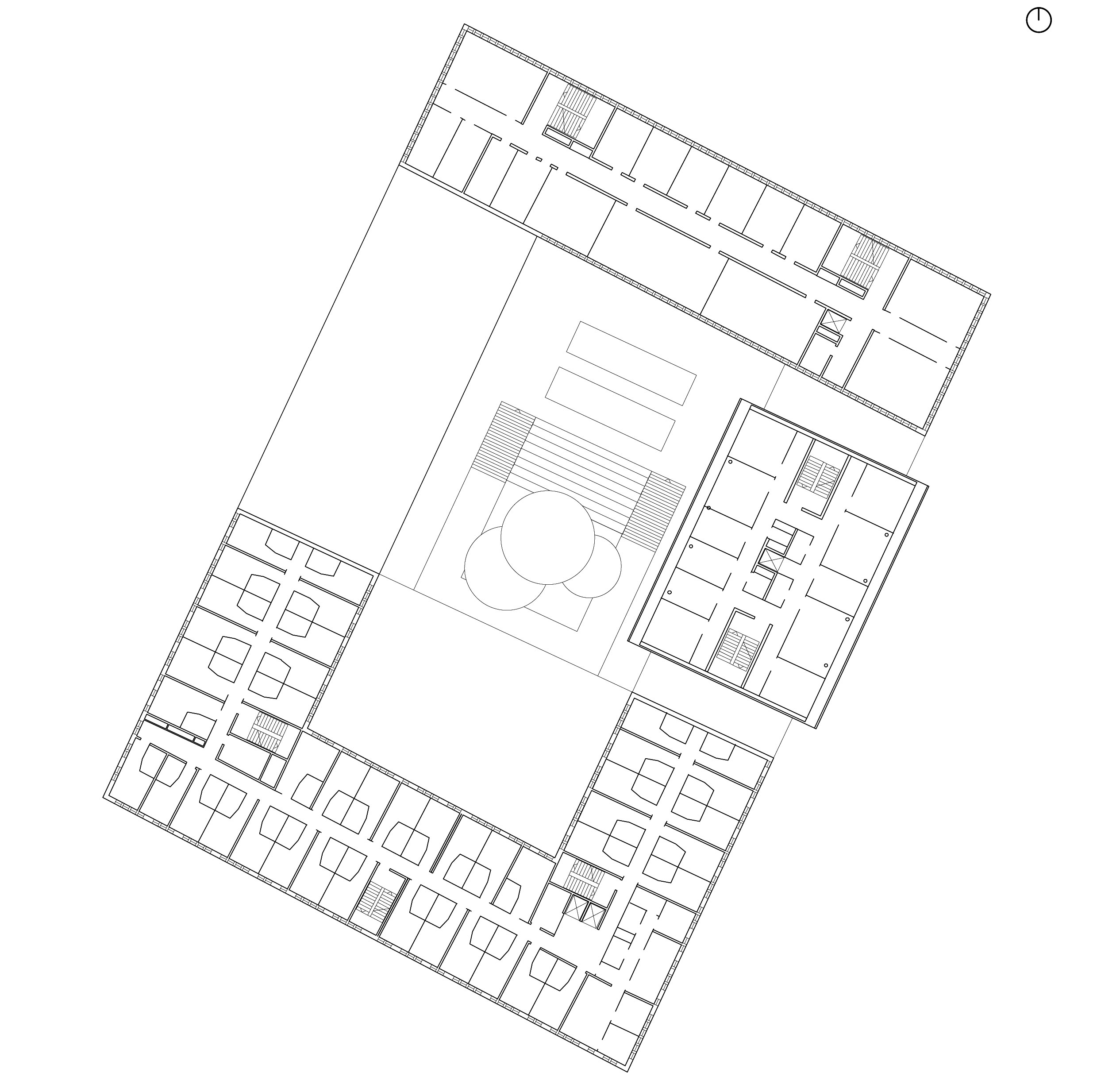
Das neue Universitätszentrum am östlichen Ufer der Rhône im französischen Lyon besteht aus insgesamt fünf Gebäudeeinheiten: Dem Institut für Technologie IUT für ungefähr 900 Studierende, der Verwaltung für Forschung und Hochschulwesen PRES, einer Mensa für knapp 1900 Essen, einem Studentenwohnheim für 200 Betten und dem Internationalen Haus der Sprachen und Kulturen. Ringförmig um einen introvertierten, gestalteten Innenhof angeordnet, bilden die einzelnen Bausteine zur stadtgewandten Seite trotz funktionaler Trennung eine homogene Einheit. Hofseitig entsteht jedoch ein Wechselspiel der einzelnen Volumen. Der Gedanke eines öffentlichen Ortes der Kommunikation und des Austauschs scheint sich hier indirekt auch auf die Interaktion der einzelnen Baukörper zu übertragen. Abgestufte Terrassenbereiche, eine große Freitreppe und Vor- und Rücksprünge der einzelnen Körper kreieren ein großzügiges Forum mit Aufenthaltsqualität.
Die Fassade bilden helle Betonsandwichelemente mit sich in schmalen Abständen wiederholenden Lisenen. Ein integrierter Sonnenschutz und der Verzicht auf additive Elemente wie Fensterbänke sollen eine klare einheitliche Struktur entstehen lassen. Homogene Materialien und deren Farbgebung schaffen einen ausgewogenen Dialog mit der Umgebung.
Als Herzstück und bewusster Kontrast fungiert ein gläserner Kubus über dem Hauptzugang an der Rue de Pasteur. Mit einer Hülle aus verstellbaren, vertikalen Glaslamellen und einer divergenten Größe im Vergleich zu den anderen Bausteinen bildet er das i-Tüpfelchen des Ensembles. So als würde er über dem Komplex schweben und durch die gläserne Fassade das gesamte Areal im Blick haben, beherbergt er den Kopf des Ensembles – die Verwaltung für Forschung und Hochschulwesen. Während sich im Erdgeschoss die öffentlichen Bereiche wie Foyer, Mensa und die Hörsäle ansiedeln, sind die oberen Geschosse für Büros, Seminarräume und Studentenwohnungen reserviert. Mittelpunkt bildet hier das abgesenkte Auditorium, welches auf seinem Dach im ersten Obergeschoss eine großzügige Terrasse ausbildet und sich über Sitzstufen mit dem Innenhof verbindet.
Während sich das Ensemble in seiner Kubatur geradlinig der Umgebung und der Blockstruktur anpasst, entsteht im Innenhof eine natürlichere, offenere Raumsituation, die zum Verweilen einlädt – ein Wechselspiel mit dem die Architekten eine glaubwürdige Antwort auf die nicht ganz leichte Bauaufgabe geben. Helle, wohl proportionierte Innenräume mit punktuellen Farbakzenten wirken stimmig und machen Lust aufs Studieren.














