// Check if the article Layout ?>
Vielschichtiges Theatererlebnis: Umbau von Flores & Prats Architects
Foto: Adrià Goula
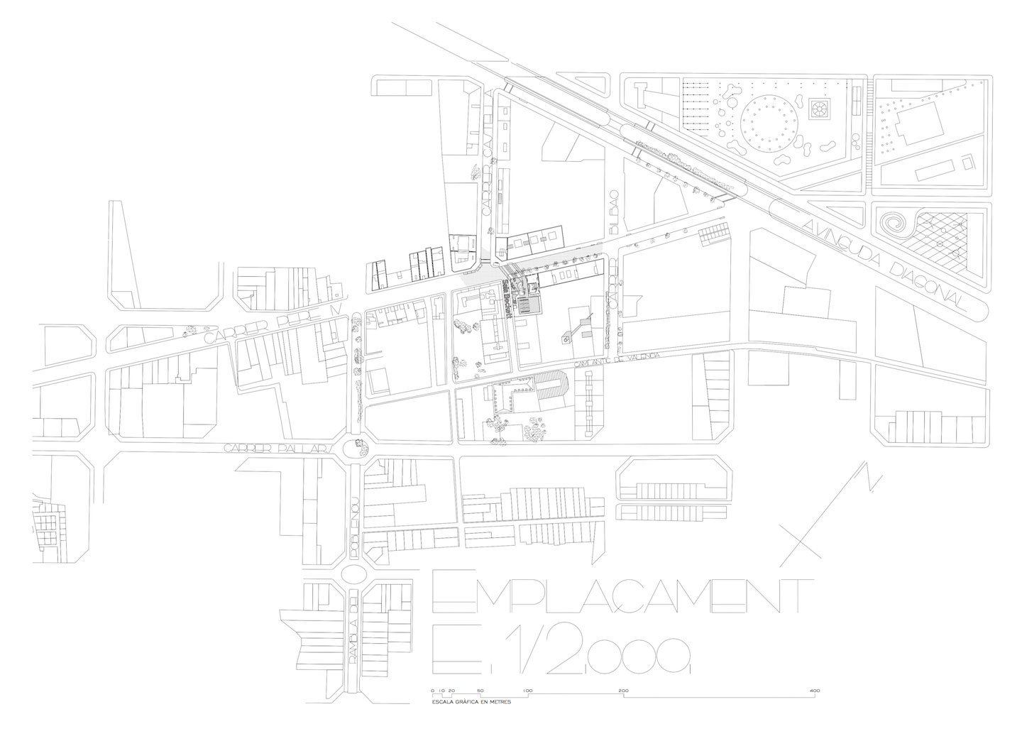
Geradezu gelassen steht das zweigeschossige Gebäude mit den blutroten Fenster- und Türrahmen an der Kreuzung Carrer de Pere IV und Carrer de Batista in Barcelona. Es ist in die Jahre gekommen, hat die verschiedensten Nutzer überlebt und der Putz klammert sich mit letzten Kräften an die Fassade. Doch von innen heraus strahlt es in lebendigen Farben. In großen Lettern prangt der Name der Sala Beckett über dem Fries. Die Theaterwerkstatt ist angekommen in diesem ehemals industriellen Viertel, das sich für die Olympiade 1992 schon einmal stark gewandelt hat und nun von den ansässigen Künstlern und Kreativen geprägt ist.
Um nach der Kooperative Pau i Justicia nun ein Theater zu beherbergen, war eine umfassende Restaurierung der Räume notwendig. Bei der Recherche zum Entwurf besuchten die Architekten auch das Théâtre des Bouffes du Nord in Paris, das eine ähnlich bewegte Geschichte vorweisen kann. Der Intendant Peter Brooks brachte das vergessene Theater zu neuem Glanz und auch bei der Wiederbelebung der Sala Beckett arbeiteten Ricardo Flores und Eva Prats eng mit dem neuen Direktor, Toni Casares zusammen.
Sie entschieden sich, die Ruine mit ihren vielfältigen Komponenten in eine neue Realität zu übertragen. Die detailreiche Gestaltung mit bunten Mosaiken, Stuckarbeiten, Rosettenfenstern und ornamentalen Holzrahmen stammt aus einer Zeit, in der die Arbeiterbewegungen in Barcelona begannen, Gebäude für die Freizeitgestaltung aufwendiger zu gestalten. Jedes dieser Elemente wurde genauestens dokumentiert, in eine Sammlung aufgenommen und soll nun sinnstiftend für die zukünftige Theaterarbeit werden.
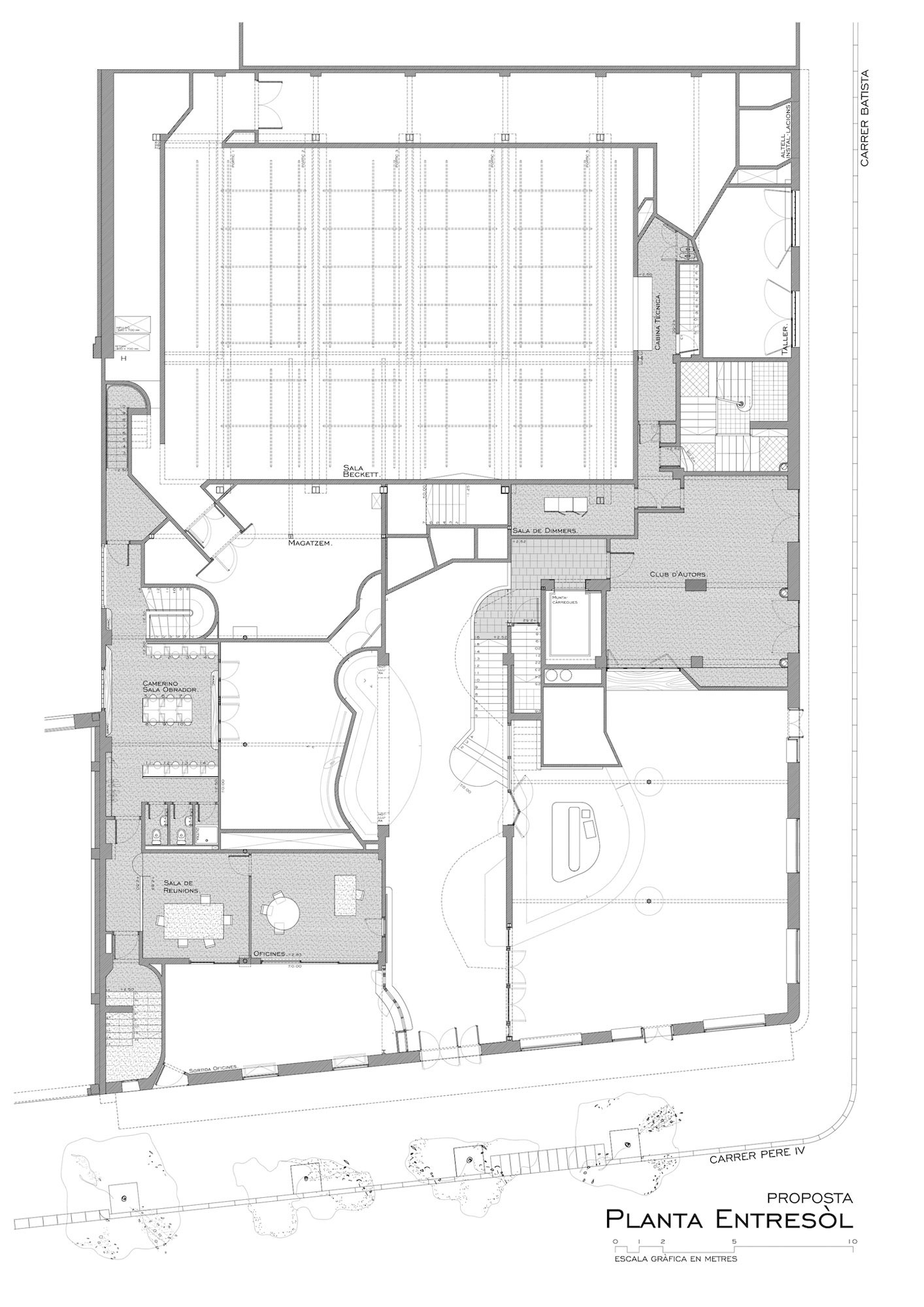
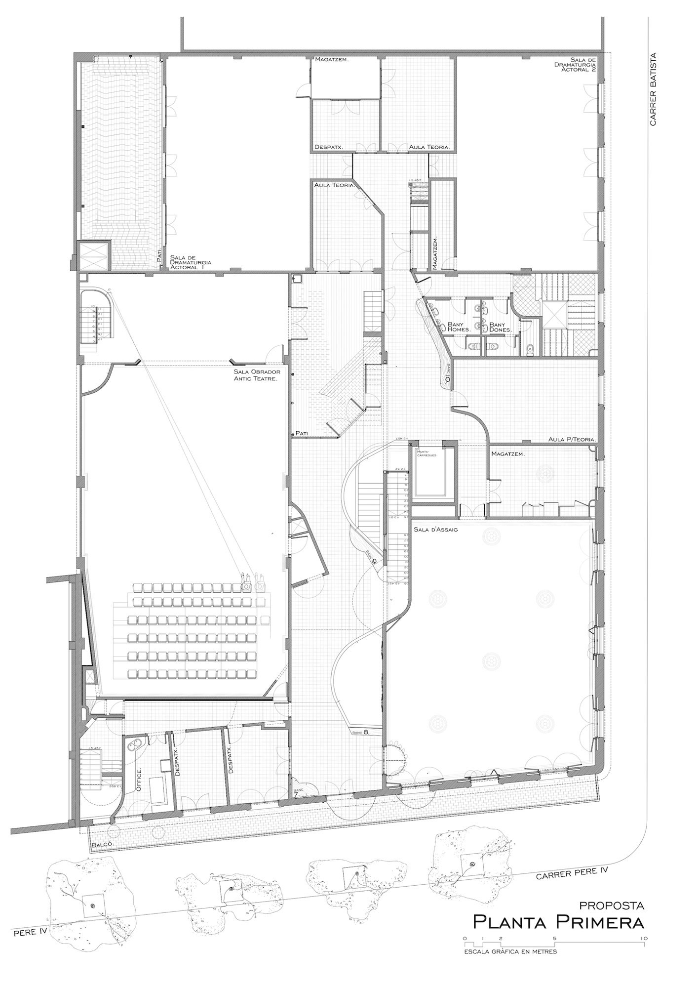
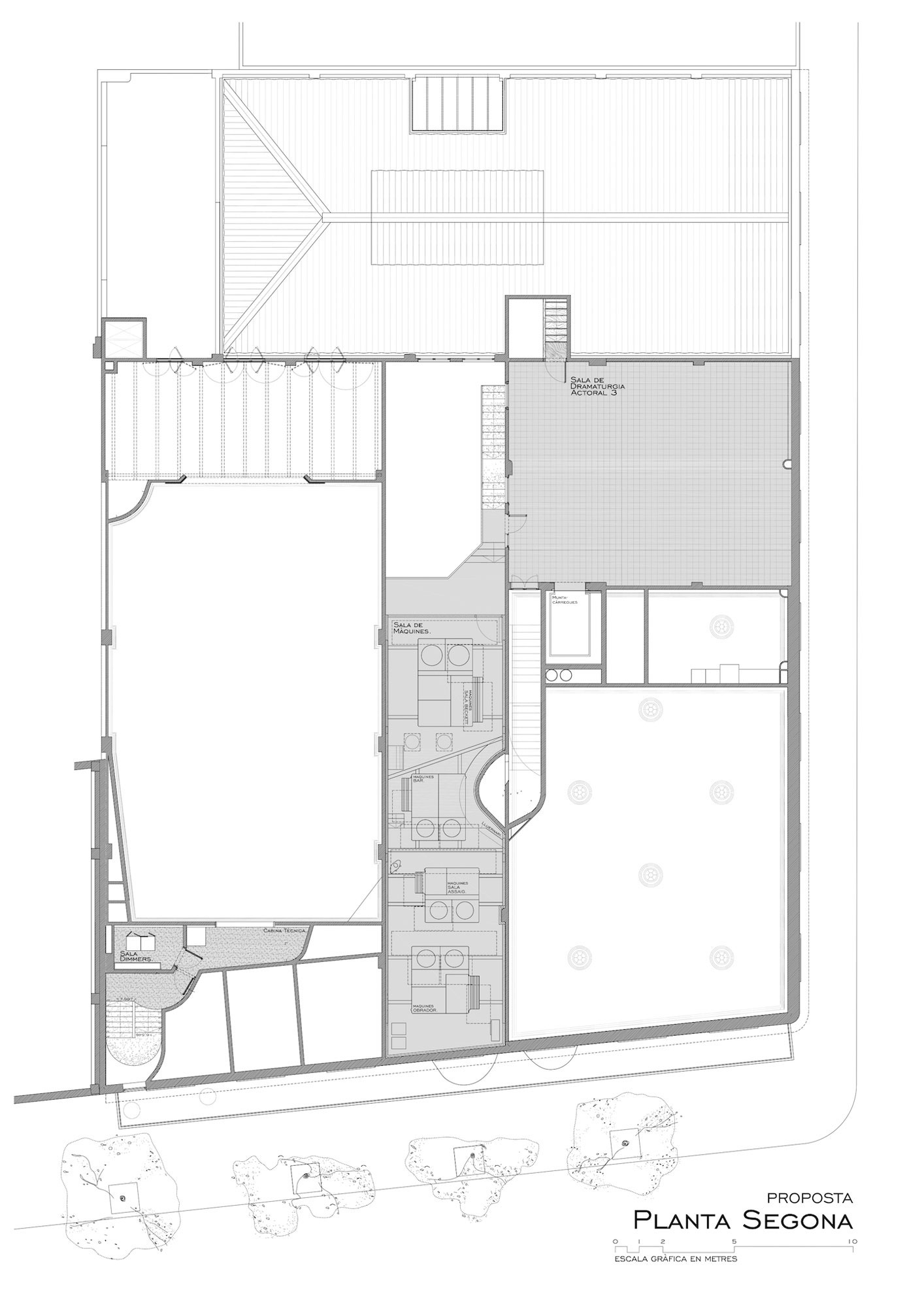
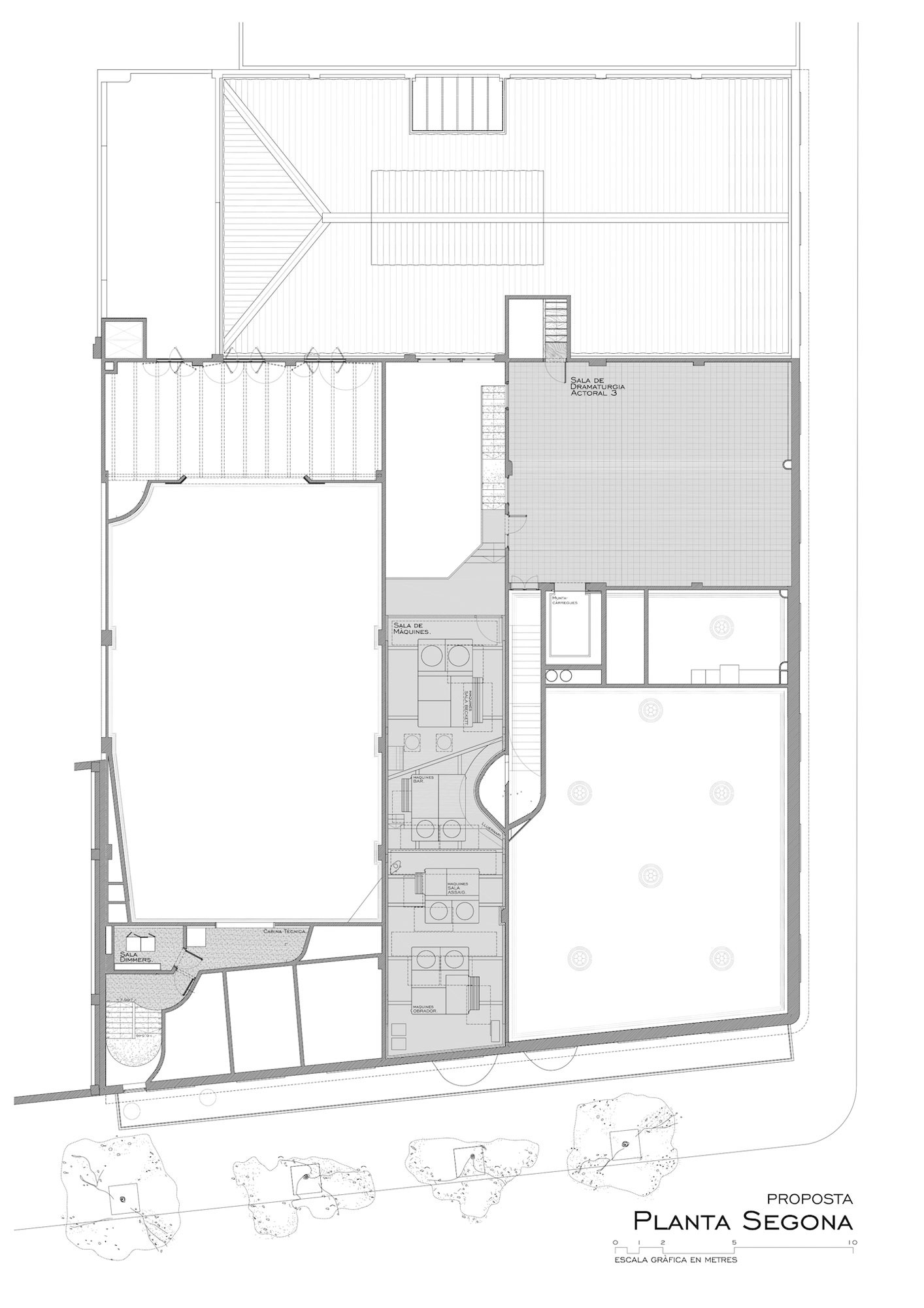
Im Erdgeschoss liegen zum größten Teil öffentliche Räume. Das Café an der Ecke lässt Einblicke von der Straße zu und zusammen mit dem Eingangsbereich bildet es einen Raum der Begegnung und der Interaktion. Als Warteraum mit Bänken und einer Bar bildet diese Situation ein temporäres Heim für die Theaterbesucher. Dahinter befinden sich Büroräume sowie Künstlergarderoben mit mehreren Bühnenzugängen. Ein zentraler Gang erschließt sämtliche Bereiche sowie eine Treppe. Im ersten Obergeschoss liegen dann ein zweiter Bühnenraum sowie ein Proberaum, die ebenfalls von einem zentralen Flur erschlossen werden. Anstelle des Flurs nimmt im zweiten Obergeschoss die Technik diesen Raum ein. Daneben kommt ein weiterer Proberaum unter. Bindeglied der verschiedenen Geschosse und Bereiche ist das Tageslicht, welches durch ein Oberlicht einfällt. Es vereint die komplexen Strukturen des Gebäudes und deutet den Besuchern den Weg vom Eingangsbereich zur Bühne.
»The new Sala Beckett is a space where the audience member enters and breathes, understands, feels that they are not customers for an industrial product, but part of a dialogue, a person who makes sense of what is presented on stage.«, sagt Toni Casares, Direktor der Sala Beckett.
Der Kurzfilm »Taking Care of the Ghosts« von Albert Badia gewährt Einblicke in den Entstehungsprozess und die Idee der Sala Beckett.
Weitere Informationen:
Gesamtfläche: 2923 m²
Kosten: 2500000 €
Projektbeteiligte: Eirene Presmanes, Jorge Casajús, Micol Bergamo, Michelle Capatori, Emanuele Lisci, Cecilia Obiol, Francesca Tassi-Carboni, Nicola Dale, Adrianna Mas, Giovanna de Caneva, Michael Stroh, Maria Elorriaga, Pau Sarquella, Rosella Notari, Laura Bendixen, Francesca Baldessari, Marta Smektala, Ioanna Torcanu, Carlotta Bonura, Florencia Sciutto, Georgina Surià, Elisabet Fàbrega, Julián González, Valentina Tridello, Agustina Álvaro Grand, Monika Palosz, Shreya Dudhat, Jordi Papaseit, Judith Casas, Tomás Kenny, Filippo Abrami, Constance Lieurade, Iben Jorgensen, Lucía Gutiérrez, Gimena Álvarez, Agustina Bersier, Mariela Allievi, Toni Cladera, Clàudia Calvet
Kosten: 2500000 €
Projektbeteiligte: Eirene Presmanes, Jorge Casajús, Micol Bergamo, Michelle Capatori, Emanuele Lisci, Cecilia Obiol, Francesca Tassi-Carboni, Nicola Dale, Adrianna Mas, Giovanna de Caneva, Michael Stroh, Maria Elorriaga, Pau Sarquella, Rosella Notari, Laura Bendixen, Francesca Baldessari, Marta Smektala, Ioanna Torcanu, Carlotta Bonura, Florencia Sciutto, Georgina Surià, Elisabet Fàbrega, Julián González, Valentina Tridello, Agustina Álvaro Grand, Monika Palosz, Shreya Dudhat, Jordi Papaseit, Judith Casas, Tomás Kenny, Filippo Abrami, Constance Lieurade, Iben Jorgensen, Lucía Gutiérrez, Gimena Álvarez, Agustina Bersier, Mariela Allievi, Toni Cladera, Clàudia Calvet

























