Viergeschossiger Holz-Hybridbau: Büros für die Elektrizitätswerke
Foto: Olaf Herzog
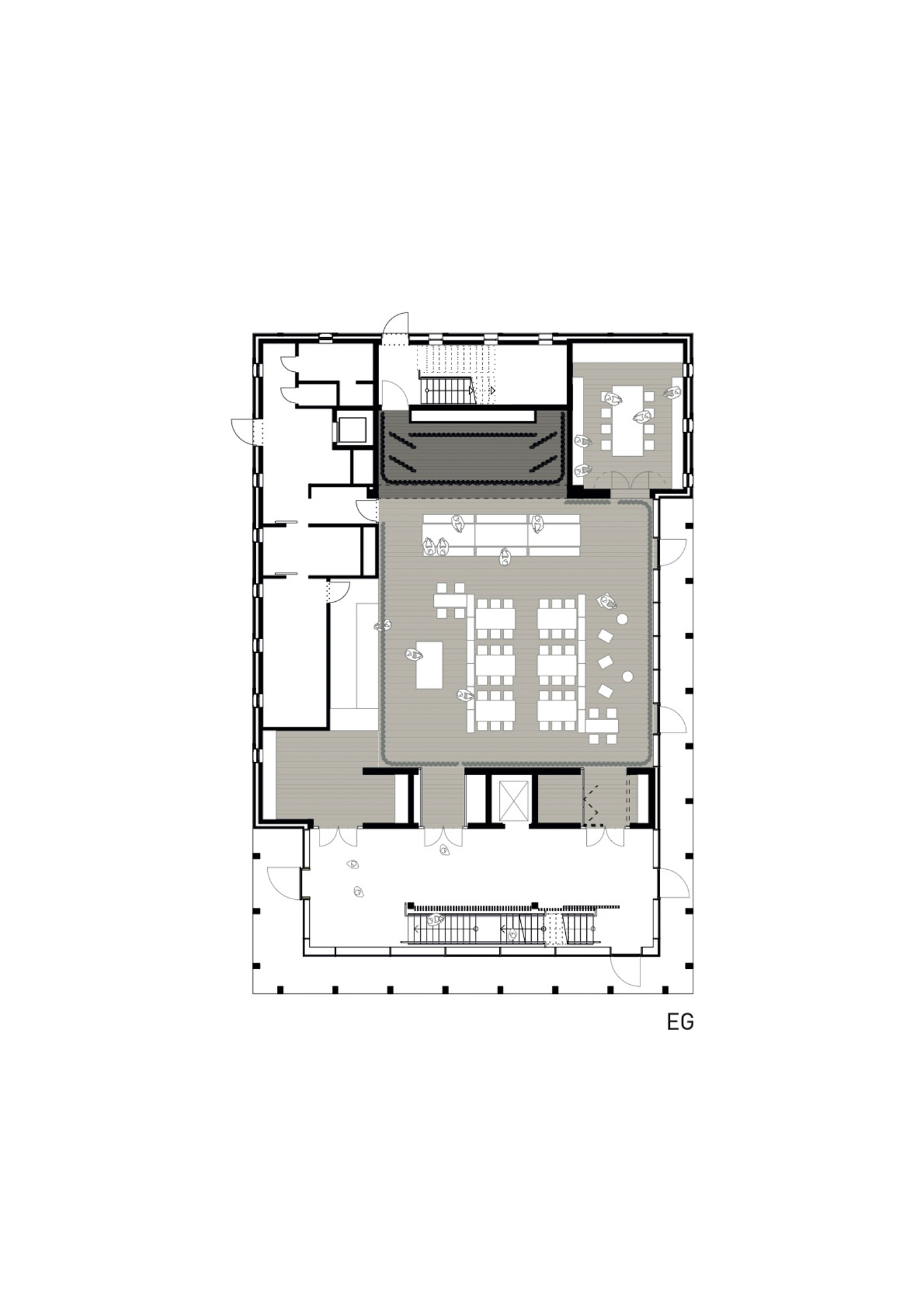
Die Gestaltung der Hülle verrät viel über die Raumorganisation des neuen Gebäudes. Im Erdgeschoss wirkt es offen und ist gut einsehbar durch die schmalen Betonstützen und großformatigen Verglasungen. Tatsächlich befinden sich hier Räume, die der Öffentlichkeit offenstehen. Neben dem Foyer und einem Besprechungsraum sitzt im Zentrum die Kantine, die sich in Verbindung mit der Bühne auch als Veranstaltungsraum nutzen lässt.
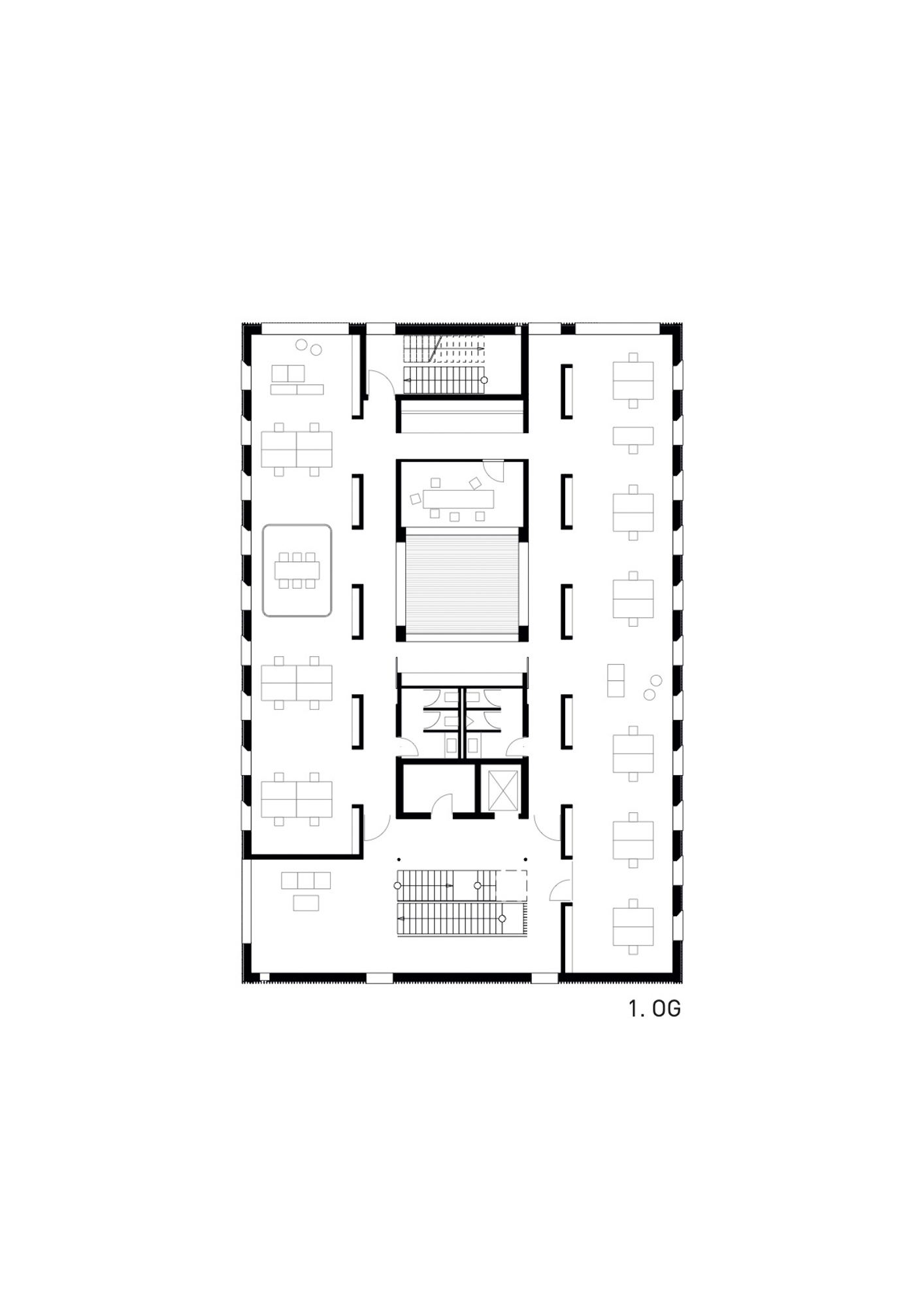
Darüber ist das Gebäude in drei Zonen gegliedert, denen jeweils ein Shed aufgesetzt wurde. Die beiden äußeren der drei Zonen werden als Büros genutzt – dazwischen liegt die Versorgung mit Meeting Points, Teeküchen, Fluchttreppenhaus, Aufzugsturm und einem kleinen Innenhof. Die Flure sind durch eine Servicezone von den Büros getrennt. Diese integriert Schränke, raumhohe Schiebetüren sowie die Elektro- und Lüftungsinstallation. Auf der Fassade sind die Flure als Glasfuge ablesbar.
Grundrissgestaltung und Konstruktion sind eng miteinander verwoben: In den Obergeschossen fungieren Wandschotten aus Brettsperrholz als tragende Elemente; die massiven Kerne steifen das Gebäude aus.
Die Stahlbetonkonstruktion des Sockelgeschosses dient als Tisch für den Holzbau in den oberen Geschossen. Die Holzkonstruktion trägt sich selbst und konnte in sehr kurzer Zeit errichtet werden: Wände, Decken und Dach wurden als konfigurierbare Bauteile vorgefertigt. Die Holzbauteile wurden bereits mit integrierten Leitungen geliefert. Durch den Einbau linearer LEDs in die Deckenplatten der Treppenhalle war kein Über-Kopf-Arbeiten auf Raumgerüsten mehr nötig. Die Rippendecken der Büros kamen direkt mit integrierten Schallabsorbern und einer feinen Akustik-Profilierung auf die Baustelle. Auch auf den Oberflächen – innen wie außen – entschieden sich die Architekten für Holz: Sichtbare Oberflächen aus Weißtanne sorgen für ein ruhiges Bild und ein angenehmes Raumklima in den Büros; vorvergraute Schalungen auf der Fassade nehmen erneuten Bezug auf den Holz-Stahlbeton-Hybrid.
Weitere Informationen:
Ausführung: Holzbau Amann
Projektarchitekt: Armin Stoll
Holzbauteile: Lignotrend





















