Geschichte eines unendlichen Wiederaufbaus
Villa Lónyay-Hatvany in Budapest von Bord Architectural Studio
© Tamás Bujnovszky
Lorem Ipsum: Zwischenüberschrift
In und unter der wiederaufgebauten Minister- und Fabrikantenvilla im Budapester Burgviertel begegnen sich osmanische Mauerreste, klassizistische Fassadengliederungen und ein modernes technisches Innenleben. Gleichzeitig geht mit der Fertigstellung der Villa ein mehr als 25 Jahre währender Planungs- und Bauprozess zu Ende.


© Tamás Bujnovszky
Lorem Ipsum: Zwischenüberschrift
Das Gebäude entstand ursprünglich in den Jahren 1870-72 als Wohnsitz des damaligen ungarischen Ministerpräsidenten Menyhért Lónyay auf dem Areal der Goldenen Bastion, eine unter osmanischer Herrschaft errichteten und 1686 zerstörten Befestigungsanlage im Budapester Burgviertel rechts der Donau.
Lorem Ipsum: Zwischenüberschrift
Die Pläne für den Neubau lieferte seinerzeit der Architekt Miklós Ybl. Kurz nach Fertigstellung trat Lónyay wegen Korruptionsvorwürfen zurück. 1915 erwarb und sanierte Ferenc Hatvany, Kunstsammler und Sohn eines Zuckerfabrikanten die Villa. 1944 wurde sie bei einem Bombenangriff komplett zerstört und das Grundstück stand fortan mehr als 50 Jahre leer.


© Tamás Bujnovszky
Lorem Ipsum: Zwischenüberschrift
1996 erwarb ein Investor das Areal und beauftragte den Architekten József Kerényi mit einem Neubau. Die Budapester Denkmalschutzbehörden hatten die längst zerstörte Villa inzwischen unter Denkmalschutz gestellt und verlangten ihren Wiederaufbau. Das wiederum schien Bauherr und Architekt zu viel der Einschränkung, sodass die Planungen jahrelang ruhten. Ausgrabungen auf dem Grundstück förderten die historischen Mauerreste und einen osmanischen Friedhof zutage. 2006 übernahm Bord Architectural Studio das Projekt mit der Zielsetzung, hier eine Mischnutzung aus Veranstaltungszentrum, Ausstellungssälen, Restaurant und Bar einzurichten.


© Tamás Bujnovszky


© Tamás Bujnovszky
Lorem Ipsum: Zwischenüberschrift
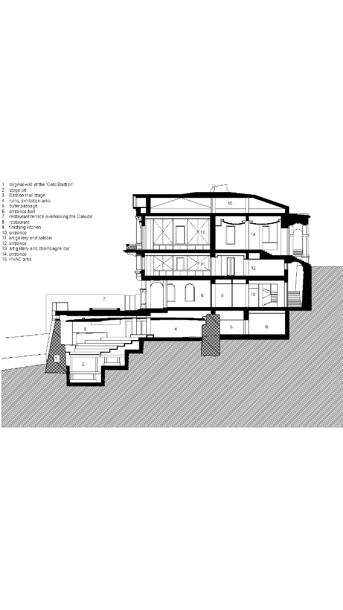
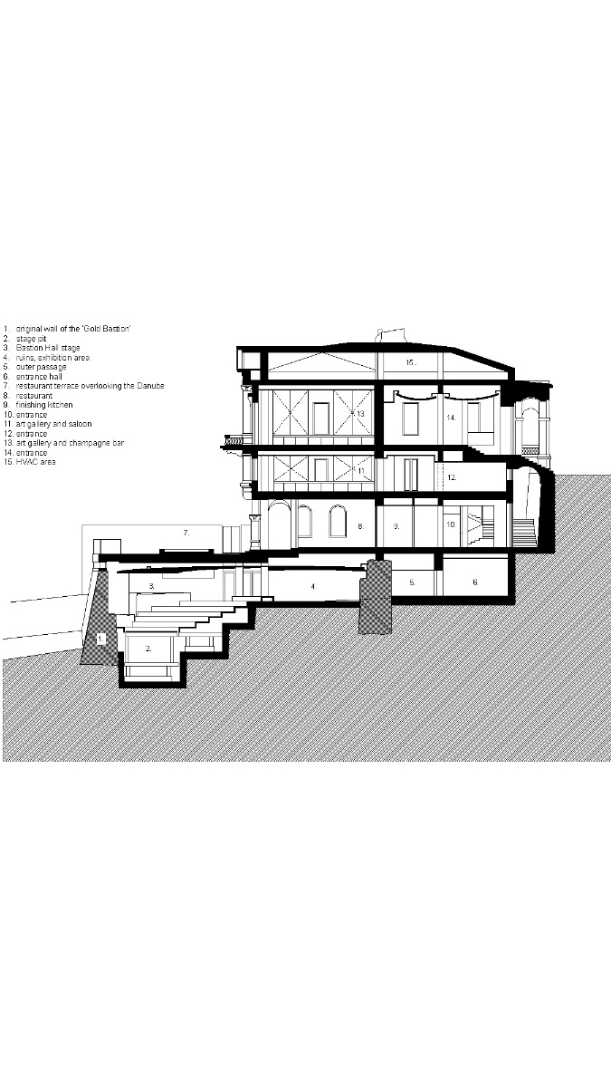
Das Raumprogramm verteilt sich auf je drei ober- und unterirdische Geschosse. Wegen der Hanglage des Hauses führt der Straßeneingang direkt in die Beletage im obersten Geschoss. Der Gartenausgang liegt zwei Ebenen tiefer, und unter dem Garten geht es weitere drei Geschosse in die Tiefe. Die Gartenterrasse des Hauses ist nun komplett unterkellert und eine von Ybl entworfene mächtige Stützmauer, die eigentlich das aufgeschüttete Erdreich zurückhalten sollte, schließt die Untergeschosse nun, funktionslos geworden, zur Talseite ab.


© Tamás Bujnovszky
Lorem Ipsum: Zwischenüberschrift
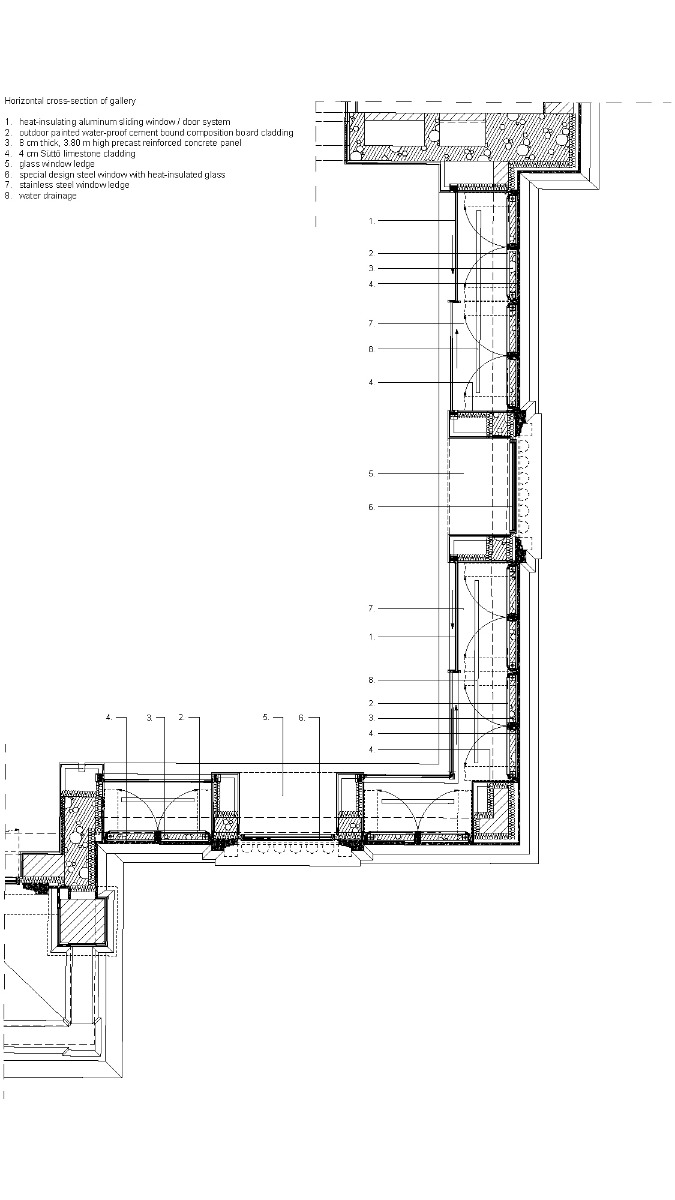
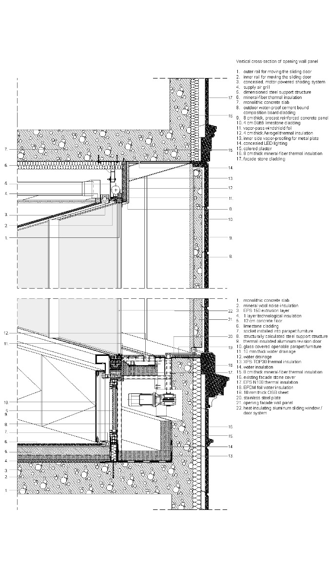
Den modernen Unterbau der Villa gestalteten die Architekten konsequent modern aus Sichtbeton, Naturstein und Glas. In den Obergeschossen mussten sich Fassadengestaltung und Raumaufteilung hingegen am historischen Original orientieren. Für die Tragstruktur konnten die Architekten ein noch von Kerényi entworfenes Stahlbetonskelett übernehmen, das sich als enorm vielseitig erwies. Die Fassaden sind mit 4 cm dünnen Kalksteinplatten auf einer Stahlbetonstruktur verkleidet. Das gleiche Konstruktionsprinzip behielten die Architekten, ungewöhnlich genug, auch für die 48 großen Faltläden vor den Fenstern bei: Sie bestehen aus 8 cm dicken Stahlbeton-Fertigteilen mit Kalksteinverkleidung und werden aufgrund ihres Gewichts elektrisch angetrieben.
Architektur: Kerényi Stúdió (1996-2006), BORD Architectural Studio (2006-2022), Dorka Hindy (Projektkoordination), Péter Bordás (leitender Architekt)
Bauherr: Batthyány Lajos Foundation
Standort: Csónak utca 1, Budapest (HU)
Tragwerksplanung: TM Janeda Kft.
Landschaftsarchitektur: Gardenworks – András Kuhn
TGA-Planung: BORD HVAC Engineering Studio
Elektroplanung: Artvill Kft.






























