// Check if the article Layout ?>
Volles Programm: Kultur- und Bürgerzentrum in Saint-Ouen
Foto: Ecliptique – Laurent Thion
Saint-Ouen ähnelt vielen anderen Banlieues im Nordwesten von Paris: Der historische Ortskern ist von Gewerbegebieten umgeben, die ihn von der Seine abschneiden. Grünanlagen sind Mangelware; Freizeitangebote waren es bisher ebenso.
Das soll sich nun mit dem Neubau der „Maison de la vie associative et du citoyen“ (MVAC) ändern. Das fünfgeschossige Multifunktionsgebäude der Pariser Architekten Laraqui Bringer enthält unter anderem einen Theater- und einen Ausstellungsaal, Gruppenräume, Büros sowie eine Freiterrasse im dritten Obergeschoss. Damit soll es künftig einen wichtigen Treffpunkt für die rund 270 Vereine des Orts und ihre Mitglieder bilden.
Die Architekten bezeichnen das neue Kultur- und Bürgerzentrum als „Utopia im Kleinfomat, das mit seinen hellen, weichen Räumen soziale Verbindungen schafft.“ Sie konzipierten das holzverkleidete Eckgebäude bewusst als Kontrast zu den umliegenden, meist verputzten oder ziegelverkleideten Wohnbauten. Lediglich in der Höhe passt sich der Neubau sich an seine Nachbarn an. Seine Eingangsfront weist fast genau nach Westen, zur vielbefahrenen Durchfahrtsstraße Avenue Gabriel Peri. Die Fenster zur Straße sind mit Faltläden versehen, die in geschlossenem Zustand gemeinsam mit der Lärchenholzverkleidung der Fassade eine homogene Hülle bilden.
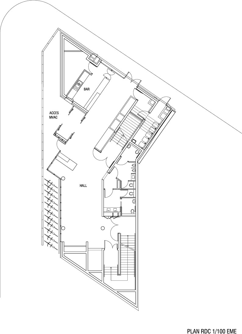
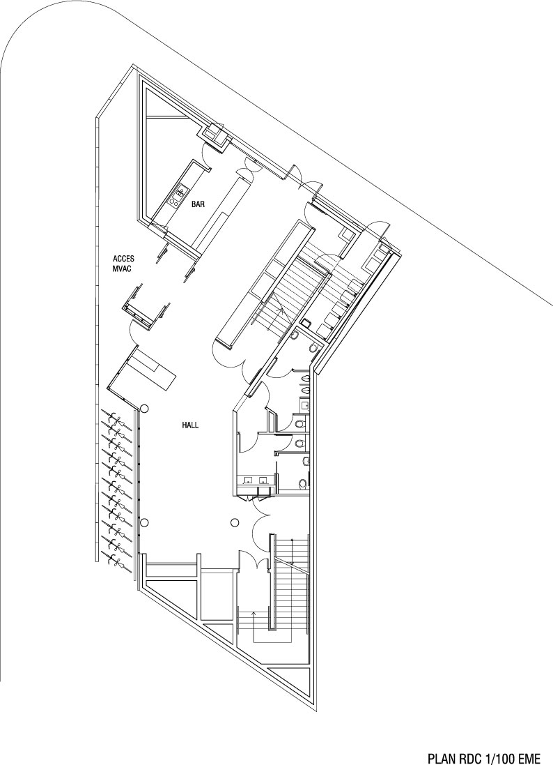
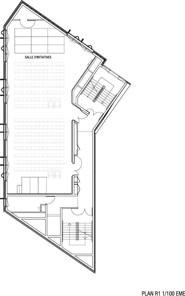
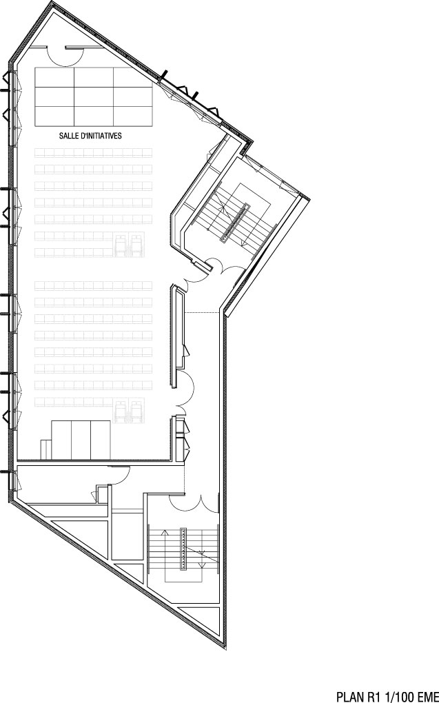
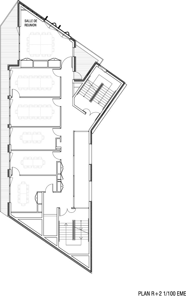
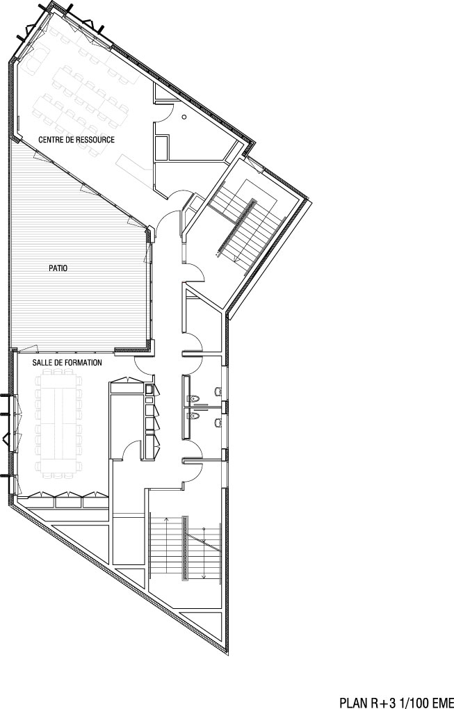
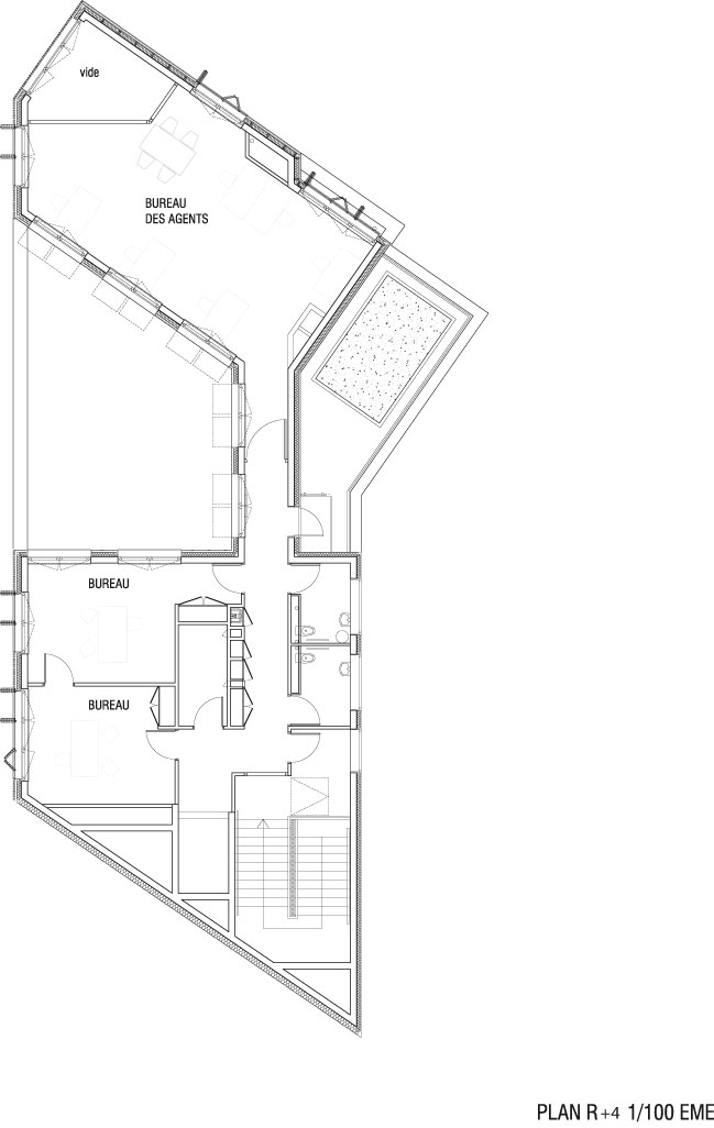
Kräftigere Akzente setzten die Architekten mit drei farblich abgesetzten Einschnitten: Im Erdgeschoss wechseln sich limonengrüne HPL-Platten mit geschosshohen Verglasungen ab. Dahinter sind die Eingangshalle, WCs und eine Bar untergebracht. Das (holzverkleidete) erste Obergeschoss ist zugleich das höchste des gesamten Gebäudes; hier befindet sich der große Theater- und Veranstaltungssaal. Im zweiten Obergeschoss verläuft ein Laubengang über die gesamte Gebäudefront. Hinter der feuerwehrrot verkleideten Fassade liegen die Gruppenräume. Im dritten und vierten Obergeschoss öffnen sich weitere Schulungs- und Gruppenräume sowie die Büros zu einem Patio. Das Konzept der Architekten sah eigentlich vor, diesen durch eine Verglasung zu schließen und als eine Art Wintergarten zu gestalten. Aus Kostengründen wurde dies jedoch bisher nicht realisiert.
Der Neubau ist mit dem französischen Label „Haute Qualité Environnementale“ (HQE) zertifiziert, wobei Bauherr und Planer vor allem auf Energieeffizienz sowie akustischen Komfort und Raumluftqualität Wert legten. Relativ konventionell fiel dagegen die Wahl der Baumaterialien aus. Hinter der Holzhülle verbirgt sich eine traditionelle Betonfertigteilkonstruktion, die vor allem an den Sichtbeton-Innenseiten der Außenwände sichtbar wird.
Als Kontrast hierzu setzten die Architekten Farbakzente im Mobiliar und den Bodenbelägen, die größtenteils mit den jeweiligen Fassadenfarben korrespondieren: Die Bar im Erdgeschoss ist limonengrün gehalten. Der Veranstaltungssaal im ersten Obergeschoss erhielt samt dem benachbarten Flur einen roten Bodenbelag. Im dritten Stock sind die Stahlblech-Fensterläden und die Bodenbelage wiederum gelbgrün. In neutralen Grau- und Weißtönen präsentieren sich hingegen die Büros im obersten Geschoss. Neben den Nutzern selbst bringen hier nur die Holzwolle-Leichtbauplatten an der Decke und die Reflektionen der farbigen Faltläden Farbe in die Räume.

























