Dynamischer Zwilling
Von M planen modulierbares Doppelhaus in Stuttgart
© Zooey Braun
Mit Beginn der Pandemie haben sich unsere Lebensabläufe schlagartig verändert. Der Bedarf an flexiblen Grundrissen steigt. Die baulichen Standards unserer Lebensräume müssen deshalb erweitert werden. Mit dem Doppelhaus im Süden von Stuttgart schafft Von M einen Vorreiter für nachhaltige Wohnformen.


© Zooey Braun
Äußeres Erscheinungsbild
Die Hanglage des Grundstückes ist ausschlaggebend für die Bauweise in Beton. Die Fügungen der Betonfertigteile sowie die Aussparungen für Loggien und Terrassen prägen das äußere Erscheinungsbild des Hauses. Das Doppelhaus nimmt die Gebäudetiefe der Nachbarbebauung auf und steht von der Straße zurückgesetzt. Eingangsloggien sorgen für zusätzliche Privatsphäre der Bewohner. Der einzige optische Unterschied beider Haushälften ist das große runde Badfenster im westlichen Zwilling, das in Richtung der privaten Hinterhöfe zeigt.
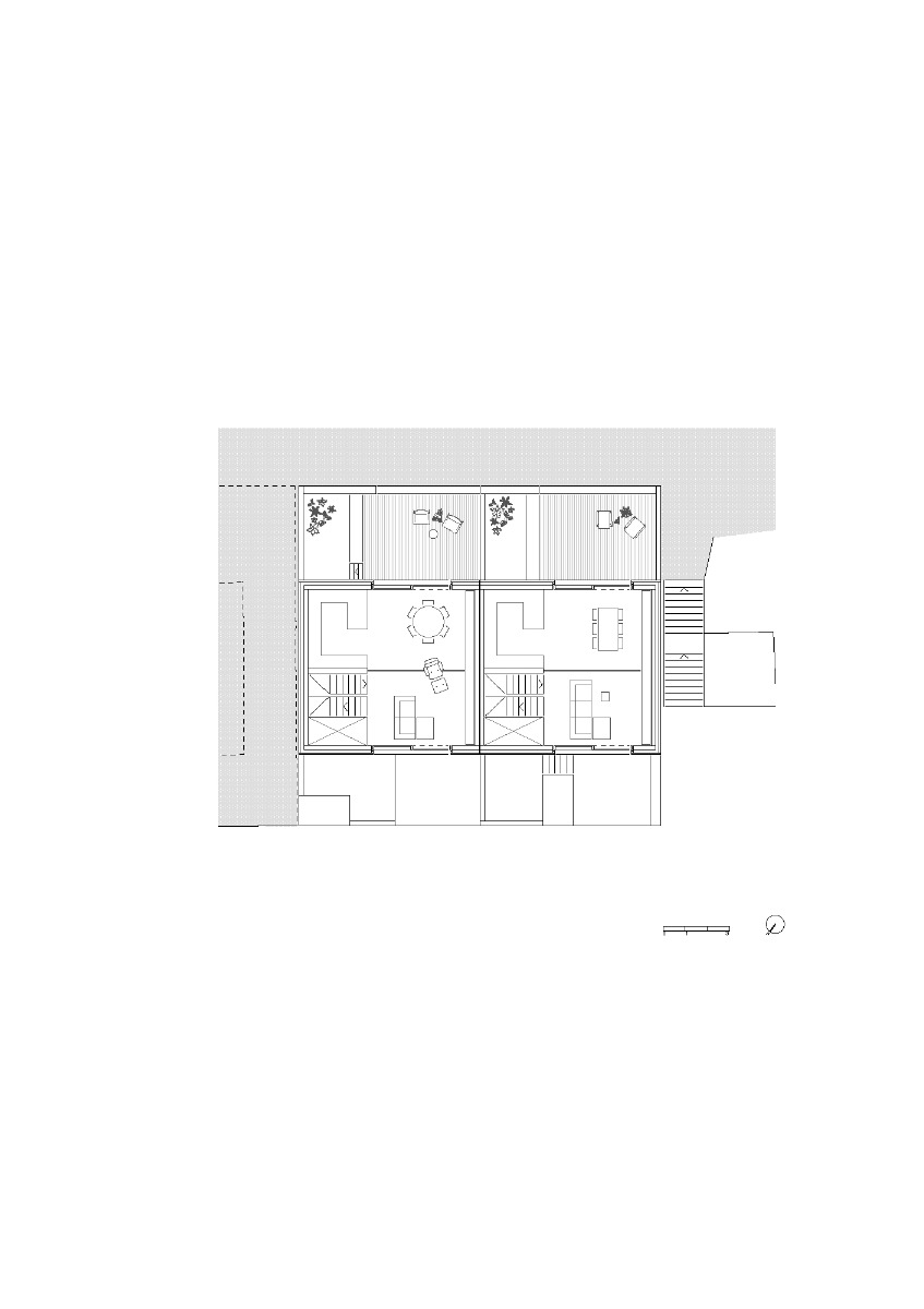
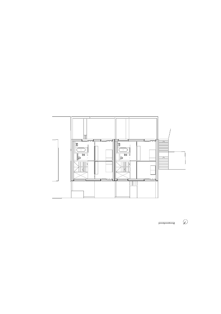
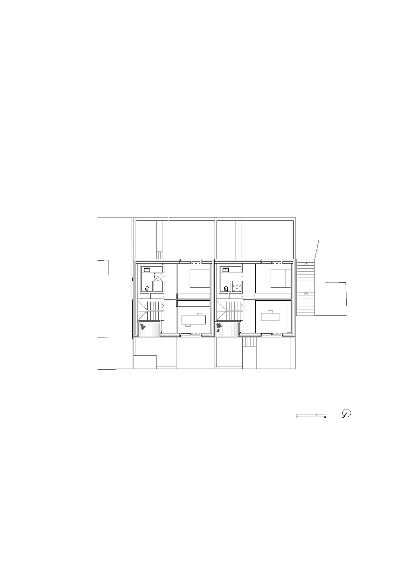
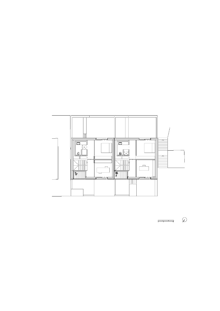
Wandelbare Grundrisse
Die äußere Gestalt wird im Inneren fortgeschrieben – Sichtbeton und Metallbrüstungen prägen auch hier den Charakter der Wohnhäuser. Die nahezu quadratische Form lässt die Einteilung der Geschosse in vier gleichgroße Teile zu. In den Boden eingelassene Holzleisten zeigen das kreuzförmige Grundrissschema an und bewirken eine subtile Zonierung der Räume. Das Treppenhaus sowie Nasszellen und Küche belegen jeweils einen Quadranten, die restliche Fläche lässt sich in vielseitige Raumvariationen gliedern. Mit leichten Vorhängen können einzelne Raumteile optisch begrenzt werden, Holztrennwände oder Schränke definieren klassische Räume. Auch die Erschließung im Inneren der Häuser ist wandelbar: Im Bereich der Treppe befindet sich ein fast haushoher Luftraum – hier kann bei Bedarf ein Fahrstuhl ergänzt werden.


Blick in den Wohnraum im Erdgeschoss. © Zooey Braun
Das Erdgeschoss dient dem Ankommen. Im ersten Geschoss bilden Küche, Essplatz und Wohnbereich einen durchlässigen Wohnraum. Bei Bedarf lässt sich die hangseitige Küche durch eine Holzwand abtrennen. Die freie Hälfte des zweiten Stockwerkes kann als vollständige Fläche genutzt oder beliebig zoniert werden. Im Dachgeschoss befindet sich straßenseitig ein offenes Studio mit Zugang zur Dachterrasse – hangseitig ein weiteres Zimmer. Der offene Grundriss erlaubt Ausblicke zu beiden Seiten und verbindet so Innen- und Außenraum.


© Zooey Braun


© Zooey Braun
Zurzeit werden beide Wohnhälften von je einer Familie bewohnt. Dem Bedarf und wandelnden Lebensumständen entsprechend können die Bewohnerinnen und Bewohner Veränderungen in den eigenen vier Wänden vornehmen. Flexible Grundrissvariationen ermöglichen zukünftig auch andere Formen von Lebens- und Wohngemeinschaften.
Architektur, Bauleitung: Von M
Bauherr: Privat
Standort: 70199 Stuttgart (DE)
Tragwerksplanung: IfB Seiler
Bauphysik: Kurz + Fischer
Bauunternehmen: Härle Bau
Bruttogrundfläche: 476 m²





























