Von Pflanzen umwoben: Pavillon von Sheppard Robson
Foto: Felix Mooneeram
Die Bebauung von Spinningfields, einem Stadtteil im Herzen Manchesters, wurde 1997 durch eine Investmentgesellschaft angestoßen und im Laufe der letzten zwanzig Jahre fertiggestellt. Inmitten des neu erschlossenen Gebiets, das hauptsächlich mit Bürogebäuden bebaut ist, befindet sich der Hardman Square. Bisher bespielten vor allem temporäre Pop-up Bars und Filmvorführungen unter freiem Himmel die offene Wiese. Um eine beständigere Lösung für den Ort zu finden, beauftragte der Investor das britische Büro Sheppard Robson mit dem Bau eines Pavillons.
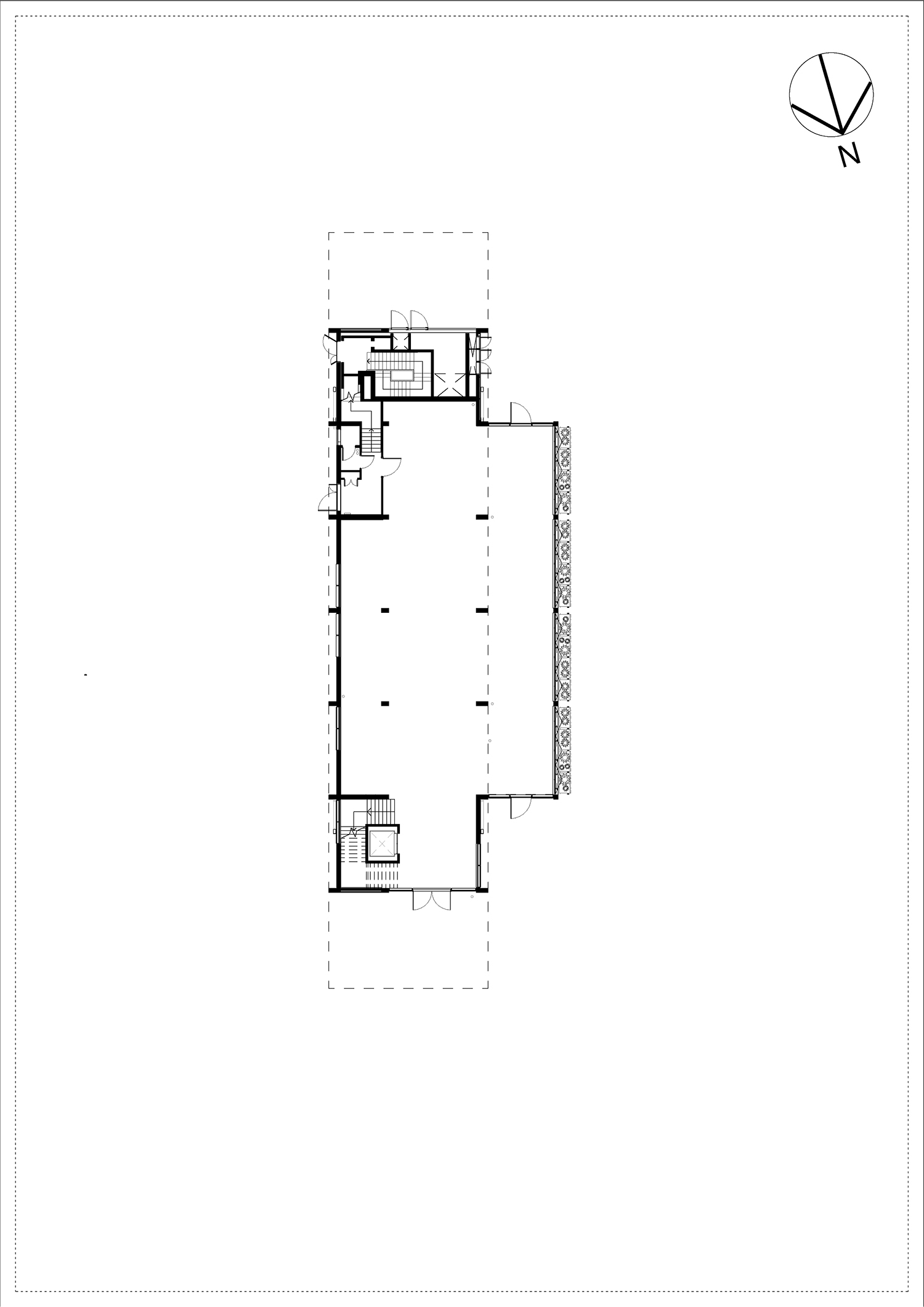
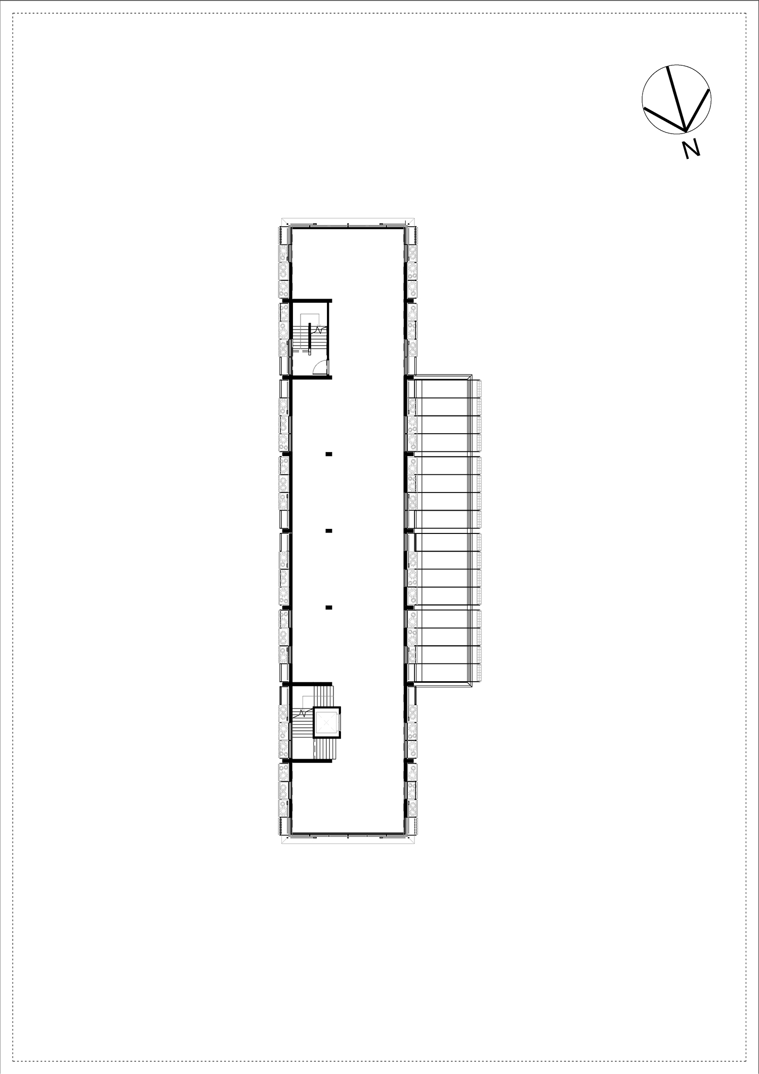
Vier Etagen umfasst der Riegel, den die Architekten als Gegenpol zu den Bürogebäuden entwarfen. Die sichtbare Tragstruktur, ein Gerüst aus Holz, ist der modularen Gestaltung der Bürogebäude entlehnt, bildet aber einen warmen Kontrast zu den Fassaden aus Glas und Aluminium. Mit Blick auf einen früheren Bau für den gleichen Auftraggeber kragt auch der Pavillon am Hardman Square an beiden Seiten über das Erdgeschoss aus. Diagonale Träger zeugen von den abzufangenden Lasten und brechen mit der orthogonalen Grammatik der umliegenden Architektur.
Ein Gastronomiebetrieb nutzt die rund 1300 m² inklusive einer Dachterrasse. Mit seinen Außenanlagen wird der Platz aber auch zum öffentlichen Treffpunkt und Erholungsort für das Viertel. Eine kohärente Gestaltung verbindet den Garten mit dem Pavillon. Mit Hilfe eines bewachsenen Rankgerüsts legt sich ein Schleier aus Pflanzen über das Gebäude. Blumenkästen, die daran befestigt sind, wurden mit floralen Motiven verziert. Die Krönung dieser Bepflanzung findet sich dann auf der Dachterrasse, wo Spalierpflanzen, Bäume und Pergolen einen geschützten Außenraum für Gäste des Restaurants bilden. „Die grüne Hülle der Struktur betont sowohl die physische als auch die visuelle Verbindung zwischen der Landschaft und dem Gebäude. Die grünen Fassaden, zu denen auch das Dach gehört, einen die Blickachsen von unten und von höher gelegenen Positionen.“, sagt Neal Allen-Burt, Partner bei Sheppard Robson.
Weitere Informationen:
Bruttoinnenfläche: 1208 m²
Baukosten: 5,8 Mio €
Statiker: Engenuiti
Haustechnik: DSA Engineering
Kostenberatung: Gardiner & Theobald
Landschaftsplaner: Layer
Akustikplaner: Sandy Brown
Projektmanager: Gardiner & Theobald
Bauunternehmer: BAM






















