Von Weimar bis nach Hangzhou: China Design Museum of Bauhaus Collection von Álvaro Siza und Carlos Castanheira
Foto: FG+SG ñ Fotografia de Arquitectura
Die Chinese Academy of Art (CAA) in Hangzhou mit ihren zwei Standorten, einer im Stadtzentrum in der Nähe des West Lake und ein neuer, größerer Campus am Stadtrand, besitzt eine umfangreiche Kunstsammlung – darunter auch eine große Anzahl akquirierter Bauhaus-Originale. Ausstellungsflächen waren erfahrungsgemäß jedoch eine Rarität oder einfach nicht vorhanden. Daher der Auftrag an Álvaro Siza und Carlos Castanheira: ein Museumsbau für den neuen Campus der CAA!
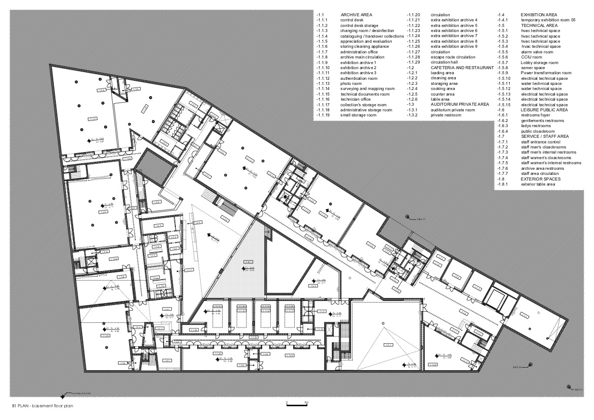
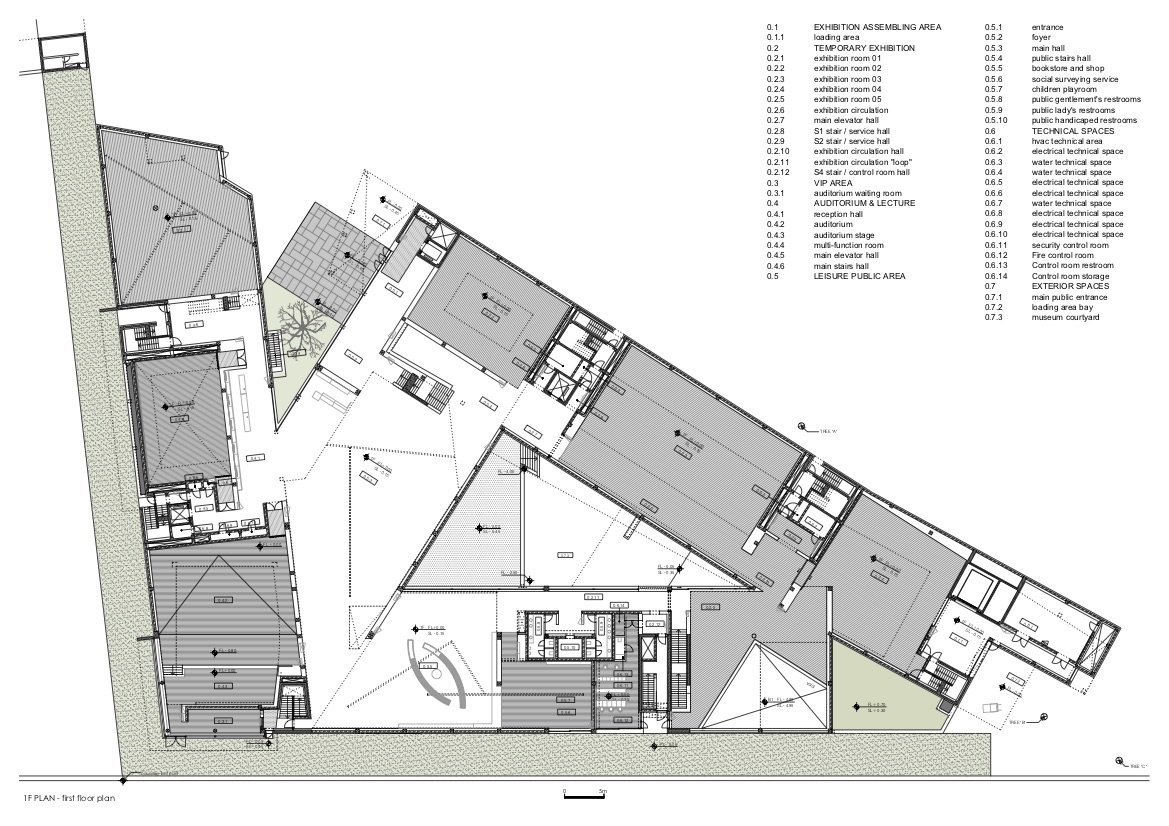
Auf einem dreieckigen Grundstück am südöstlichen Rand, Schnittpunkt zweier Hauptverkehrsstraßen, liegt das ebenfalls dreieckige »China Design Museum of Bauhaus Collection«. Im Erdgeschoss des nach Osten zeigende Gebäude befinden sich Ausstellungshallen und Auditorien. Auf einer Zwischenebene erstreckt sich eine Rampenverbindung zum Dachgarten.
Das Dachgeschoss ist, neben einzelnen Verwaltungsbereichen und Werkstätten für junge Kunstschaffende, für die Dauerausstellung der Bauhaus Exponate vorgesehen. Roter Agra Sandstein aus Indien bestimmt die Fassadengestaltung. Ein freistehendes Volumen aus weißem Beton, senkrecht zur Südseite eingesetzt, fungiert als Museumseingang.
Weitere Informationen:
Architects: Álvaro Siza with Carlos Castanheira
Portugal Office: CC&CB, Arquitectos
Principal in Charge: Pedro Carvalho
Collaborators: Adalberto Dias, Carolina Leite, Catarina Rodrigues, Diana Vasconcelos, Elisabete Queirós, Francesca Tiri, Germano Vieira, Joana Soeiro, João Figueiredo, Jorge Santos, Nuno Campos, Pedro Afonso, Rita Ferreira, Sara Pinto, Susana Oliveira
Local Office: The Design Institute of Landscape & Architecture, China Academy of Art
Architecture: Liu Ke, Zhao Yaunpeng, Jiang Weihua
Struture: Shentu Taunbing, Chen Yongbing
Engineering: Zhu Weiping, Yu Xiaofen ( Hydraulical), Jin Guogang, Wang Yonghong ( Electrical), Chen Chunji, Teng Liang ( HVAC)
Intelligent Desing: Sun Mingliang, Sin Minjun ( intelligent Design), Hangzhou Zhida Archit. Science & Technology Co.,Ltd , Zhang Shanming, He Haixia ( ACosutics)
Consultants: GET – Raul Bessa ( HVAC), HDP – Paulo Fidalgo ( Structure)
3D models: Germano Vieira, Pedro Afonso
Total Building Area: 16.000 m2
Site Area: 8.000m2










































