// Check if the article Layout ?>
Vorher Nachher: InteriorPark verhilft Ruine zur modernen Wohneinheit
Foto: Andreas Körner
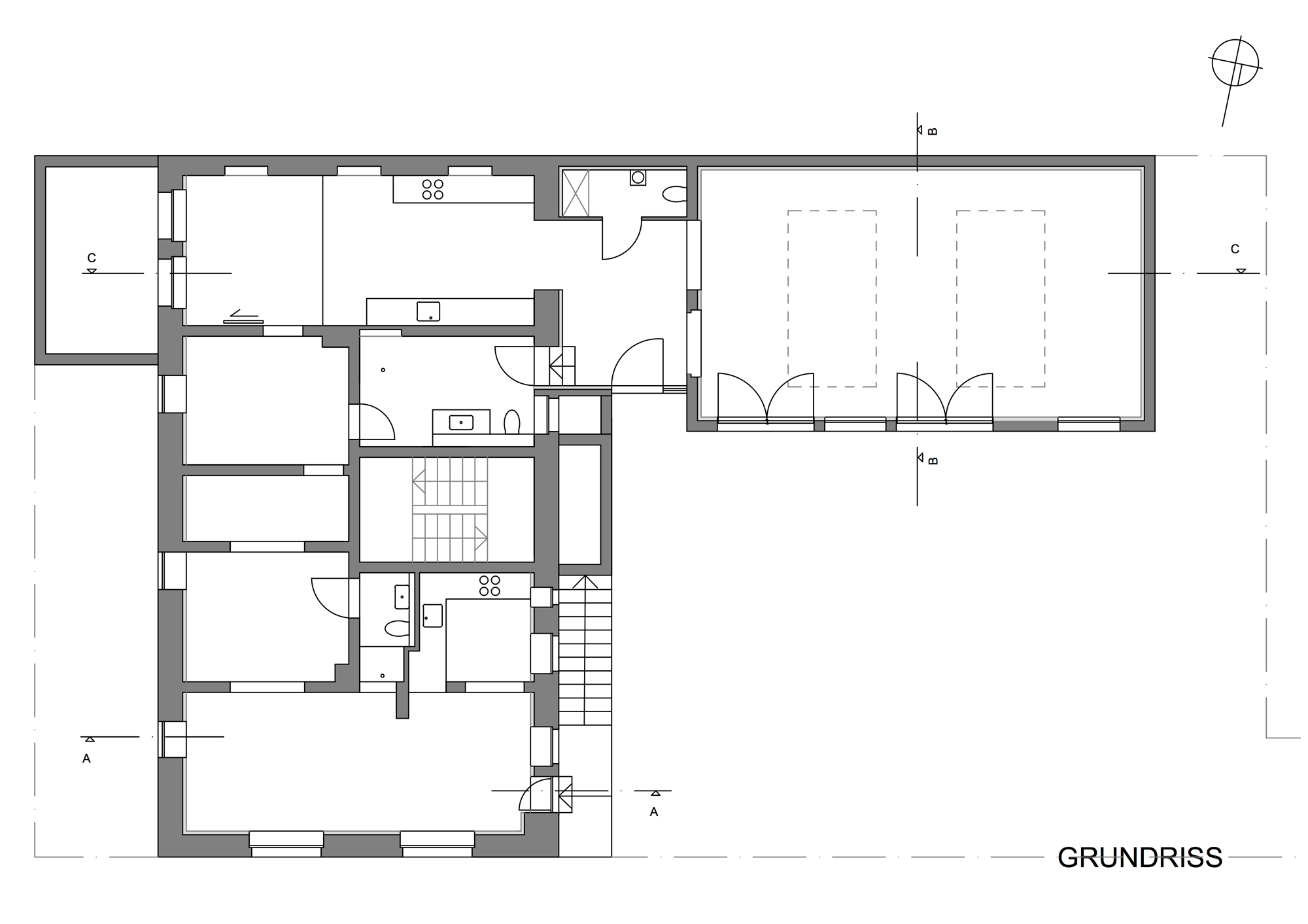
Für die neue Nutzung als Wohneinheit vermittelt ein von InteriorPark entworfener Eingangsbereich zwischen der alten Schlosserei und einem im Osten liegenden Mehrfamilienhaus.
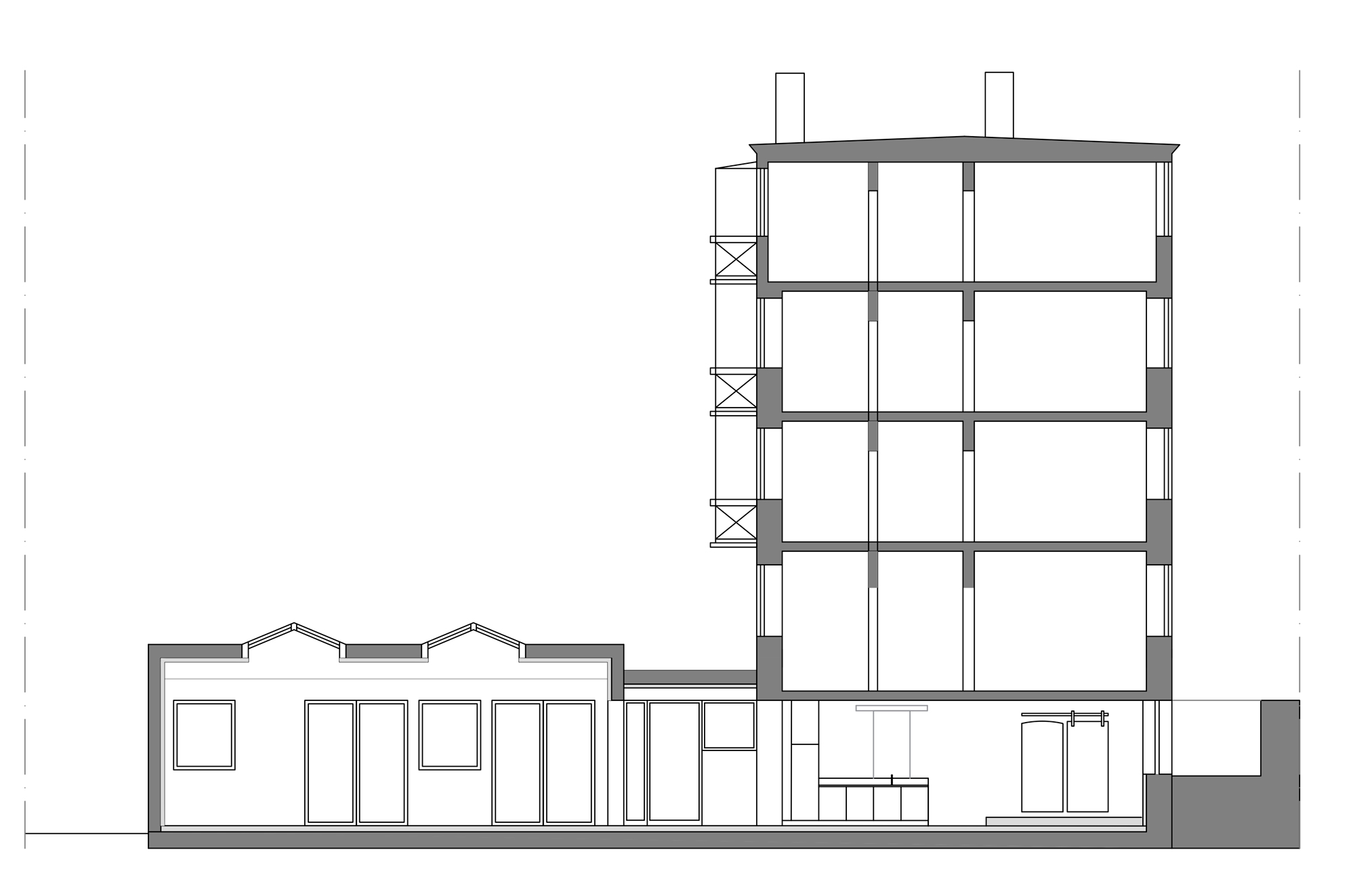
In das neue Dach der Schlossereiwerkstatt baut das Architekturbüro großzügige Oberlichter aus massivem Eichenholz ein. Zusammen mit dem Verzicht auf Verzierungen und dem Einsatz von natürlichem Lehmputz gelingt es InteriorPark dem Raum neue Aufenthaltsqualitäten zu verleihen und den heutigen Nutzungsansprüchen gerecht zu werden.
Die ehemalige Erschließung an der östlichen Schmalseite der Schlosserei bleibt in Form von schlichten Wanddurchbrüchen bestehen und stellt gemeinsam mit dem neuen Eingang eine Verbindung zum anschließenden Hinterhaus her.
Die historische Bausubstanz des Wohnhauses kann durch das Entfernen des Putzes wieder in Erscheinung treten. Die Architekten verhindern weitere Eingriffe in die rohen Backsteinwände, wodurch sie diese aus der Vergangenheit in die Gegenwart zurückholen und der Sequenz aneinandergereihter Zimmer neues Leben einhauchen.
Analog zum Schlossereitrakt halten die Stuttgarter Architekten auch im Hinterhaus an Wandöffnungen fest. Ausgesparte Wandsegmente integrieren sie geschickt als Möbelstücke in den täglichen Gebrauch. Originaltüren werden restauriert, mit einem neuen Anstrich versehen und wieder eingebaut. Neue Fensterrahmen aus massiver Eiche ersetzen die alten, verfallenen und nehmen sich gemeinsam mit dem schlichten Bodenbelag aus Linoleum zurück.
Der Gebrauch von natürlichen Materialien und die behutsame Restaurierung historischer Bauteile generieren ein nachhaltiges Gebäude mit angenehmem Raumklima. Die Verbundenheit der Architekten mit dem Ort kommt auch durch die Unterstützung regionaler Betriebe zum Ausdruck. Durch subtile Änderungen und ohne bestehende Bauteile zu verfremden, gelingt den Architekten von InteriorPark die Transformation der alten Schlosserei in eine moderne Wohneinheit, die noch von ihrer Vergangenheit erzählt.
In das neue Dach der Schlossereiwerkstatt baut das Architekturbüro großzügige Oberlichter aus massivem Eichenholz ein. Zusammen mit dem Verzicht auf Verzierungen und dem Einsatz von natürlichem Lehmputz gelingt es InteriorPark dem Raum neue Aufenthaltsqualitäten zu verleihen und den heutigen Nutzungsansprüchen gerecht zu werden.
Die ehemalige Erschließung an der östlichen Schmalseite der Schlosserei bleibt in Form von schlichten Wanddurchbrüchen bestehen und stellt gemeinsam mit dem neuen Eingang eine Verbindung zum anschließenden Hinterhaus her.
Die historische Bausubstanz des Wohnhauses kann durch das Entfernen des Putzes wieder in Erscheinung treten. Die Architekten verhindern weitere Eingriffe in die rohen Backsteinwände, wodurch sie diese aus der Vergangenheit in die Gegenwart zurückholen und der Sequenz aneinandergereihter Zimmer neues Leben einhauchen.
Analog zum Schlossereitrakt halten die Stuttgarter Architekten auch im Hinterhaus an Wandöffnungen fest. Ausgesparte Wandsegmente integrieren sie geschickt als Möbelstücke in den täglichen Gebrauch. Originaltüren werden restauriert, mit einem neuen Anstrich versehen und wieder eingebaut. Neue Fensterrahmen aus massiver Eiche ersetzen die alten, verfallenen und nehmen sich gemeinsam mit dem schlichten Bodenbelag aus Linoleum zurück.
Der Gebrauch von natürlichen Materialien und die behutsame Restaurierung historischer Bauteile generieren ein nachhaltiges Gebäude mit angenehmem Raumklima. Die Verbundenheit der Architekten mit dem Ort kommt auch durch die Unterstützung regionaler Betriebe zum Ausdruck. Durch subtile Änderungen und ohne bestehende Bauteile zu verfremden, gelingt den Architekten von InteriorPark die Transformation der alten Schlosserei in eine moderne Wohneinheit, die noch von ihrer Vergangenheit erzählt.
Transformation des Schlosserhofs zur modernen Wohneinheit, Video: InteriorPark
Weitere Informationen:
Projektleitung: Tina Kammer
Grundfläche: 200m2
Bauzeit: 2015 - 2017
Grundfläche: 200m2
Bauzeit: 2015 - 2017

















