// Check if the article Layout ?>
Waffeldach: Anbau an ein Londoner Wohnhaus
Die immer weiter steigenden Immobilienpreise in London mögen für viele Bewohner ein Albtraum sein, für die Architektur stellen sie allerdings gleichermaßen eine Chance dar. In Großbritanniens Hauptstadt hat sich eine lebendige Anbaukultur entwickelt. Sie fordert Architekten, innovative und platzsparende Lösungen für die Erweiterung des Wohnraums zu entwerfen.
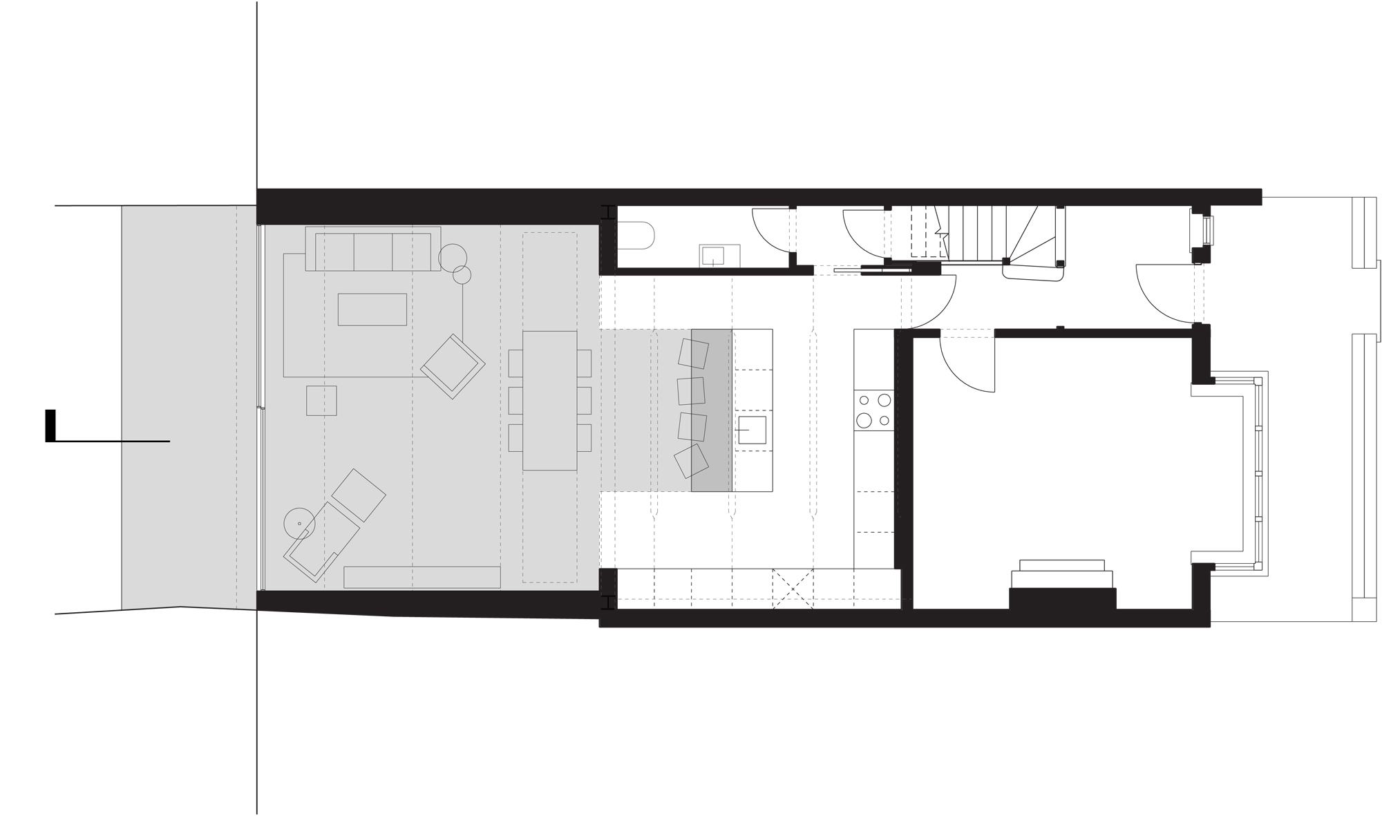
Bureau de Change sind inzwischen geübt in solchen Anbauten an Wohnhäuser. Bei ihren Entwürfen steht meist der Kontrast zum Bestand im Vordergrund. Der Bestand ist in diesem Fall ein typisches Londoner Reihenhaus mit brauner Ziegelfassade. Im Erdgeschoss wird der Wohnraum in den Garten hinaus erweitert.
Vom Garten aus erscheint der Anbau aus einer dicken Betonscheibe zu bestehen, die das Dach bildet und auf zwei etwas schmaleren Betonwänden ruht. Tritt man vom Rasen allerdings durch die vollverglaste Fassade ins Wohnzimmer, so offenbart sich die eigentliche Formgebung der Decke. Rhythmische Einbuchtungen, die von den Architekten treffend als Waffelmuster bezeichnet werden, gliedern die Deckenscheibe und damit auch den Wohnraum. Von oben betrachtet ist der Dachgarten sichtbar, der in den so entstandenen Pflanzentrögen Platz findet. „Wir wollten ein Volumen schaffen, dass sowohl nach außen, als auch nach innen hin eine Aussage trifft“, sagt Billy Mavropoulos, Mitbegründer von Bureau de Change.
Im Wohnbereich spiegelt der Boden die Materialität der Decke wieder. Bis zur Schwelle der Küche erstreckt sich der Sichtbeton, dahinter wurden Wände, Decke und Boden in tiefes Blau getaucht, das die kühle Farbgebung des Betons passend ergänzt. Mittig frisst sich der Beton allerdings noch in den Bereich der Küche hinein, kriecht an der Kücheninsel empor, wo er oben angekommen zurückklappt und dadurch einen auskragenden Tresen formt.
Die Küche findet ihren Platz noch im Grundriss des Bestandsgebäudes, über ihr liegen weitere Räume des Hauses. Um sie trotzdem mit natürlichem Licht zu versorgen, wurde in die Ausbuchtung in der Deckenplatte unmittelbar vor der Küche ein Oberlicht eingesetzt. Zusätzlich sind in drei spitz zulaufenden Schlitzen Lichter in die Decke eingelassen. Diese Form wird bewusst an den eingebauten Schränken und Türen wiederholt, wo sie die Griffe formen. So entsteht mit dem Anbau nicht nur eine Erweiterung, sondern auch eine gestalterische Bereicherung des Wohnhauses.










