// Check if the article Layout ?>
Wandelbare Fassade: Sporthalle von h4a architekten
Foto: Zooey Braun
Neben dem Ziel einer räumlichen Nahverdichtung soll durch den Bau der Sporthalle auch der Charakter der unmittelbaren Nachbarschaft mit seinen gründerzeitlichen Bauten und der boulevardartigen Bepflanzung gestärkt werden. Die Sporthalle wird nicht nur von dem angrenzenden Kepler- und Humboldt Gymnasium genutzt, sondern auch von innerstädtischen Vereinen. Die prominente Setzung des Bauwerks an der Hauptstraße unterstreicht dabei seine Funktion als öffentlich nutzbares Gebäude.
Der markante Baukörper wird vollständig von silberfarbenen, verdrehten Aluminiumlamellen verhüllt, die dem Bauwerk ein homogenes, aber auch repräsentatives Äußeres verleihen. Die dynamisch geformten Lamellen erzeugen ein bewegtes Fassadenbild. Je nach interner Nutzung ist die vorhangartige Hülle offen und leicht oder eher geschlossen ausgeführt. Die unterschiedliche Durchlässigkeit der Fassade erlaubt vorbeilaufenden Passanten diskrete Einblicke auf das sportliche Geschehen im Inneren.
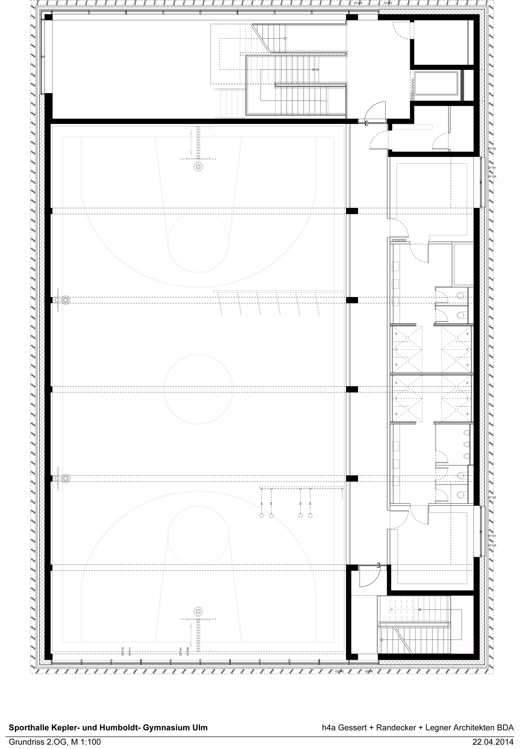
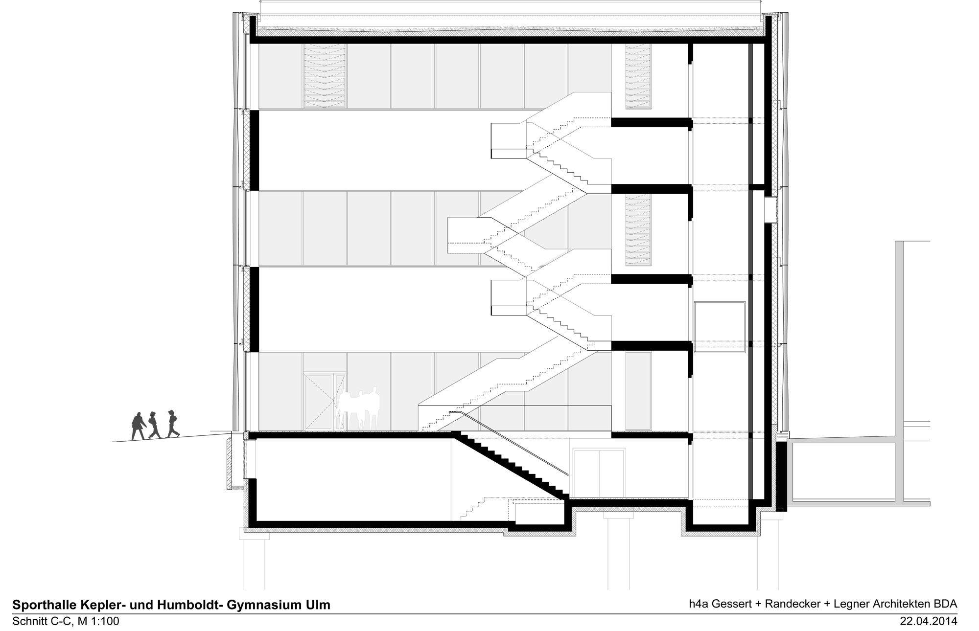
Analog zu dem äußeren Gesamteindruck beeindruckt auch das Innere mit großzügigen Räumlichkeiten und hochwertiger Ausstattung. Nach Betreten der Sporthalle wird der Besucher von einem dreigeschossigen Luftraum begrüßt, in dem sich eine skulpturale Treppe bis in das oberste Geschoss hinaufwindet. Sie erschließt alle drei Sporthallen, die geschossweise übereinandergestapelt sind. Die Umkleideräume sind jeweils auf den Zwischengeschossen untergebracht und gewähren über Galerien vielfältige Blickbezüge zur jeweiligen Halle.
Das Innere des Gebäudes wird von grauen Sichtbetonoberflächen und hölzernen Details bestimmt. Die Fußböden der drei Sporthallen werden durch verschiedenfarbige Bodenbeläge in rot, blau und grün unterschiedlich gekennzeichnet. Geschosshohe Fensterbänder sorgen für lichtdurchflutete Hallen, wobei die lammellenartige Fassade zusätzlich ein bewegtes Licht- und Schattenspiel auf dem Hallenboden erzeugt. Entstanden ist ein Gebäude, welches sowohl mit seinen innenräumlichen Qualitäten als auch mit seiner städtebaulichen Präsenz hervorsticht. Hier wird die Typologie »Sporthalle« nicht als sekundäres Nebengebäude deklariert, sondern fungiert als präsentes, öffentliches Gebäude, welches sich in den nächsten Jahren zum bewegten Treffpunkt für alle Sportbegeisterte herausbilden könnte.
Der markante Baukörper wird vollständig von silberfarbenen, verdrehten Aluminiumlamellen verhüllt, die dem Bauwerk ein homogenes, aber auch repräsentatives Äußeres verleihen. Die dynamisch geformten Lamellen erzeugen ein bewegtes Fassadenbild. Je nach interner Nutzung ist die vorhangartige Hülle offen und leicht oder eher geschlossen ausgeführt. Die unterschiedliche Durchlässigkeit der Fassade erlaubt vorbeilaufenden Passanten diskrete Einblicke auf das sportliche Geschehen im Inneren.
Analog zu dem äußeren Gesamteindruck beeindruckt auch das Innere mit großzügigen Räumlichkeiten und hochwertiger Ausstattung. Nach Betreten der Sporthalle wird der Besucher von einem dreigeschossigen Luftraum begrüßt, in dem sich eine skulpturale Treppe bis in das oberste Geschoss hinaufwindet. Sie erschließt alle drei Sporthallen, die geschossweise übereinandergestapelt sind. Die Umkleideräume sind jeweils auf den Zwischengeschossen untergebracht und gewähren über Galerien vielfältige Blickbezüge zur jeweiligen Halle.
Das Innere des Gebäudes wird von grauen Sichtbetonoberflächen und hölzernen Details bestimmt. Die Fußböden der drei Sporthallen werden durch verschiedenfarbige Bodenbeläge in rot, blau und grün unterschiedlich gekennzeichnet. Geschosshohe Fensterbänder sorgen für lichtdurchflutete Hallen, wobei die lammellenartige Fassade zusätzlich ein bewegtes Licht- und Schattenspiel auf dem Hallenboden erzeugt. Entstanden ist ein Gebäude, welches sowohl mit seinen innenräumlichen Qualitäten als auch mit seiner städtebaulichen Präsenz hervorsticht. Hier wird die Typologie »Sporthalle« nicht als sekundäres Nebengebäude deklariert, sondern fungiert als präsentes, öffentliches Gebäude, welches sich in den nächsten Jahren zum bewegten Treffpunkt für alle Sportbegeisterte herausbilden könnte.
weitere Informationen:
Bruttogrundfläche: 2.695 m2
Wettbewerb: 1. Preis 2011
Planungsbeginn: 2012
Fertigstellung: 2015
Bruttogrundfläche: 2.695 m2
Wettbewerb: 1. Preis 2011
Planungsbeginn: 2012
Fertigstellung: 2015


























