Wandelbare Wände: Lowtech-Haus am See
Foto: Peter Clarke
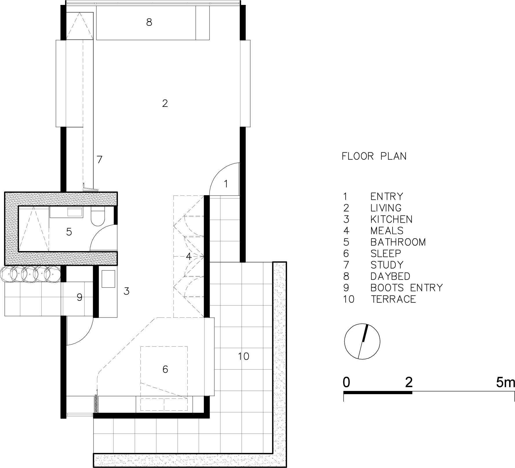
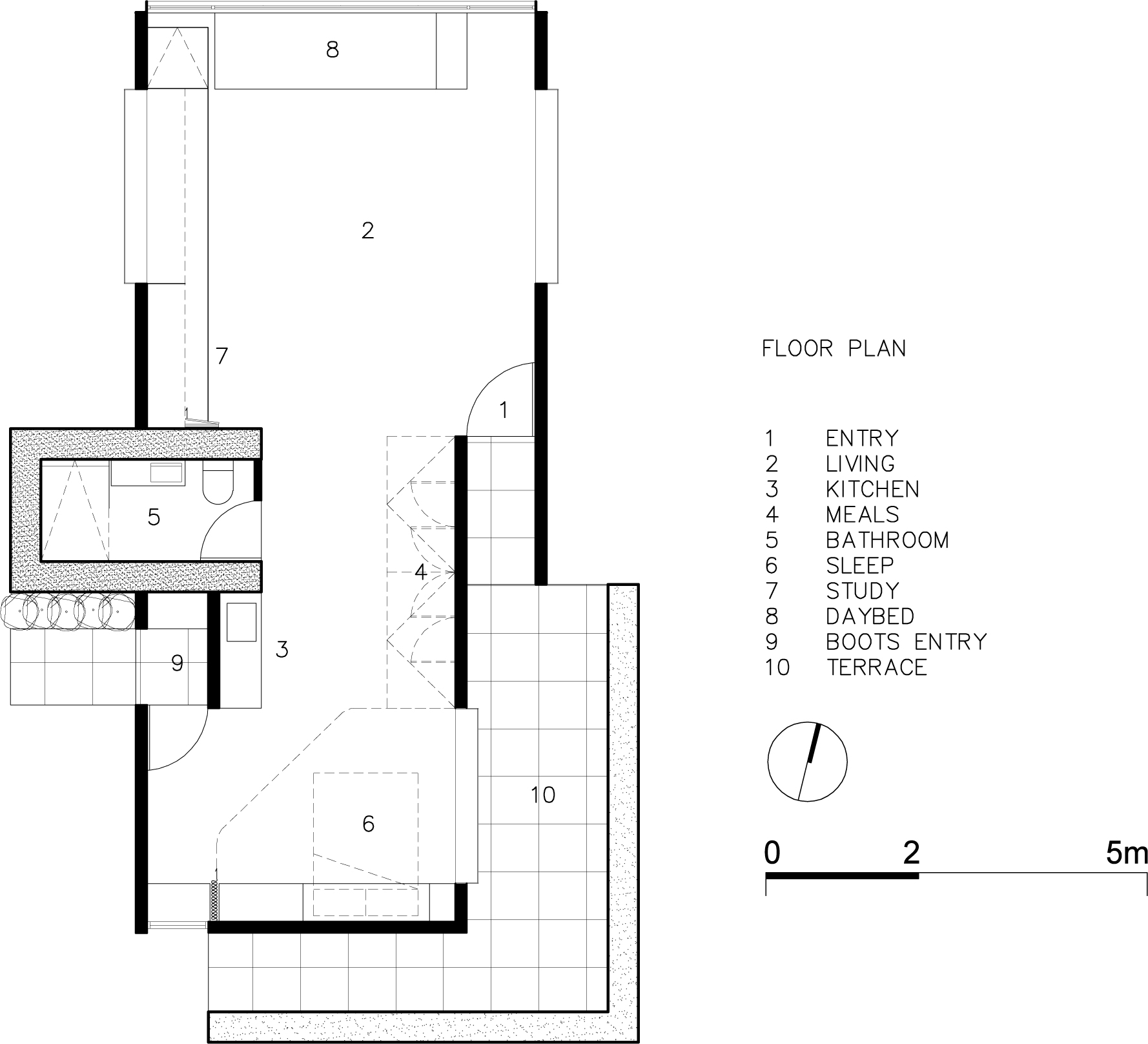
Das Stadtgebiet von Balnarring, unweit von Melbourne, ist mit Seen durchzogen. Hier liegt, umgeben von Bäumen, das Lowtech-Wochenendhaus von Branch Studio Architects. Der längliche Baukörper grenzt im Norden an den See. An der Ostfassade betritt man durch zwei verspringende Wandscheiben hindurch das Haus, welches lediglich aus einem Raum besteht. Doch dieser Raum ist so flexibel und anpassungsfähig, dass er in wenigen Momenten vom Yogastudio zum Ort für Festessen oder vom privaten Schlafraum in einen Arbeitsplatz umgewandelt werden kann.
Verantwortlich für diese Wandelbarkeit sind die vier Wände des Hauses, die alle nötigen Funktionen aufnehmen. Die östliche Wand, durch die wir eben das Haus betreten haben, verfügt über eine Reihe an Klappen aus Sperrholz, aus denen ein langer Tisch geformt werden kann. In den Holzrahmen hinter den Klappen ist außerdem ein flacher Stauraum integriert. Im Süden des Raumes lässt sich das Bett mitsamt Nachttisch ausklappen. Ein luftiger Vorhang, der an einer Deckenschiene geführt wird, trennt diesen Teil bei Bedarf optisch vom Rest des Hauses. An der westlichen Wand befindet sich ein Arbeitsplatz: Mithilfe faltbarer Wandteile lässt er sich verstecken, ohne ihn jedes Mal komplett aufräumen zu müssen. Dank der abgesenkten Bodenplatte zum See hin lässt sich ein Teil auch als Stehtisch nutzen. Im Westen schließt außerdem das Bad an. Es ist in einem zweiten Baukörper untergebracht, der in das Haus eingeschoben wurde. Über eine versteckte Tür neben der Küchenzeile ist es vom Wohnraum aus erreichbar.
Sowohl die Decke des Bades, als auch die Nordfassade ist komplett verglast. Die Wände des Bades sind aus Stampflehm gefertigt. Als Mauer der Terrasse ziehen sie sich über die Südfassade bis zum Eingang. Die restlichen Wände sind mit Eschenholz verkleidet und ruhen auf einem Betonpodest.
Da es auf dem Grundstück keinen Wasseranschluss gibt, wird das Regenwasser vom Dach aufgefangen und gesammelt. Genauso wie die Umwandlung des Innenraums, geschieht auch die Lüftung des Hauses mechanisch. Durch Öffnungen in der Nordfassade, knapp über dem Wasser, kann die vom See abgekühlte Luft in das Gebäude strömen. An der gegenüberliegenden Seite sind dafür oben in der Wand Öffnungen, durch welche die warme Luft wieder austreten kann.
























