Ein Haus voller Häuser
Wander Hotel bei Peking von Fon Studio
Erker und Loggien verleihen den Fassaden des Wander Hotels ein abwechslungsreiches Bild. © Qin Wei
Das Wander Hotel liegt rund 80 km nordöstlich von Peking im Hügelland unweit der Chinesischen Mauer. Angesichts der Lage bot es sich an, das ehemalige Bauerngehöft zum familienfreundlichen Beherbergungsbetrieb umzubauen. Mit der Planung beauftragte der Eigentümer das Architekturbüro Fon Studio aus der chinesischen Hauptstadt.


Der langgestreckte Bau des Hotels liegt zwischen einer Landstraße und einem Fluss. © Qin Wei
Großzügige Raumstruktur, bewegte Fassade
In einer dreijährigen Planungs- und Bauphase haben die Architekten das Bestandsgebäude radikal transformiert. Die Symmetrie des Baukörpers wurde bewusst aufgegeben, die kleinteilige Raumstruktur im Inneren geöffnet, um Platz für neun großzügige Gästezimmer samt Nebenräumen zu schaffen.
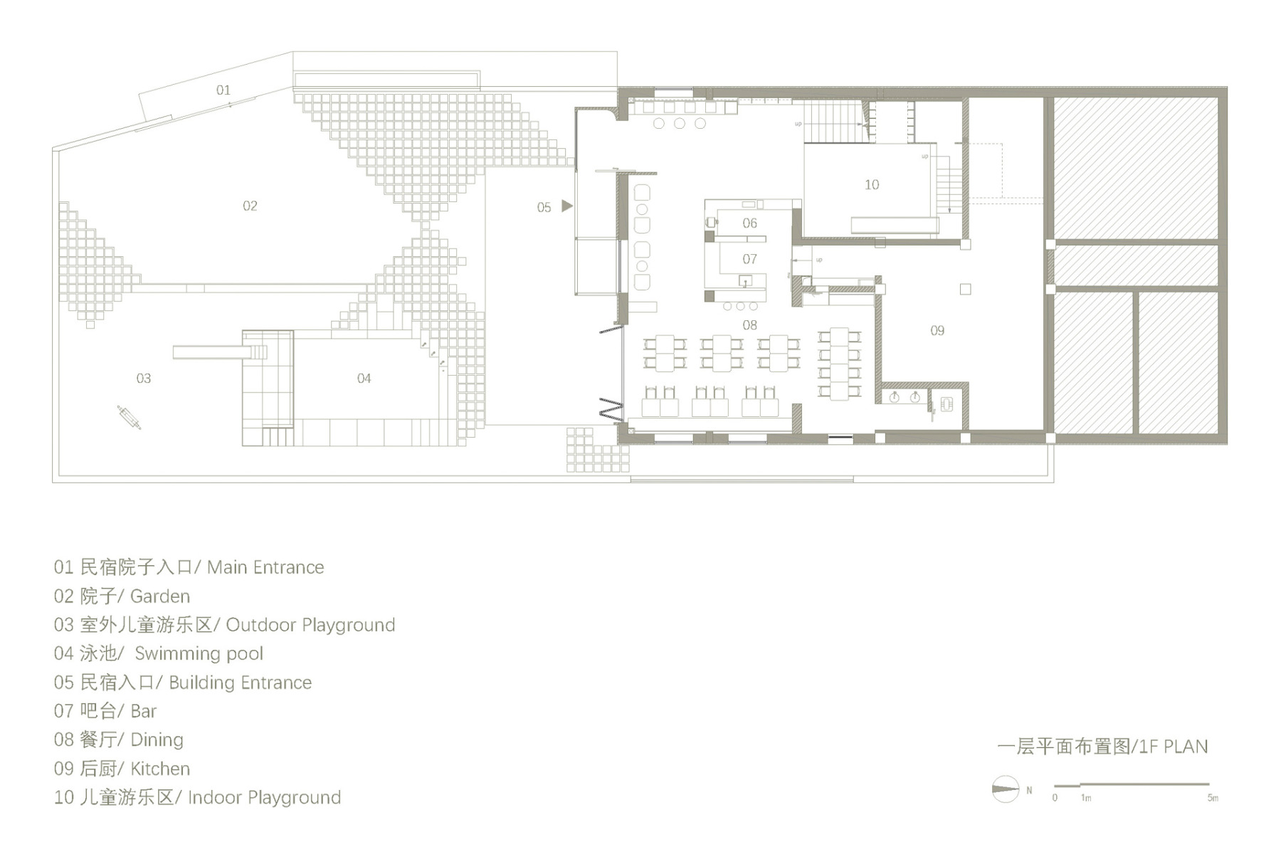
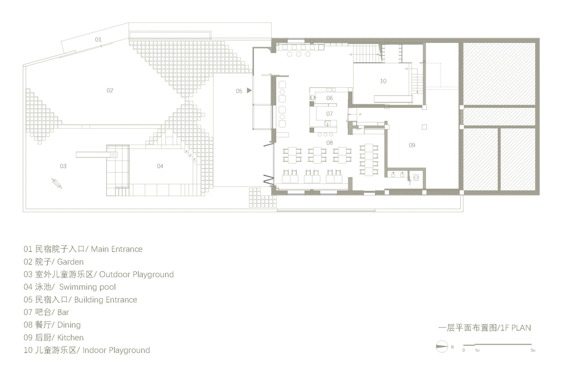
Geblieben sind die langgestreckte Gebäudeform und die Dreigeschossigkeit des Hauses, das im Westen an die Landstraße und im Osten an einen Fluss grenzt. Gäste gelangen von der Talseite im Süden ins Erdgeschoss mit Restaurant, Bar und Rezeption. Wegen der Hanglage erstreckt sich die untere Etage nicht über die gesamte Gebäudelänge.


Der Empfangs- und Barbereich ist niedrig und vergleichsweise dunkel. Birken-Multiplexplatten bringen ein wenig natürliche Atmosphäre herein. © Qin Wei
Treppenhalle als Indoor-Spielplatz
Auf den niedrigen, eher dunklen Eingangsbereich folgt unmittelbar das absolute Kontrastprogramm: eine lichterfüllte Treppen- und Spielhalle, die über alle drei Geschosse reicht und auf den oberen Ebenen von Galerien und Innenbalkonen flankiert wird. Die Hotelzimmer sind in den beiden Obergeschossen auf der Ost- und Südseite untergebracht. So partizipieren sie an der Aussicht auf den Fluss und bekommen direktes Sonnenlicht.


Die zentrale Halle erstreckt sich über alle drei Etagen. © Qin Wei


Direkt dahinter geht es ins Treppenhaus. © Qin Wei
Das Giebelhaus als wiederkehrendes Element
Die Fassade des Hotels ist ein anschauliches Abbild der Raumvielfalt im Inneren. Teils sind die Zimmerfenster erkerartig ausgestülpt, teils in Loggien eingerückt. An einer Stelle durchdringt sogar die Treppe mit ihrer Brüstung die Glashülle. An den Fassaden und auf den beiden Dachterrassen kehrt ein formales Element immer wieder: das Giebelhaus als Symbol ländlicher Wohnlichkeit. Dies, obwohl weder das Bestandsgebäude noch das jetzige Hotel diese Dachform hatten oder haben.
Architektur: Fon Studio
Bauherr: Wander Hotel
Standort: Shentangyu, Huairou District, Beijing (CN)





























