Weiße Glasur: Leietheater Deinze von Trans Architektuur und V+
Foto: Stijn Bollaert
Deinze liegt in der belgischen Provinz Ostflandern und bietet für seine knapp 44.000 Einwohner ein beachtenswertes kulturelles Angebot. In Nachbarschaft zum Museum van Deinze en de Leiestreek, kurz Mudel, hat nun das Leietheater seinen Platz gefunden.
Während der Wettbewerbsphase schlugen die Architekten einen anderen Standort vor, als eigentlich vorgesehen. Der Gedanke dahinter war, wichtige Sichtachsen zu nutzen und damit eine erhöhte städtebauliche Dominanz zu erreichen. Außerdem profitieren Mudel und Leietheater voneinander. Es entsteht ein neues kulturelles Zentrum mit einem gemeinsamen Park. Den Entwurf für die Landschaftsarchitektur steuerten Marie-Josée van Hee Architekten bei.
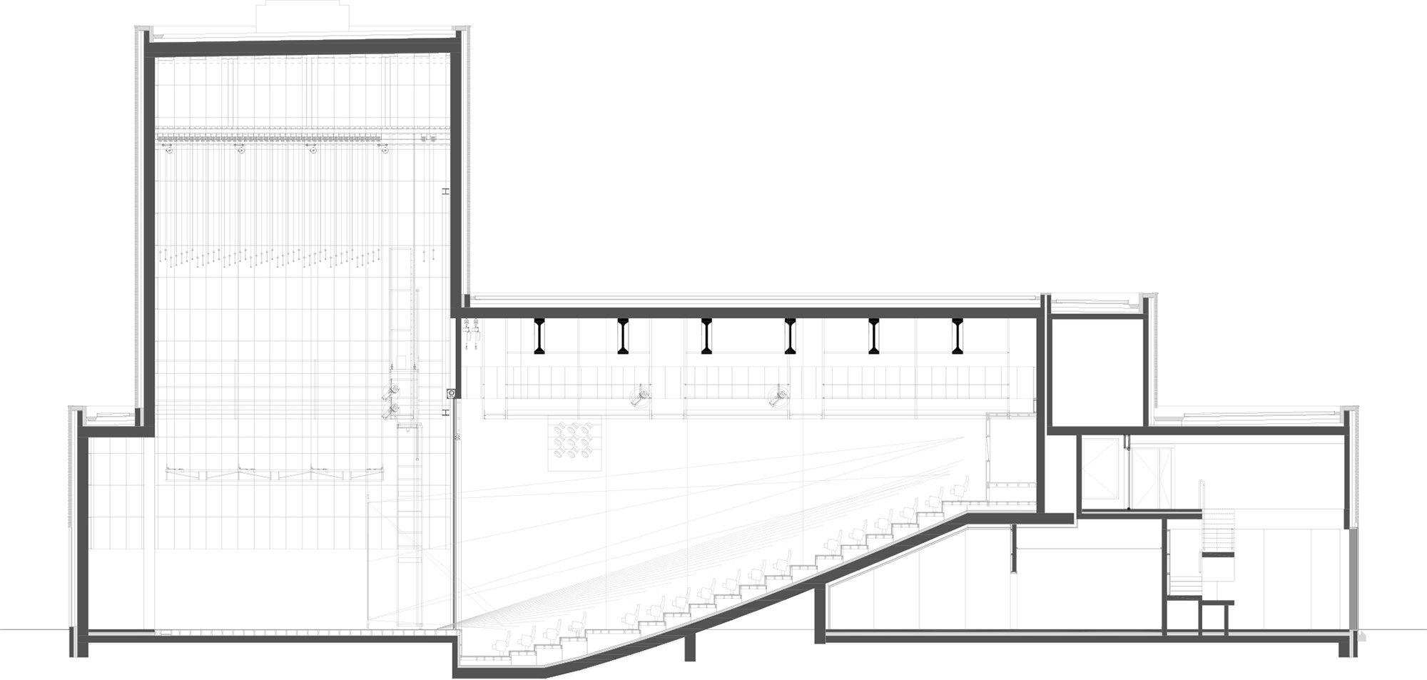
Inmitten der grünen Anlage sitzt der aus weißen Kuben und Quadern bestehende Baukörper. Typisch für zeitgenössische Theaterbauten ragt der Bühnenturm von außen gut sichtbar in die Höhe. Die großen Flächen aus Ziegelmauerwerk werden von einer kleinteiligen Textur aufgelockert. Von unten nach oben nimmt sie in ihrer Detaillierung allmählich ab. Im Erdgeschoss sorgt eine fragile Pfosten-Riegel-Fassade für Bezüge zwischen Innen und Außen. Das Foyer ist ein besonderer Blickfang. Hier öffnet sich über den Köpfen der Besucher ein monumentales Oberlicht. Seine runden Formen sind mit weißem, grobkörnigem Putz bedeckt. Wände und Treppenanlage bestehen aus schwerem Sichtbeton. Einige Türen und Brüstungen aus Holz setzen warme Akzente in dem ansonsten sehr kühl gehaltenen Ambiente.
Auch im restlichen Gebäude tauchen immer wieder weitere Farbtupfer auf: eine Wendeltreppe aus rot lackiertem Metall bei den Toilettenanlagen und eine rot gestrichene Decke über den Sitzgelegenheiten vor dem Saal. Der Zuschauerraum ist im Wesentlichen zweifarbig gehalten. Bühnentechnik und Sitzplätze sind tiefschwarz, was die Holzverkleidungen der Wände hervorhebt. Punktuell sind Lichtspots angeordnet. So kommt die gefaltete Form der Wände gut zur Geltung. An den Treppenstufen ermöglichen kleine Lichter auch bei gedimmtem Licht eine sichere Wegeführung.












