Weniger ist mehr: Indisches Fabrikgebäude »Concrete Void« von sP+a
Foto: Edmund Sumner
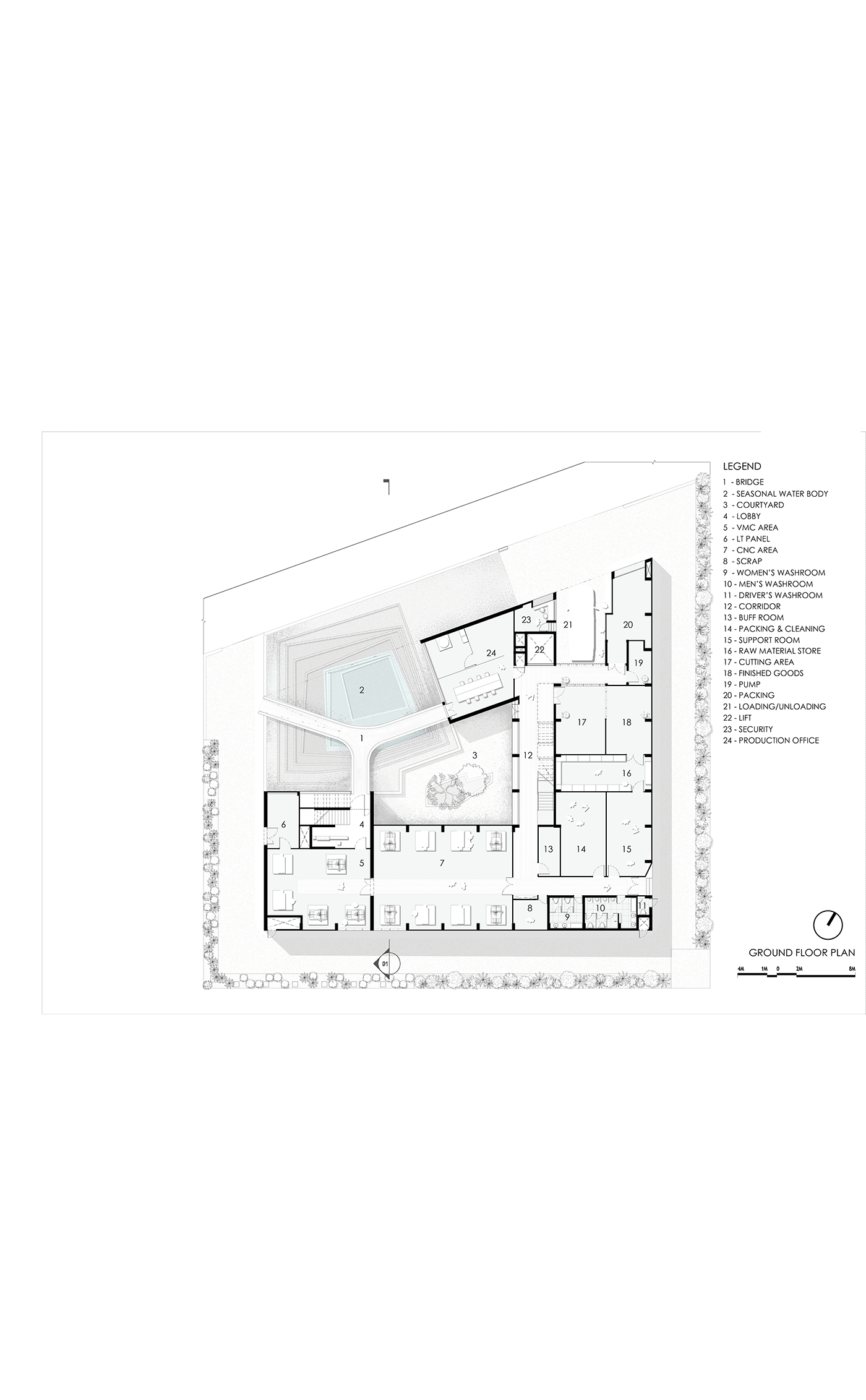
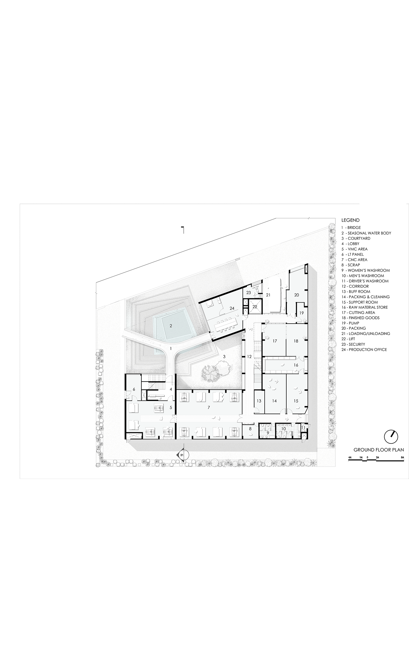
Mitten im Überschwemmungsgebiet sind Wasserpegel und Topografie essenzielle Bestandteile des Planungsprozesses. Die Architekten Sameep Padora & Associates entscheiden sich bei »Concrete Void« für die Flucht nach vorne – anstatt das Wasser auszusperren, beziehen sie es aktiv in den Entwurf mit ein. Sie formen das Gelände gezielt und kreieren an der westlichen Grundstücksecke einen kleinen Teich.
Als Kontrast zu den leichten, aber blickdichten Nachbarbauten aus Wellblech, die jede Verbindung zu ihrer Umgebung bewusst zu meiden scheinen, entsteht die Fabrik als massiver, viereckiger Ortbetonbau. Dieser schließt mit seiner Nordwestfassade direkt an die Straße an und entwickelt sich als zweigeschossiger Baukörper rund um einen dezent begrünten Patio. Im Bereich des Teichs gibt es im Eingangsniveau eine große Aussparung im Volumen, die an den zentralen Innenhof anschließt und sich in einer einladenden Geste nach draußen hin öffnet. Eine dreiarmige Betonbrücke verbindet Innen und Außen und fungiert als Zugang zu »Concrete Void«. Das Obergeschoss kragt über die Erschließungszone aus und macht den Leerraum zu einem angenehm klimatisierten Erholungsort für die Fabrikarbeiter.
Dank großflächig verglaster Fensteröffnungen und einer geringen Gebäudetiefe sind die Innenräume des Fabrikgebäudes lichtdurchflutet. Rohe Ziegeloberflächen und das zarte Grün des zentralen Patios komplettieren die angenehme Arbeitsatmosphäre in »Concrete Void«.





















