Business-Campus trifft Backsteincharme
Werkhalle 3 in München von Fischer + Steiger Architekten
Eines der ältesten Gebäude auf dem Triebwerks-Gelände in München-Neuaubing ist die 1906 errichtete Werkhalle 3. Fischer + Steiger u. Partner Architekten haben sie aufwändig saniert. © Fischer+Steiger u. Partner Architekten mbB
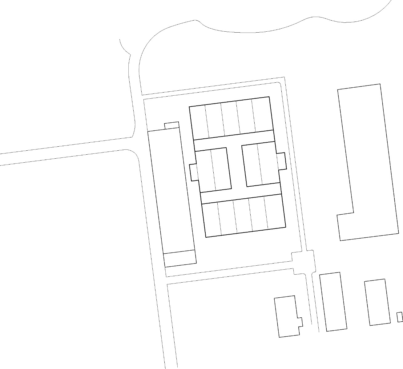
Ein Ausflug in Münchens westliche Peripherie kann aus architektonischer Sicht durchaus überraschen. Wir biegen in Neuaubing ab in Richtung Triebwerk-Gelände. Das Areal ist um die 14 ha groß, weitere 11 ha sind als Biotop- und Grünflächen angelegt. Hier entsteht ein neuer Businesscampus und unvermittelt tauchen gleich mehrere sorgfältig sanierte Backsteinbauten auf. Darunter die Werkhalle 3, die zu den ersten Hallen des Eisenbahn-Ausbesserungswerkes München-Neuaubing gehört. Sie wurde 1906 als Stahl-Konstruktion mit Sichtklinker-Fassade errichtet und hat mehr oder weniger zwei Weltkriege überlebt. Die schmutzig-dunklen Flächen an den Bestandsfassaden sind anders als vermutet keine Ruß- oder Ölspuren, sondern der Camouflage-Anstrich aus diesen Zeiten.


Neu entstandener Innenhof mit Bestandstragwerk © Fischer+Steiger u. Partner Architekten mbB
Vier Hallen, ein Stahl-Dachtragwerk
Die etwa 120 x 80 m große, bis zu 11,50 m hohe Halle steht seit 2008 unter Denkmalschutz. Fischer + Steiger Architekten aus München haben den riesigen Raum entkernt und saniert, mit Galerieeinbauten um 2000 m2 erweitert und zu Büro- und Gewerbeeinheiten umgenutzt. Aus Brandschutzgründen stehen auf dem vorhandenen Grundriss jetzt anstelle eines Gebäudes vier Einzelhallen. Abgesehen davon sind die kleineren Einheiten auch besser vermietbar. Bis heute verbindet sie ihr gemeinsames Stahl-Dachtragwerk. Die neue Nord- und die Südhalle an beiden Kopfenden sind jeweils rund 3000 m² groß, die West- und die Osthalle dazwischen haben 1600 und 1700 m². Über dem neu entstandenen, H-förmigen Innenhof wurde das Tragwerk bis auf die primären Fachwerkträger und Stahlpfetten zurückgebaut. So bleibt das Prinzip der Gesamthalle gut sicht- und spürbar. Den äußeren Rahmen dafür gibt das Bestandsmauerwerk vor.


Mit einzelnen, gezielten Stützkonstruktionen konnte das Tragwerk statisch ertüchtigt und Bestandsstützen erhalten werden. © Ralph Olma


© Ralph Olma
Behutsame statische Ertüchtigung
Nach umfangreichen Schadstoff- und Rückbauarbeiten haben die Planer das Tragwerk mit einzelnen, gezielten Stützkonstruktionen statisch ertüchtigt. Darauf ist der neue Dachaufbau aus sichtbarer Holzkonstruktion, Wärmedämmung, Abdichtung und hinterlüfteter Trapezblechdeckung aufgebracht. Die Entwässerung der Grabenrinnen und deren Abläufe wurden nach außen verlegt und mit Rinnenkesseln und Fallrohren zum sichtbaren Bestandteil der Fassadengestaltung. Bei den sattelförmigen Oberlichtern ließ sich die ursprüngliche Eisenkonstruktion erhalten, indem eine neue, isolierverglaste Konstruktion über die alten Profile gestülpt und beides exakt zur Deckung gebracht wurde.


Das stählerne Dachtragwerk vermittelt das Prinzip einer Gesamthalle, den äußeren Rahmen gibt das umlaufende Bestandsmauerwerk – hier am Hofeingang Südwest – vor. © Fischer+Steiger u. Partner Architekten mbB
Rote Stahlfassaden fassen die Höfe
Die äußere Mauerwerksfassade wurde weitgehend erhalten und denkmalgerecht saniert. In den Innenhöfen sind neue Stahlfassaden in kräftigem Rot entstanden. Sie fassen die Höfe, die bewusst nicht begrünt sind, um den industriellen Charakter des Geländes beizubehalten. In dieses Konzept passen leuchtend gelbe Kunstobjekte, die gleichzeitig als Sitzgelegenheit dienen. Die Gleise, die früher jedes Hallenschiff durchzogen, wurden ausgebaut und für die Begrenzung der Parkplätze verwendet.


Die einfach verglasten Stahlprofile der großflächigen Industrieverglasungen wurden, wo möglich, instandgesetzt und innenseitig um eine thermisch wirksame Fensterebene ergänzt. © Laura Thiesbrummel
Kastenfenster neu gedacht
Als der Mieter feststand, planten Fischer + Steiger Architekten den Aus- und Umbau der Hallen als Büros, Produktionsstätten und Labore, was wiederum die Bauphysik beeinflusste. Aus Denkmalschutzgründen konnten die Außenwände nur innenseitig gedämmt werden. Deshalb erhielt jedes einfach verglaste historische Stahlfenster nach dem Kastenfensterprinzip ein zusätzliches Innenfenster. Ergänzt wurden außenliegende Sonnenschutzmarkisen. Die Voraussetzung für die Zustimmung der Denkmalschutzbehörde war die detaillierte Planung inklusive angebrachter Muster und Varianten vor Ort. Die Pfetten und Träger aus Stahl mussten beim Durchgang in den Außenbereich der Innenhöfe thermisch getrennt werden, um Wärmebrücken zu vermeiden. Heute erfüllen die Gebäude den KfW 70 Standard.
Architektur: Fischer + Steiger u. Partner Architekten
Bauherr: Aurelis Real Estate
Standort: Bertha-Kipfmüller-Strasse 6, 81249 München (DE)
Hersteller: Schüco Stahlsysteme Jansen (Stahlprofilsysteme: Fenster Janisol Arte 2.0, Türen Janisol)
Fertigstellung: Oktober 2023














