// Check if the article Layout ?>
Wohltemperiert: The British School in Neu-Delhi
Foto: © Randhir Singh
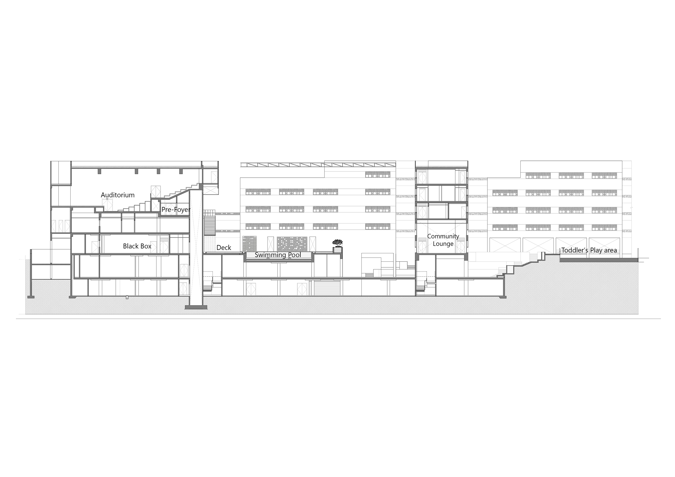
Bei dem Projekt für die British School in Neu-Delhi folgte das indische Architekturbüro Morphogenesis dem Leitsatz »eine internationale Ausbildung mit indischer Seele«. Ein international ausgerichtetes Bildungsprogramm ist in einen räumlichen und kulturellen nationalen Kontext eingebettet. Die Schule im Stadtzentrum von Neu-Delhi sollte erweitert werden. Eine große Herausforderung für die Planung bestand darin, das neue Gebäude auf dem bestehenden Gelände zu errichten, ohne den laufenden Betrieb der Schule zu stören.
Um die Wünsche und Bedürfnisse der vielfältigen Studentenschaft aus über 55 Nationen berücksichtigen zu können, organisierte Morphogenesis eine Reihe an Workshops mit Schülern und Lehrern. Zu Ergebnissen gehörte das Konzept mehrerer halböffentlicher Aufenthaltsräume für die multinationale Schulgemeinschaft.
Für die Optimierung der ökologischen Energiebilanz verwenden die Architekten traditionelle passive Kühlungsmethoden. Außerdem wurden die Innenhöfe so gestaltet, dass sie die meiste Zeit im Schatten liegen. Sogenannte »Chaupal« –, traditionelle öffentliche Versammlungsräume oder Plätze in Indien, die den Mittelpunkt des Gemeinschaftslebens bilden, dienten als Inspiration für die vielseitig nutzbare Orte zum Lernen und Erholen.
















