Gegliederter Monolith aus Sichtbeton
Wohn- und Geschäftshaus in Tokio von Sasaki und Ytro
Takumi Ota Photography
Lorem Ipsum: Zwischenüberschrift
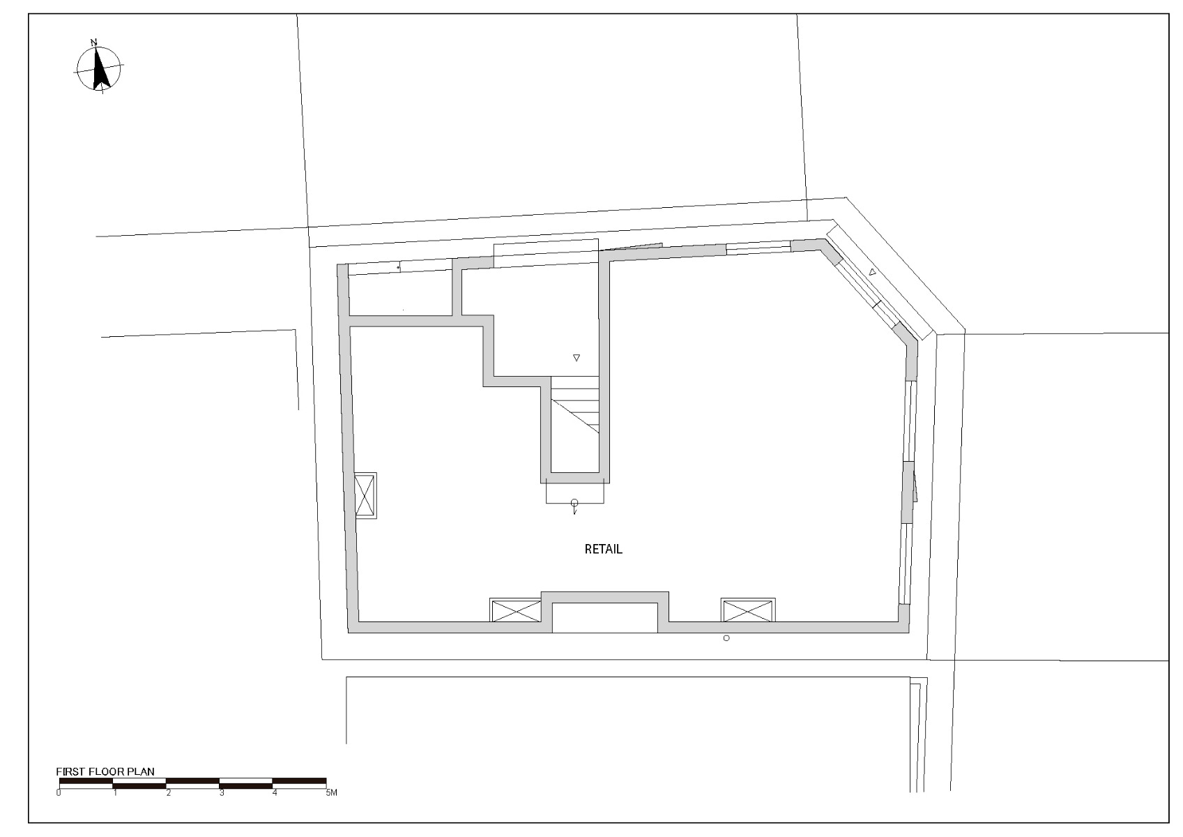
Der sechsgeschossige Neubau besetzt ein Eckgrundstück im zentral gelegenen, wohlhabenden Stadtteil Shirokane. Zuvor hatte hier das Bürogebäude eines Zeitungsauslieferbetriebs gestanden. Die Straßen sind hier etwas breiter als sonst in Tokio üblich – entsprechend weithin sichtbar ist jedes Bauwerk, das hier errichtet wird.


© Takumi Ota Photography
Lorem Ipsum: Zwischenüberschrift
Sasaki Architecture und Ytro Design Institute entwarfen für den exponierten Standort eine Großskulptur, deren mit einheitlich 600 X 1325 mm großen Schaltafeln hergestellten Sichtbetonfassaden nahtlos in die Dachflächen übergehen.
Lorem Ipsum: Zwischenüberschrift
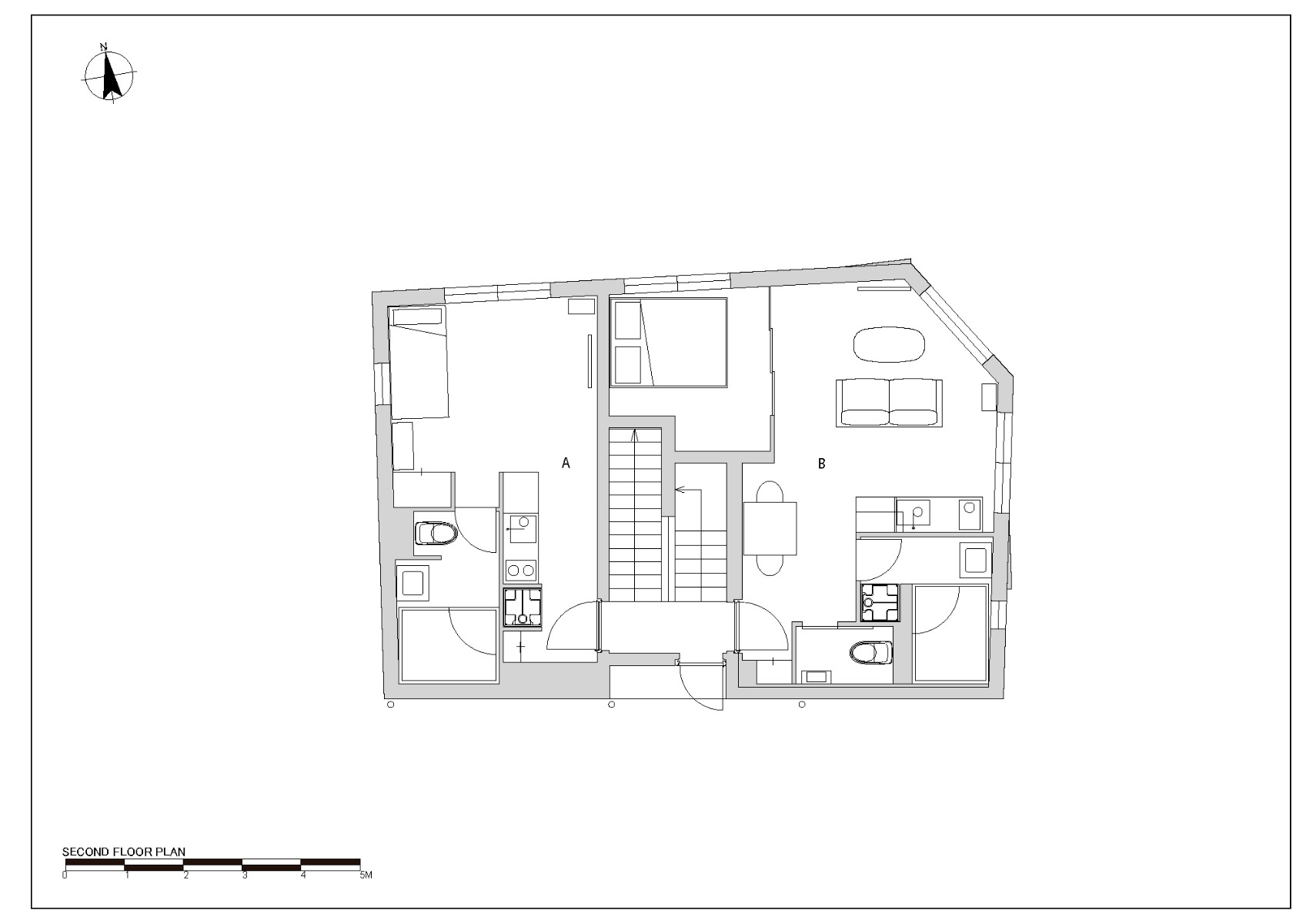
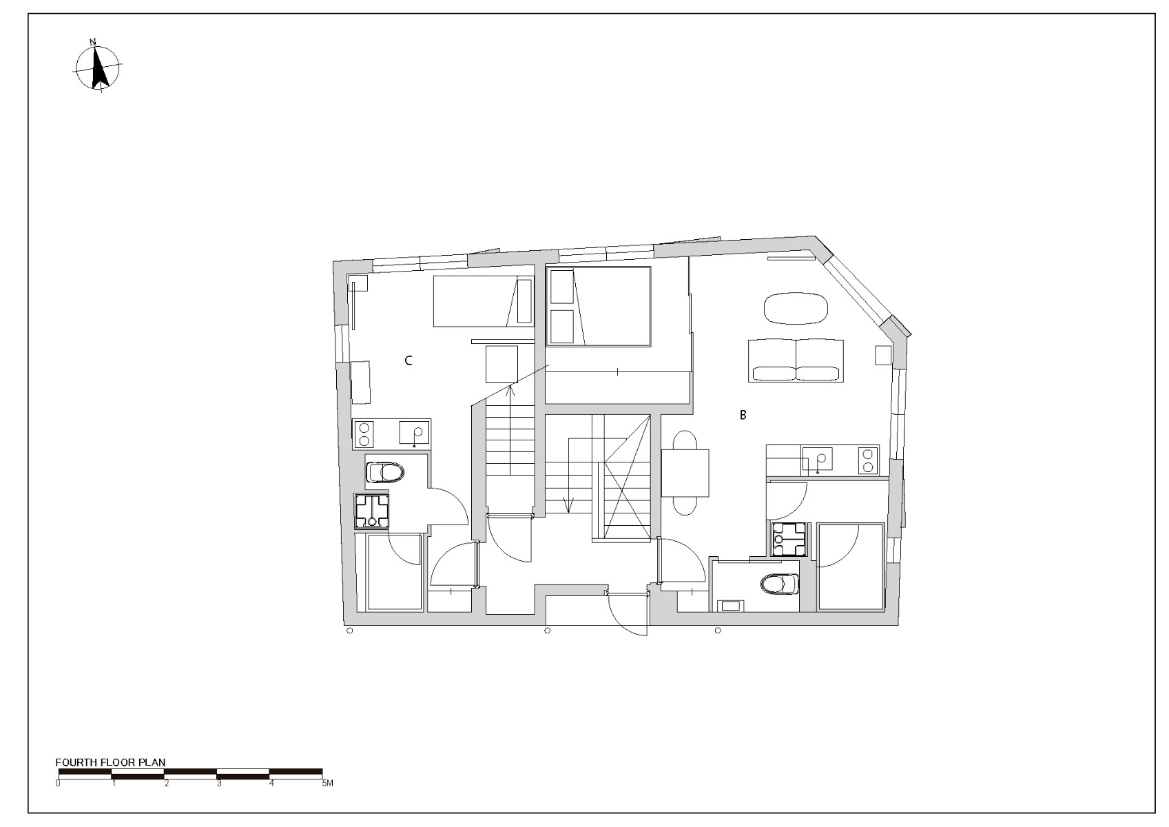
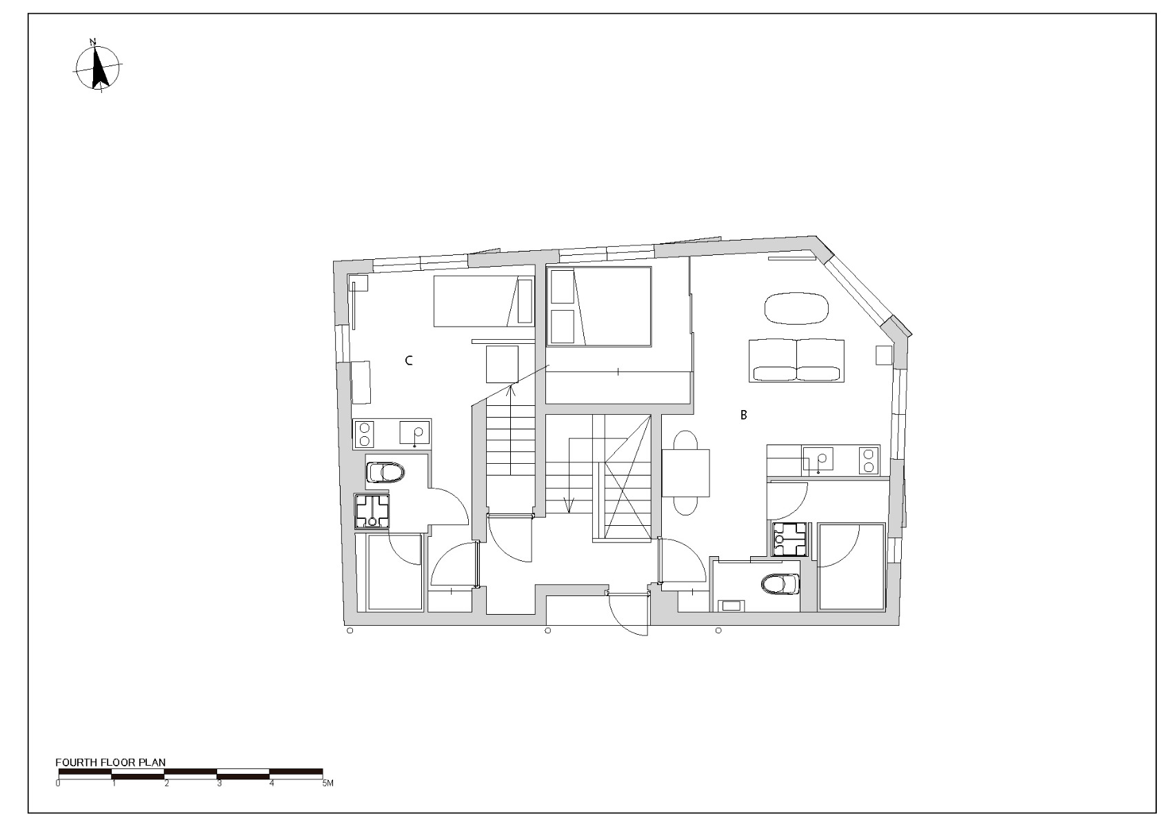
Kleinere Teilflächen sind wie Kiemen aus den Fassadenfluchten herausgeklappt – ein rein formales Mittel, um die Blicke optisch um die Gebäudeecke zu leiten. Im Erdgeschoss beherbergt das Gebäude ein Restaurant, auf den drei Etagen darüber je eine Ein- und eine Zweizimmerwohnung.


© Takumi Ota Photography
Lorem Ipsum: Zwischenüberschrift
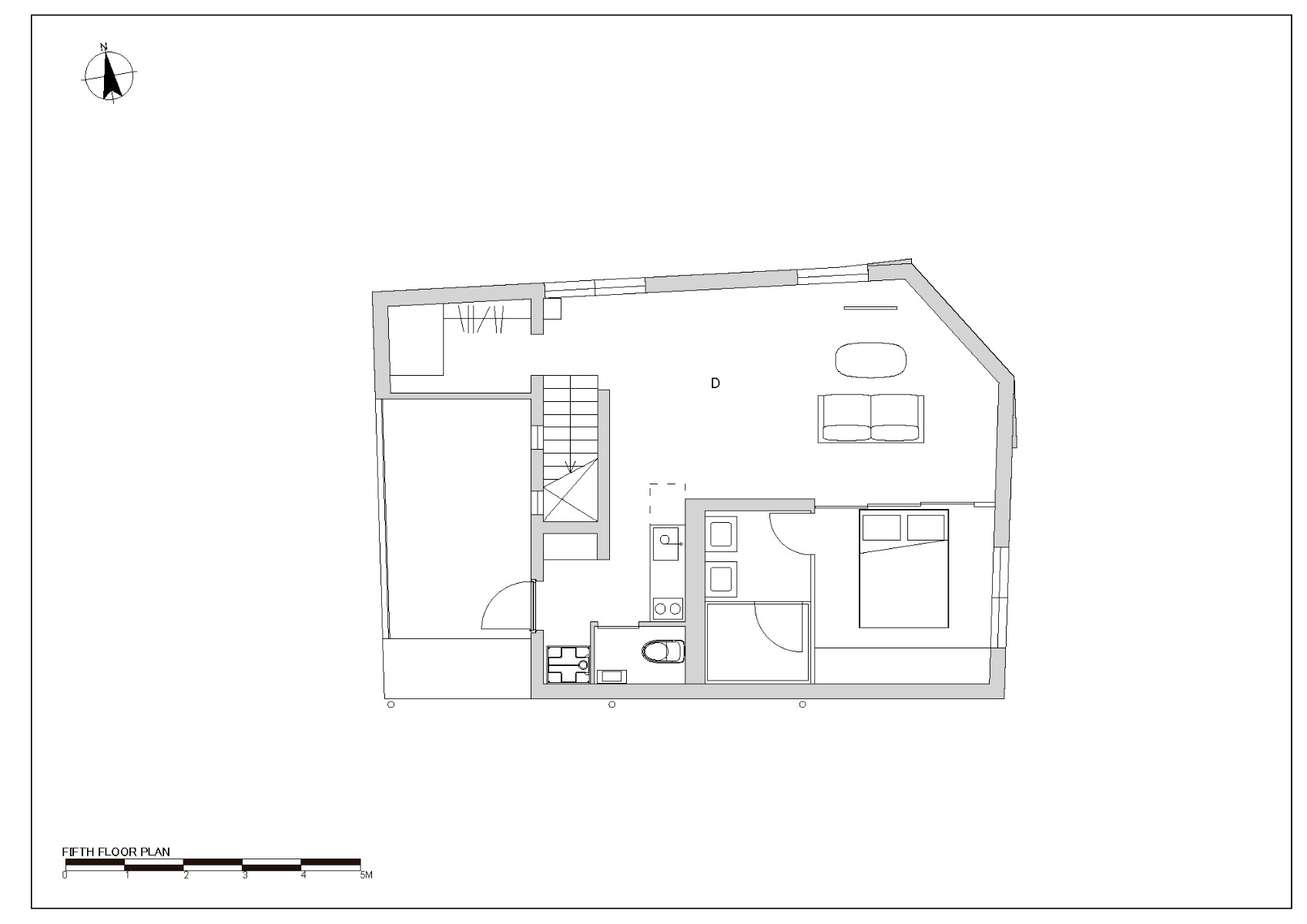
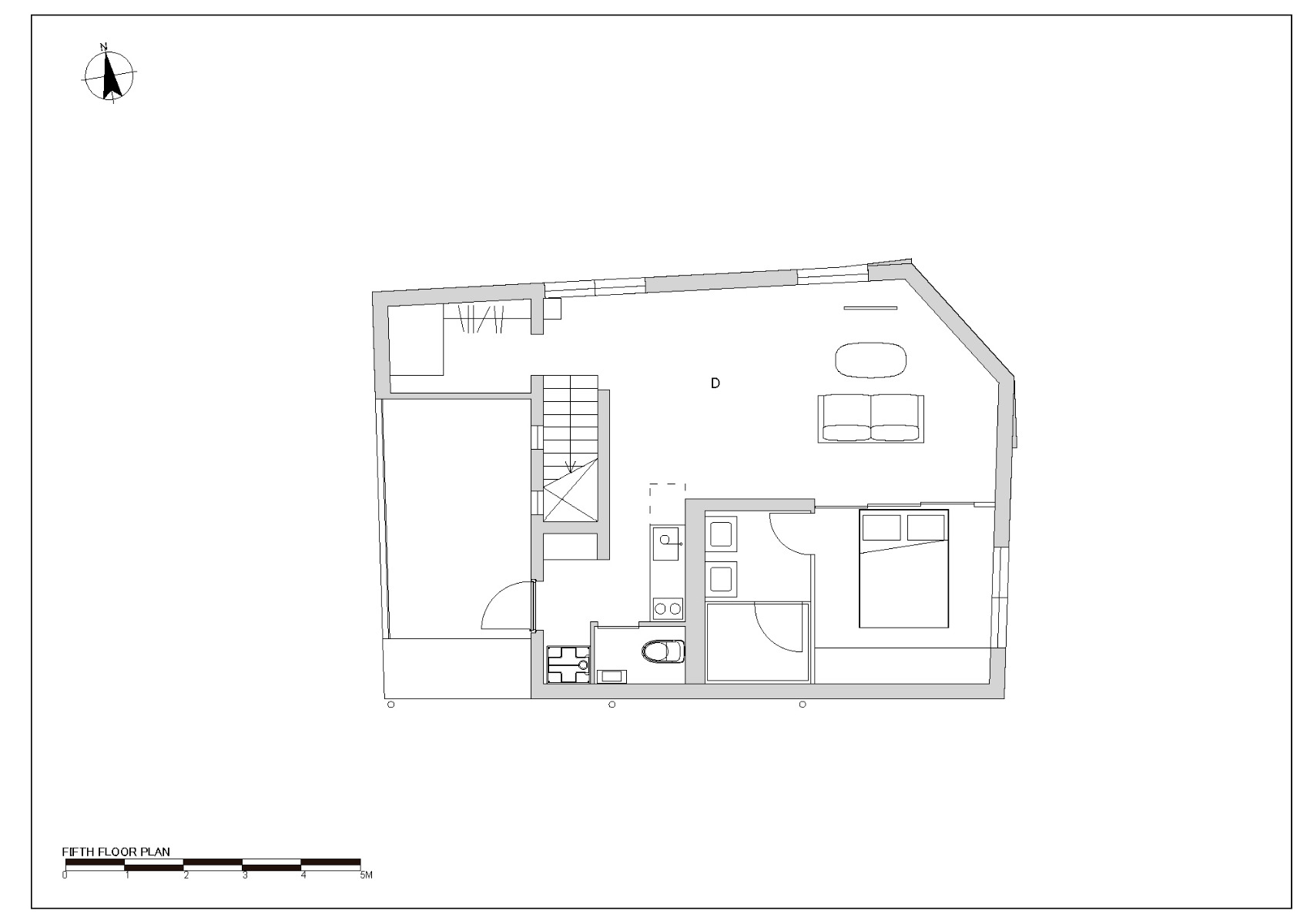
In den größeren Wohnungen lässt sich der Schlafraum mit Schiebewänden vom Wohnzimmer abtrennen. Alle Einheiten werden zur Miete angeboten. Ganz oben im Haus befindet sich ein zweigeschossiges Maisonette-Büro, das das Büro Sasaki Architecture derzeit selbst nutzt. Prinzipiell ließe sich diese Nutzungseinheit mit ihren bis zu 3,7 m hohen Decken aber auch als Wohnung umnutzen.


© Takumi Ota Photography
Lorem Ipsum: Zwischenüberschrift
Unterschiedliche Wandoberflächen zeigen, welche Funktion eine Wand im Haus jeweils einnimmt: Die Außenwände sind innen gedämmt und mit Gipskarton verkleidet, bei den Wänden des Erschließungskerns und den Wohnungstrennwänden blieben die Betonoberflächen dagegen sichtbar.
Architektur: Sasaki Architecture, Ytro Design Institute
Bauherr: Escenario Co.,Ltd
Standort: 5-chōme-6-7 Shirokane, Minato City, Tokyo 108-0072 (JP)
Tragwerksplanung: Tatsumi Terado Structural Studio
























