Serienbau mit Wellenschlag
Wohnanlage in Berlin von Frohn&Rojas
Von der Gartenebene aus hat man den besten Blick auf das Vis-a-Vis der beiden Wohnzeilen. Ihr Abstand entspricht der Breite einer Berliner Gründerzeitstraße. © David Hiepler
Im Bezirk Marzahn-Hellersdorf liegt das größte zusammenhängende Einfamilienhausgebiet Deutschlands. Weitaus bekannter wurde die Gegend jedoch durch die großen Plattenbauviertel, die in den 1970er- und 1980er-Jahren im Norden von Marzahn-Hellersdorf entstanden. Die Gebäude hier haben teils gewaltige Ausmaße – und bieten dennoch das Potenzial der Nachverdichtung, wie das Architekturbüro FAR Frohn&Rojas jetzt in der Lion-Feuchtwanger-Straße 61 bewiesen hat. Ihr sechsgeschossiger Gebäudekomplex steht mitten auf der viel zu breiten Straßenachse, die den U-Bahnhof Kaulsdorf Nord mit dem Wuhletal weiter westlich verbindet. Früher stand hier eine der typischen Großgaststätten, mit denen die DDR-Stadtplaner ihren Plattenbaugebieten soziales Leben einhauchen wollten.


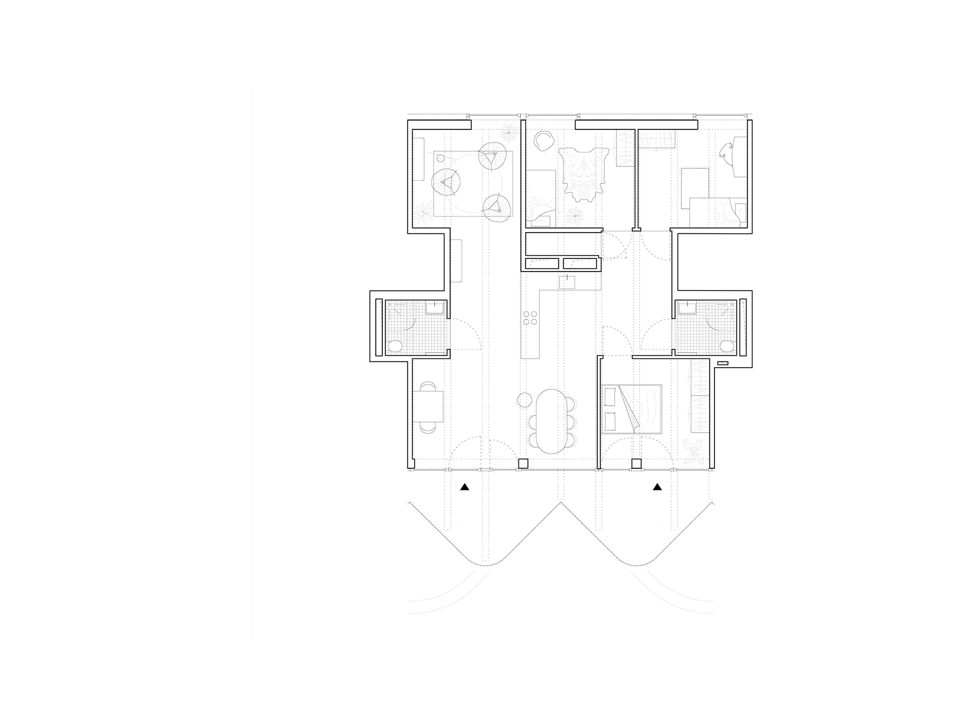
Grundriss Erdgeschoss, Grafik © FAR frohn&rojas
1900 Betonfertigteile im 1,25-Meter-Raster
Mit den beiden Neubauten setzen FAR Frohn&Rojas ihre Beschäftigung mit dem industrialisierten Betonbau fort, mit dem sie bereits vor fünf Jahren mit ihrem Wohnregal in Berlin-Moabit auf sich aufmerksam gemacht hatten. Die Konstruktion basiert auf einem 1,25-Meter-Raster und umfasst rund 1900 Fertigteile, die größtenteils unverkleidet die Ästhetik der beiden Wohnriegel prägen.


Filigrane Seilnetze dienen als Absturzsicherung für die Laubengänge. Diese sind Erschließungszone und privater Aufenthaltsbereich in einem. © David Hiepler
An die Stelle eines Erdgeschosses tritt eine halb ins Gelände eingegrabene Mobilitätsebene mit gut 50 Parkplätzen und 250 Abstellplätzen für Fahrräder. Die eigentliche, gemeinschaftlich genutzte Gartenebene liegt eine Etage höher. Hier begegnen sich die beiden Zeilenbauten fast bis auf Tuchfühlung und zeigen damit, was den Plattenbauten im Viertel fehlt: urbane Dichte und ein bauliches Gegenüber. Der Abstand der beiden Gartenfassaden entspricht ziemlich genau der Breite einer Berliner Gründerzeitstraße.


Die vier Haupteingänge zu den Treppenhäusern liegen an der Straßenfassade. © David Hiepler


Die Straßenfassade wird von einem Schachbrettmuster aus geschlossenen und verglasten Flächen gegliedert. © David Hiepler
Balkone mit Wellenschlag
Im ersten und zweiten Obergeschoss liegen zwanzig je zweigeschossige Maisonette-Wohnungen mit je etwa 100 m² Wohnfläche. Die vier obersten Geschosse sind mit eingeschossigen Zwei- bis Dreizimmerwohnungen belegt, die über Laubengänge erschlossen werden. Auf diese Weise kommt der Wohnkomplex mit insgesamt nur vier Treppenhäusern aus. Dank ihrer wellenförmigen Ausbuchtungen sind die Laubengänge Erschließungsfläche und Privatbalkon in einem. Anstelle herkömmlicher Balkongeländer bilden Seilnetze eine filigrane Absturzsicherung – und dienen als Rankgerüst für die Kletterpflanzen, die hier künftig hoffentlich wachsen werden.


Auch im Inneren der Wohnungen liegen die Betonfertigteile weitgehend offen. Die Räume sind nutzungsneutral konzipiert, sodass die Bewohner wählen können, in welche Richtung sich ihre Wohnbereiche orientieren. © David Hiepler
Schachbrettartige Fassadenstruktur
Ein komplett anderes Bild ergeben die Straßenfassaden der beiden Wohnriegel: Mit einem Schachbrettraster aus geschosshohen Glasschiebeelementen und geschlossenen Aluminiumpaneelen kommen sie der Ästhetik der umlegenden Plattenbauten deutlich näher als die bewegte Balkonfront auf der Hofseite. Die nutzungsneutralen Grundrisse lassen den Bewohnern die Wahl, ob sie ihren Wohnbereich lieber in Richtung Straße hin orientieren oder zur Begegnungszone Laubengang am Innenhof. Dass das rund 12 700 m² große Projekt überhaupt einigermaßen pünktlich Anfang 2025 fertiggestellt wurde, war im Übrigen keine Selbstverständlichkeit: Bauherr war der Münchener Immobilienentwickler Euroboden, der 2023 Insolvenz anmeldete. Seit der Fertigstellung verwaltet der Immobiliendienstleister BEB+ die Wohnanlage und bietet die Wohnungen zur Miete an.
Eine weitere Wohnanlage in Berlin finden Sie in unserer Datenbank Detail Inspiration.
Architektur: FAR frohn&rojas
Bauherr: Euroboden
Standort: Lion-Feuchtwanger-Straße 61, Berlin (DE)
Tragwerksplanung: IB Pasche
Landschaftsarchitektur: Topotek 1
TGA-Planung: Kando Ingenieure
























