Wohnen im Container: Hotel in London von Doone Silver Kerr
Foto: Edmund Sumner
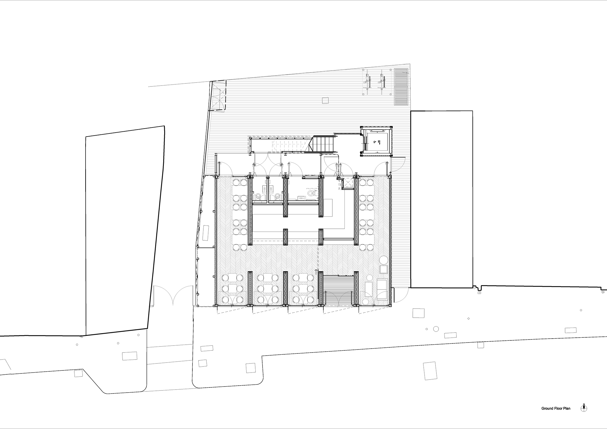
Das Hotel Stow-Away fügt sich im zentralen Londoner Viertel Waterloo, direkt anschließend an die große Waterloo Station im Norden, in die Bebauung ein. Während die Frontfassade zur Straße hin orientiert ist, bietet sich von der Rückseite ein Ausblick bis hin zum London Eye. Die Architekten passen das Hotel an seine urbane Umgebung an und entscheiden sich auf der Suche nach einer simplen und zugleich robusten Bauweise für ein konstruktives System aus Schiffscontainern.
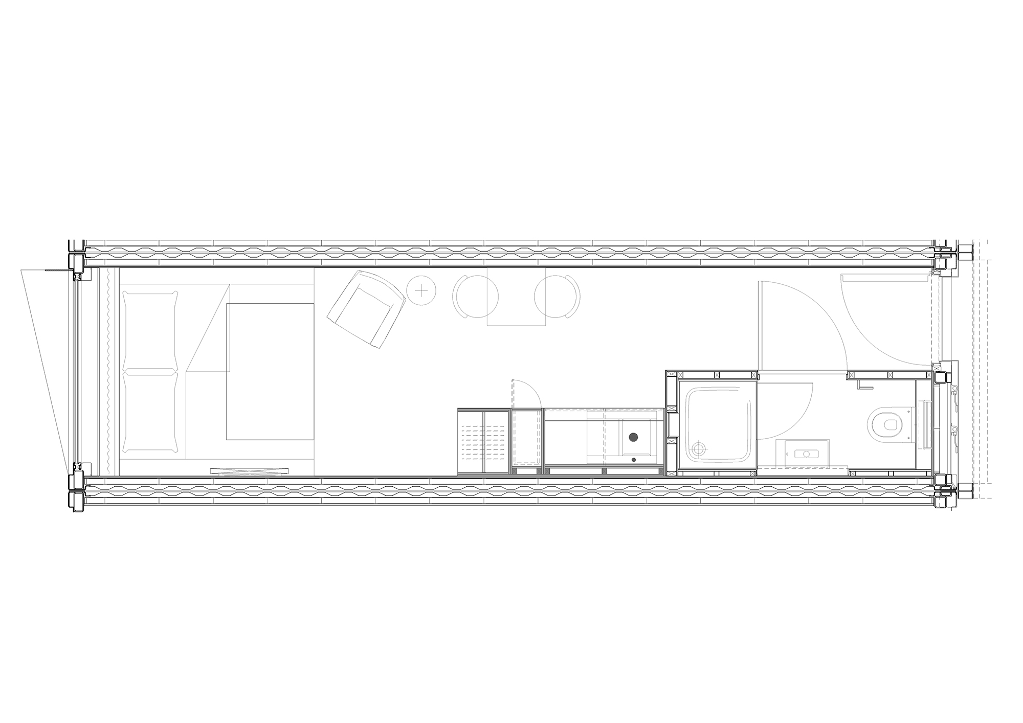
Das fünfgeschossige Hotel umfasst in Höhe und Breite jeweils fünf Container. Seine Tiefe entspricht der Containerlänge. Die ehemalige Funktion der recycelten Module bleibt nach außen hin durch die seitliche Riffelung klar erkennbar. Zur Straße hin öffnen sich die einzelnen Einheiten in Form von Verglasungen. Der untere Teil der raumhohen Fenster ist mit einem weißen Rasterdruck versehen, um ungewollte Einblicke zu verhindern. Jede der Containerfronten ist zudem mit einer Stahlblende versehen. Diese schützt nicht nur vor Sonneneinstrahlung, sondern verleiht einen skulpturalen, fast kristallinen Charakter. Die orangen Innenseiten der Lamellen erinnern an verwitterte Frachtcontainer auf hoher See und machen das kleine Aparthotel zum Hingucker.
Während das Erdgeschoss des Stow-Away als kommunikativer Treffpunkt fungiert, befindet sich in jedem der 20 darüberliegenden Container jeweils ein Apartment. Die Erschließung erfolgt entlang der Rückseite über einen offenen Laubengang. Die Wände der Innenräume sind mit natürlichen Materialien wie Stein und Holz ausgekleidet. Dämpfende Gummitrennlagen schützen vor Lärm und Vibrationen der Großstadt. Die kleinen Apartments nutzen die minimale Fläche voll aus, ohne beklemmend zu wirken. Angefangen von einem Bett, das unter Tags mit gepolsterter Rückwand zur Sitzgelegenheit wird, über Nasszelle und Küche sind in den Schiffscontainern alle Einrichtungen vorhanden, die es zum Wohnen, Arbeiten, Essen und Schlafen braucht.


















