// Check if the article Layout ?>
Wohnen in Tomakomai: Einfamilienhaus von Jun Igarashi Architects
Foto: Ikuya Sasaki
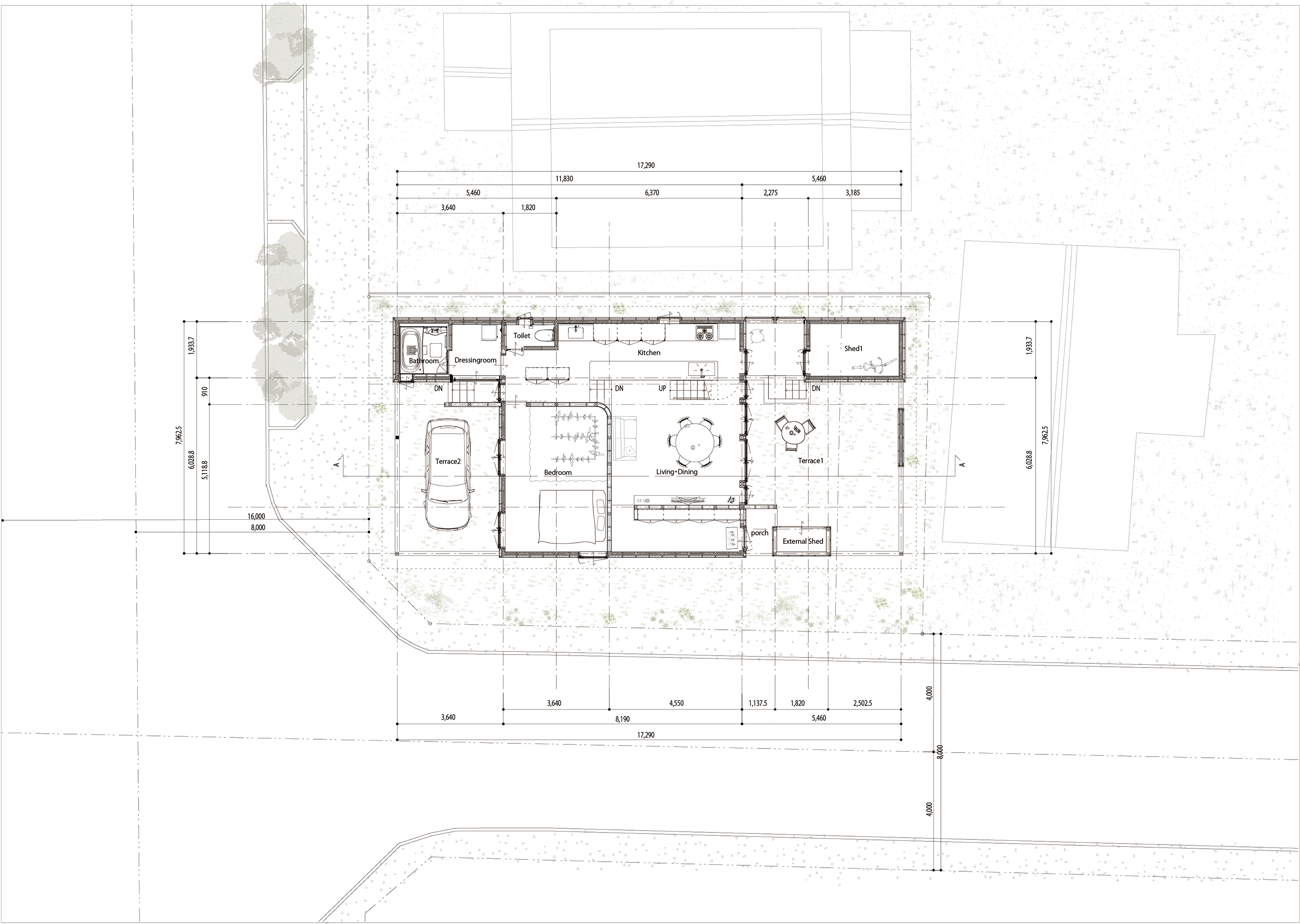
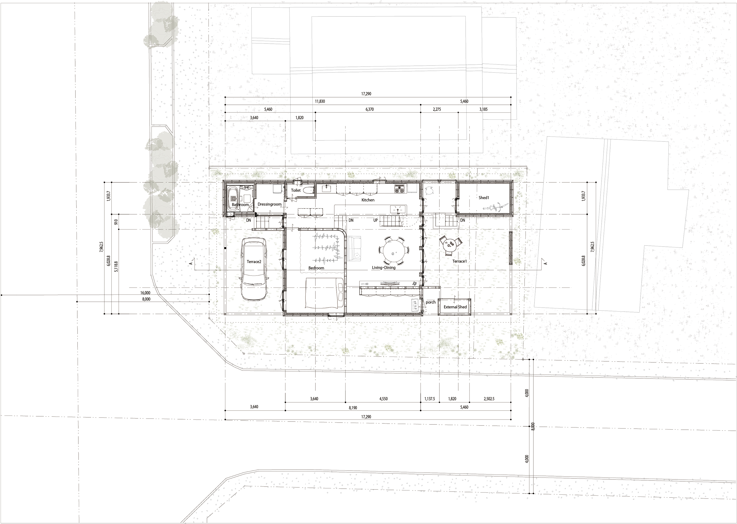
Die Jahresdurchnittstemperatur liegt in Tomakomai, einer Hafenstadt auf der Insel Hokkaido, bei etwa 7 Grad. Diese bemerkenswerte Kälte bestimmte den Entwurfsgedanken; Jun Igarashi liess sich hierbei auch von Wohnkonzepten in anderen kalten Regionen inspirieren. Kälte versteht der Architekt nicht nur als ein physikalisches Problem, das mit den baulichen Mitteln abzuwehren sei, sondern auch als eine entwurfliche Triebkraft.
Viel Schnee im Winter führt meistens zu kompakteren Volumen, die eine Verringerung von Dachflächen mit sich bringen. Ganz anders bei dem Haus in Tomakomai: Ein windgeschützter Raum, der eine Zwischenschicht zwischen der Straße und dem eigentlichen Wohnhaus bildet, ist mit einem großen Vordach ausgestattet und ist ein Angebot an zusätzlicher Wohnfläche im Winter wie im Sommer. Das eigentliche Wohnhaus unter dem Dach besteht im Grunde genommen aus einem Raum, der in unterschiedliche Wohnzonen durch Höhenabstufungen unterteilt wird: Von der Küchenzeile unter dem Erdgeschossniveau gelangt man ins zentral gelegene Wohnzimmer, über dem sich das Schlafzimmer und der Arbeitsbereich befinden.













