Ein Neubau für die Gropiusstadt
Wohnensemble TLW in Berlin von Eike Becker Architekten
© Jan Bitter
Lorem Ipsum: Zwischenüberschrift
Das TLW in der Gropiusstadt in Berlin-Neukölln ist fertig, die ersten Mieter haben ihre Wohnungen bezogen. Seinen Namen verdankt das dreiteilige Wohnensemble dem Standort am Theodor-Loos-Weg. Der Entwurf stammt von Eike Becker Architekten, die den vom Beamten-Wohnungs-Verein zu Berlin eG ausgelobten Wettbewerb 2016 gewonnen hatten. Der Neubau ist das erste genossenschaftliche Projekt des Berliner Architekturbüros und mit rund 43 Mio. Euro Gesamtbaukosten das größte Neubauvorhaben der Genossenschaft in den vergangenen 30 Jahren.


© Jan Bitter
Dreiteiliges Ensemble
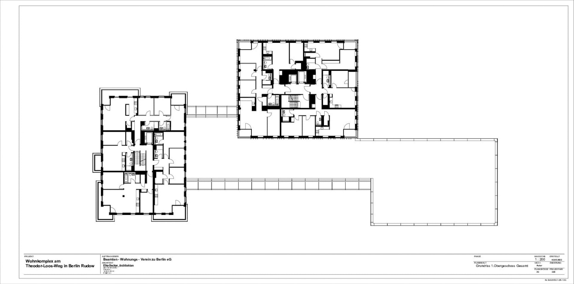
Das Ensemble besteht aus einem 20-geschossigen Wohnhochhaus, einem fünfgeschossigen Stadthaus und einem Pavillon. Es hat insgesamt 116 hochwertig ausgestattete Wohneinheiten. Mit einer breiten Nutzungsvielfalt auf der Bruttogrundfläche von 20 261 m² knüpfen die Architekten an die Ursprungsidee des Bauhaus-Gründers Walter Gropius an, der für den posthum nach ihm benannten Ortsteil die Integration kleinerer Gebäude vorsah.
Lorem Ipsum: Zwischenüberschrift
Eike Becker sieht in dem Projekt auch einen Schritt in Richtung Aufwertung der als sozialer Brennpunkt bekannten Wohnsiedlung Gropiusstadt hin zu einem urbanen Viertel mit mehr Aufenthaltsqualität.


© Jan Bitter
Raum für Begegnung
Raum für ein nachbarschaftliches Miteinander gibt es sowohl innerhalb als auch außerhalb des Wohnensembles. Die drei Bauteile des TLW sind über ein gemeinsames, lichtdurchflutetes Erdgeschoss verbunden, das eine zentrale Verteilerfunktion für die Bewohner einnimmt. Die Lounge im Foyer verknüpft Gastronomie- und Gemeinschaftsflächen. Von dort gelangt man auch zum verglasten Pavillon mit Fahrradraum und Gemeinschaftssaal mit Küchenzeile. Eine weitläufige Grün- und Außenanlage umsäumt die durch Terrassen- und Pflasterflächen verbundenen Gebäude. Hell und dunkel eloxierte Aluminiumplatten lassen die Fassaden plastisch und insbesondere den 60 m hohen Wohnturm schlank und elegant erscheinen. Im Erdgeschoss des fünfstöckigen Pavillons gibt es drei Gewerbeeinheiten. In den oberen Etagen setzen unterschiedlich große, unregelmäßig angeordnete Balkone Akzente.


© Jan Bitter
Es kam anders
Bezahlbares Wohnen im Grünen – das war die Idee von Walter Gropius für die am südlichen Stadtrand des Gründerzeitviertels Neukölln gelegene Ackerfläche. Mit seinem Bostoner Büro The Architects Collaborative (TAC) wollte Gropius den Stadtteil, in dem heute fast 36 000 Einwohner leben, mit halbrunden, maximal 14-geschossigen Bauten und viel Grün in eine moderne Gartenstadt verwandeln. Geplant waren rund 14 500 Wohnungen, auf Grund des Mauerbaus 1961 wurde verdichtet und höher gebaut. Es entstanden 19 000 Wohneinheiten in Häusern mit bis zu 30 Stockwerken für 50 000 Menschen. Gropius warnte schon damals davor, dass das Viertel zum sozialen Brennpunkt werden könnte. Bei der Realisierung blieb er letztlich außen vor, seine Handschrift ist dennoch immer wieder erkennbar.
Architektur: Eike Becker Architekten
Bauherr: Beamten-Wohnungs-Vereins zu Berlin eG
Standort: Theodor-Loos-Weg 51, 12353 Berlin-Neukölln (DE)
Tragwerksplanung: Ingenieurbüro Rüdiger Jockwer
Landschaftsarchitektur: sinai Gesellschaft von Landschaftsarchitekten, Berlin
Fassade: Ingenieurbüro für Fassadentechnik Michael Walzer











