Raumbildende Topografie
Wohngebäude in Lissabon von Bak Gordon
Im Wohnzimmer öffnet sich eine Loggia zur Straße. © Francisco Nogueira
In Lissabons Westen entwerfen Bak Gordon Arquitectos zwei ineinandergreifende Wohnvolumen auf einer schmalen, langen Baulücke. Rings um das Grundstück angeordnete, hohe Betonwände verbinden beide Gebäudeteile miteinander, in deren Mitte ein tiefliegender Innenhof entsteht. Einzig die straßenseitige Fassade bezieht sich auf das ortstypische Stadtbild.


Großformatige Öffnungen in der Fassade deuten die Gestaltung der Innenräume an. © Francisco Nogueira
Vermittelnde Fassade
Um trotz des zeitgemäßen Wohnentwurfes der charakteristischen Bebauung Lissabons gerecht zu werden, fanden die Architekten einen Kompromiss: Straßenseitig nimmt der Entwurf die Flucht und Gestaltung der Nachbargebäude auf. So vermittelt die Fassade zwischen historischer Umgebung und der Formensprache des Neubaus. Großformatige Öffnungen deuten bereits die Großzügigkeit der Innenräume an.
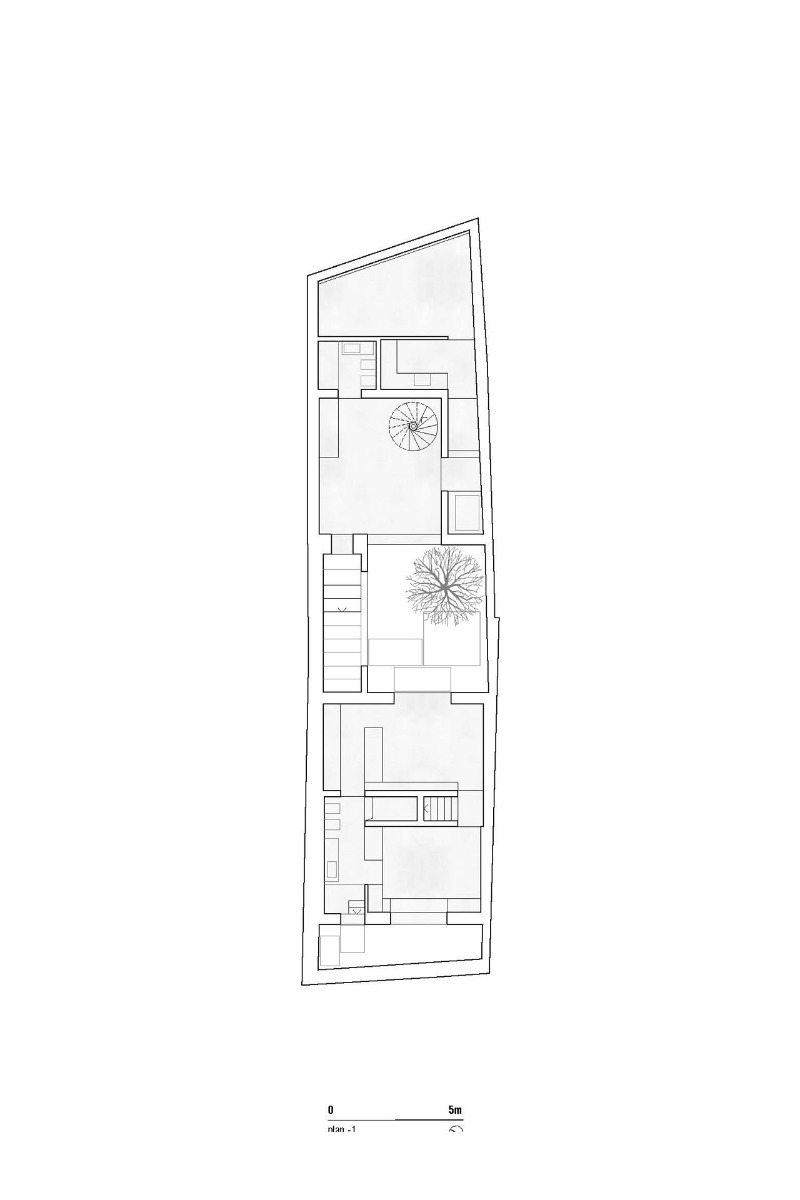
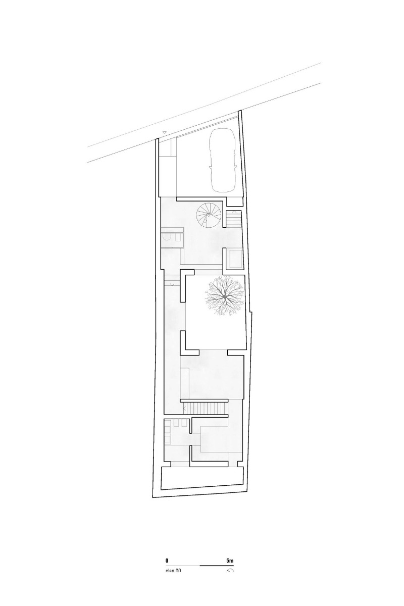
Innenhof
Der Neubau erstreckt sich über die gesamte Fläche der 26 m langen Baulücke. Die abfallende Topografie des Grundstückes ermöglicht die L-förmige Anordnung beider Baukörper um einen Innenhof. Während im Stadtbild nur drei Geschosse sichtbar sind, öffnet sich das straßenseitige Wohnvolumen im Untergeschoss zum Innenhof. Der rückseitige zweigeschossige Gebäudeteil wird sowohl über den Hof, als auch über einen verbindenden Gebäudeteil erschlossen. Großzügige Öffnungen in den hofseitigen Fassaden stellen den Bezug der Wohnvolumen zueinander her.


Handgefertigte Fliesen schmücken den überdachten Durchgang zum Innenhof. © Francisco Nogueira
Materialität
Das Wohngebäude wurde aus Beton hergestellt. Die sichtbar belassene Struktur der Bretterschalung der hofseitigen Fassaden bildet einen Kontrast mit der Betonoptik. Im Innenraum wird diese Gestaltung an den Decken fortgesetzt. Straßenseitig greift der Entwurf die in Lissabon übliche Gestaltung mit Fliesen auf. Die grün glänzenden handgefertigten Kacheln zieren die Fassade des ersten und zweiten Obergeschosses sowie den überdachten Durchgang zum Innenhof.


Die Sichtbetonoptik setzt sich im Innenraum an den Decken fort. © Francisco Nogueira
Raumaufteilung
Im Erdgeschoss verbergen sich hinter einer offenen thermomodifizierten Holzstruktur eine Garage sowie der Eingangsbereich. Im vorderen Gebäudeteil sind Wohn-, Esszimmer und ein Büro untergebracht. Rückseitig erschließen sich die privateren Wohnbereiche. Das begehbare Dach öffnet einen Panoramablick über die Stadt bis auf den Tejo.
Architektur: Bak Gordon Arquitectos
Bauherr: Privat
Standort: Rua Sao Francisco de Borja, Lapa, Lissabon (PT)
Landschaftsarchitektur: F&C Arquitectura Paisagista
Tragwerksplanung: Profico
Bauunternehmen: 2GM, Construções Civis
Energieplanung: Natural Works
























