Nachverdichtung in Holzbauweise
Wohngebäude Nordgrün in Karlsruhe von Drescher Michalski Architekten
Zweimal Nordgrün: Umgeben vom dichten Grün der Bäume liegt die mit grünem Trapezblech verkleidete Aufstockung in der Karlsruher Nordstadt. © Kim Fohmann
Die Karlsruher Nordweststadt bietet ein Bild wie so viele Nachkriegssiedlungen in Deutschland: In die Jahre gekommene Einfamilienhäuser wechseln sich mit sechs- bis achtgeschossigen Wohnblocks ab, die ohne wirklichen Bezug zueinander und zum Straßenraum in der Landschaft abgestellt wirken. Doch das Quartier hat auch seine Qualitäten: Es ist relativ zentrumsnah, durch die S-Bahn gut erschlossen und liegt unmittelbar am ehemaligen Karlsruher Flugplatz, der nach dem Fall der Mauer und dem Abzug der US-amerikanischen Truppen zum Naturschutzgebiet erklärt wurde. Heute dient er als grüne Lunge für die Stadt und als Naherholungsgebiet, das nicht bebaut werden darf.


Das Luftbild von Süden zeigt das zweiteilige Gebäudeensemble. Rechts im Hintergrund der ehemalige Karlsruher Flugplatz. Davor verläuft in einem Geländeeinschnitt die S-Bahn. © Maurice Fabien Nitsche
Erst Bundespost, dann Telekom – und jetzt NordGrün
Das Grundstück am Rand der Wohnsiedlung gehörte seit Jahrzehnten der Post und später, nach deren Gründung, der Deutschen Telekom. In einem zweigeschossigen Gebäude an der Stresemannstraße war jahrzehntelang eine Postfiliale untergebracht. Den größere, ebenfalls zweigeschossigen Stahlbetonskelettbau im hinteren Teil des Grundstücks nutzte die Telekom als Ortsvermittlungsstelle. Über das Grundstücksexposé eines Immobilienmaklers wurde Lukas Hechinger, Geschäftsführer eines Karlsruher Holzbaubetriebs, auf die Liegenschaft aufmerksam. Gemeinsam mit Drescher Michalski Architekten plante er die Nachverdichtung des Grundstücks – und fand über eine Bauvoranfrage heraus, dass sich auf dem Grundstück insgesamt drei Vollgeschosse plus ein Staffelgeschoss zusätzlich errichten ließen. Dadurch wurde das Bauvorhaben wirtschaftlich, aber auch statisch kompliziert. Denn dass das Bestandsgebäude unmöglich die Last aus vier zusätzlichen Geschossen würde tragen können, war dem Projektteam sofort klar.


Axonometrie-Explosion, Grafik © Drescher Michalski Architekten


Axonometrie Gesamtdarstellung, Grafik © Drescher Michalski Architekten
Holzbau auf dem Stahltisch
Also entwarfen Drescher Michalski einen großen Stahltisch mit Unterzügen aus Fachwerkträgern, der die zusätzlichen Geschosse trägt, ohne den Gebäudebestand zu tangieren. Sein Achsraster von 5 m entspricht dem des Bestandsgebäudes. Aus Brandschutzgründen wurden die Stahlträger mit zementbasierten Putzträgerplatten verkleidet, die aus der Ferne wie Beton wirken. Der untere Teil der Stützen ist komplett ausbetoniert.


Blick in eine der Maisonettewohnungen im dritten und vierten Obergeschoss. © Kim Fohmann
21 Wohnungen mit Schwarzwaldblick
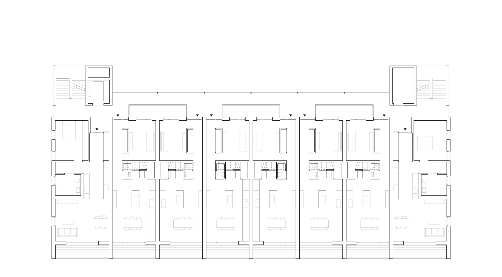
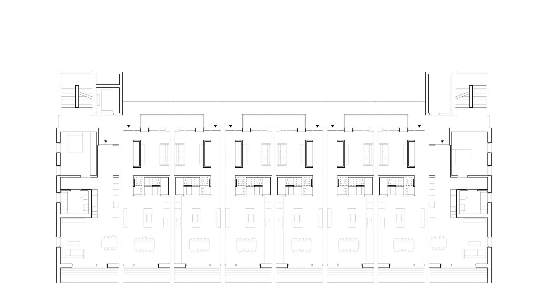
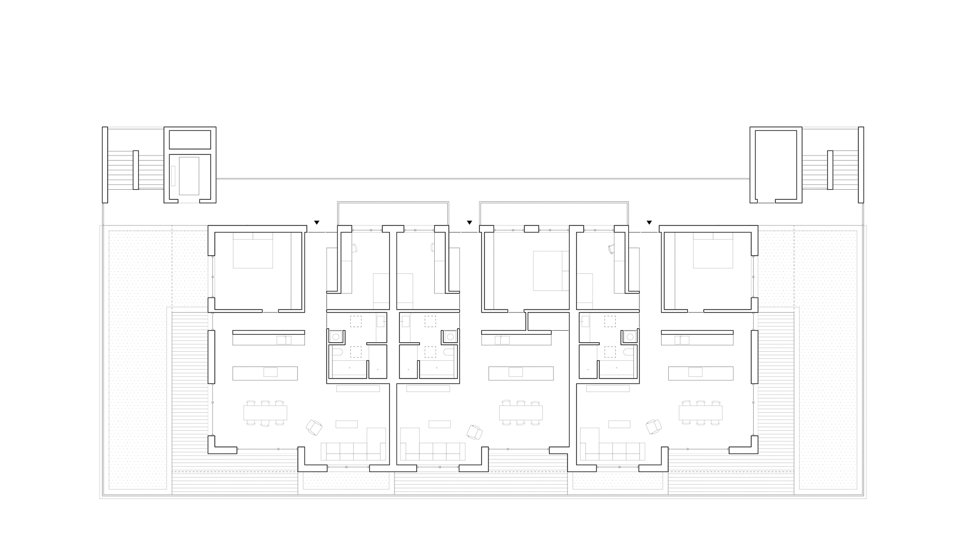
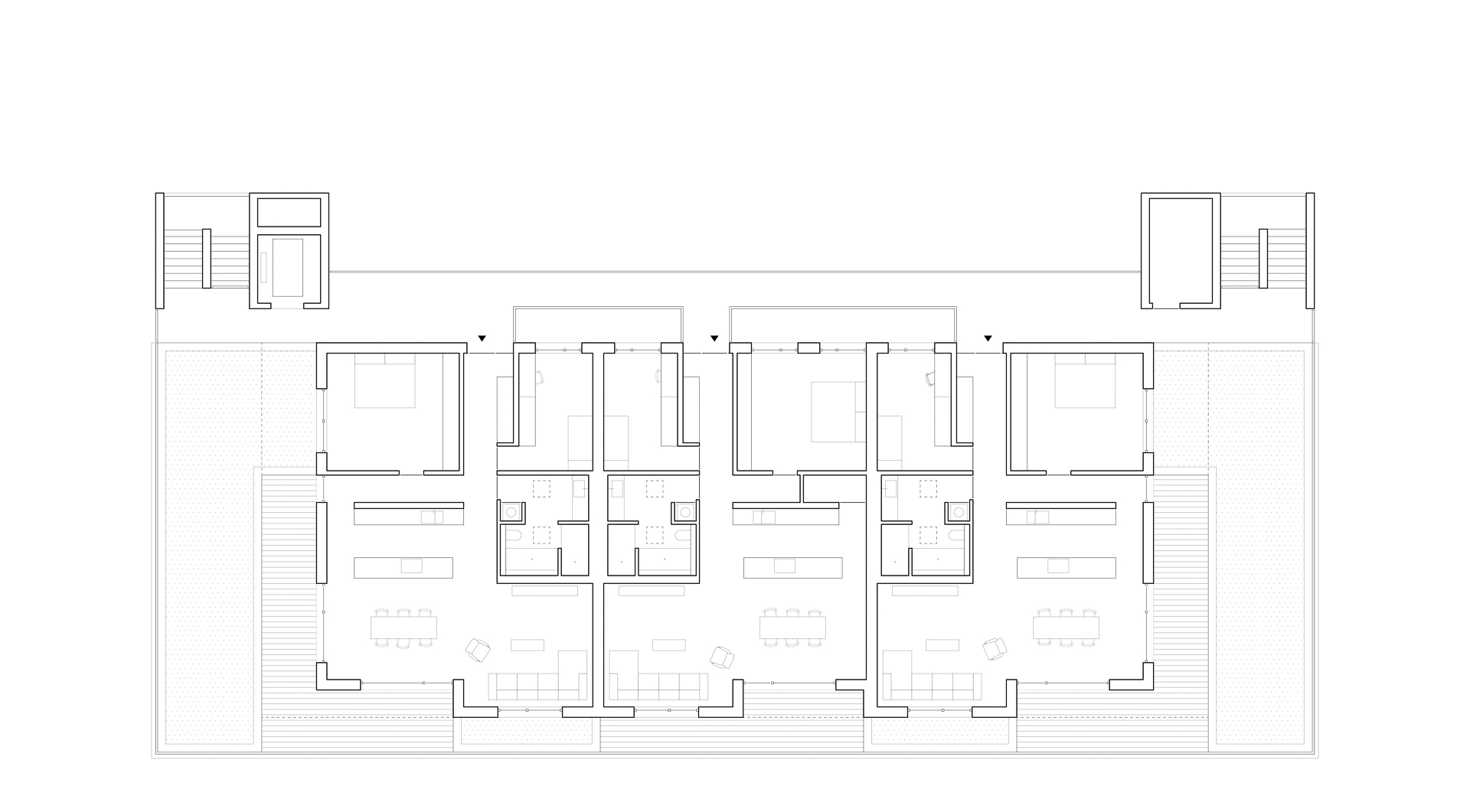
Die vier Wohngeschosse hingegen bestehen komplett aus Schwarzwälder Massivholz. Sichtbar wird das Material lediglich in den Loggien an der Südseite. Nach außen hin sind die Fassaden mit lediglich in den Loggien an der Südseite. Nach außen hin sind die Fassaden mit Mineralwolle gedämmt und mit einer vorgehängten Hülle aus Trapezblech verkleidet. Im Inneren verschwinden die Holzdecken und -wände hinter Gipskarton. Auf der Nordseite werden die 21 Wohnungen durch Laubengänge erschlossen, die an zwei Erschließungstürme aus Sichtbeton angebunden sind. Insgesamt 4 Wohnungstypen werden zur Miete angeboten, darunter drei Penthouses im Staffelgeschoss und sechs Maisonettes in den darunter liegenden Ebenen mit je rund 120 m² Fläche. Hinzu kommen sechs barrierefreie, 70 m² große Wohnungen und sechs Zweizimmerwohnungen mit je 60 m² Fläche.


Die beiden mächtigen Erschließungstürme auf der Nordseite lassen Bestand und Aufstockung optisch zu einer Einheit verschmelzen. © Kim Fohmann
Alle Wohnungen binden über die komplette Gebäudetiefe von 13 m durch und haben daher freien Blick nach Süden, Richtung Schwarzwald. Ihre Einrichtung ist schlicht, aber hochwertig: Eichenparkett, Fenster und Innentüren aus Holz sowie Fliesen. Grün ist nicht nur die Hülle des Gebäudes, sondern auch dessen Energiekonzept: Das Haus entspricht dem Förderstandard KfW Effizienzhaus 40-EE und wird von einer Photovoltaikanlage auf dem Flachdach mit Energie versorgt. Heizwärme bezieht NordGrün aus dem Karlsruher Fernwärmenetz.


Die ehemalige Postfiliale an der Stresemannstraße wurde um zwei Geschosse aufgestockt und grün verputzt. © Kim Fohmann
Vormieter durften bleiben
Als deutlich tragfähiger erwies sich das Nachbargebäude an der Straße: Dort kamen zwei weitere Geschosse in Holzbauweise dazu – ohne aufwändige Tischkonstruktion. Ohne weiteres wiederzuerkennen ist es dennoch nicht: Bestand und Aufstockung erhielten ein Wärmedämmverbundsystem aus Holzfaserdämmstoff und grünem mineralischem Putz. Die Kita im Erdgeschoss durfte bleiben, in den Obergeschossen sind fünf zusätzliche Wohneinheiten entstanden. Und die Telekom? Sie nutzt nach wie vor das Obergeschoss des Bestandsgebäudes – jetzt allerdings als Mieterin von NordGrün. Ins Erdgeschoss und den Keller der ehemaligen Ortsleitstelle ist mittlerweile ein unabhängiger Karlsruher Kulturverein mit seinen Studio- und Atelierrräumen eingezogen.
Architektur: Drescher Michalski Architekten
Bauherr: NordGrün, Inhaber Lukas Hechinger
Standort: Stresemannstr. 28, 76187 Karlsruhe (DE)
Tragwerksplanung: Schuler Ingenieurbüro für Bautechnik
























