Natürliche Konstruktion und Ästhetik
Wohnhaus aus Holz in London von Russell Jones
Holz prägt die Konstruktion und die Gestaltung des Einfamilienhauses in London. © Rory Gardiner
Beim Entwurf für ein Einfamilienhaus in London setzt das Architekturbüro Russell Jones auf eine nachhaltige Materialwahl: Holz prägt sowohl die Konstruktion als auch die Gestaltung des Projekts. Das 200 m² große, im Norden der britischen Hauptstadt gelegene Grundstück bot keine einfachen Voraussetzungen. Auf vier Seiten ist es von Bestandsgebäuden umgeben und nur durch einen schmalen Durchgang erreichbar. Außerdem galt es die strengen Vorgaben der Baubehörden in der denkmalgeschützten Wohngegend zu erfüllen.


Sibirische Lärche ziert die Fassaden. © Rory Gardiner


Douglasienpaneele im Inneren kleiden Böden, Decken und Wände. © Rory Gardiner
Einfach zu montierender Holzbau
Das lokale Planerteam stellte sich der Herausforderung und entwickelte – anstelle einer ehemaligen Garage und eines Gartens – ein neues Einfamilienhaus mit Atelier. Form und Erreichbarkeit des Bauplatzes beeinflussten dabei nicht nur die Kubatur, sondern auch die Konstruktion. Das Ergebnis ist ein Holzbau, dessen Einzelteile so dimensioniert wurden, dass man sie ohne große Baumaschinen liefern und montieren konnte.


Der Holzbau besteht aus mehreren, ineinandergreifenden Volumen. © Rory Gardiner
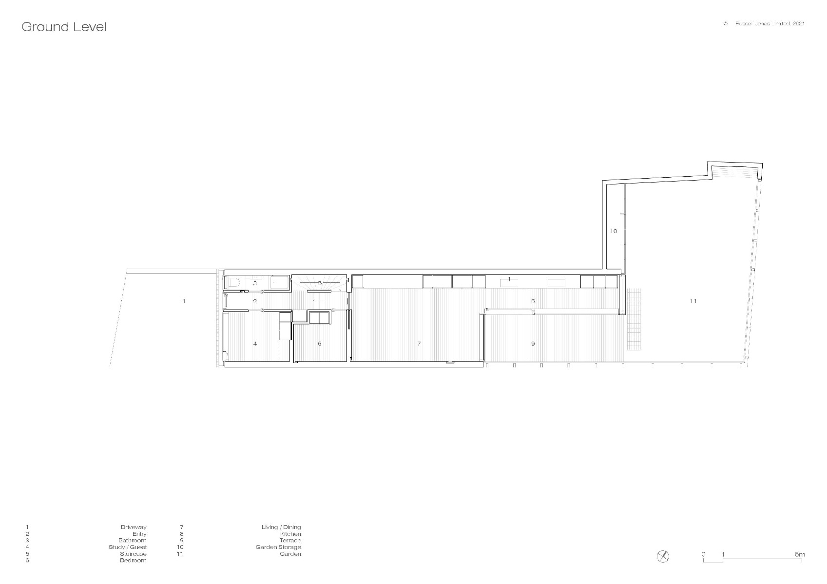
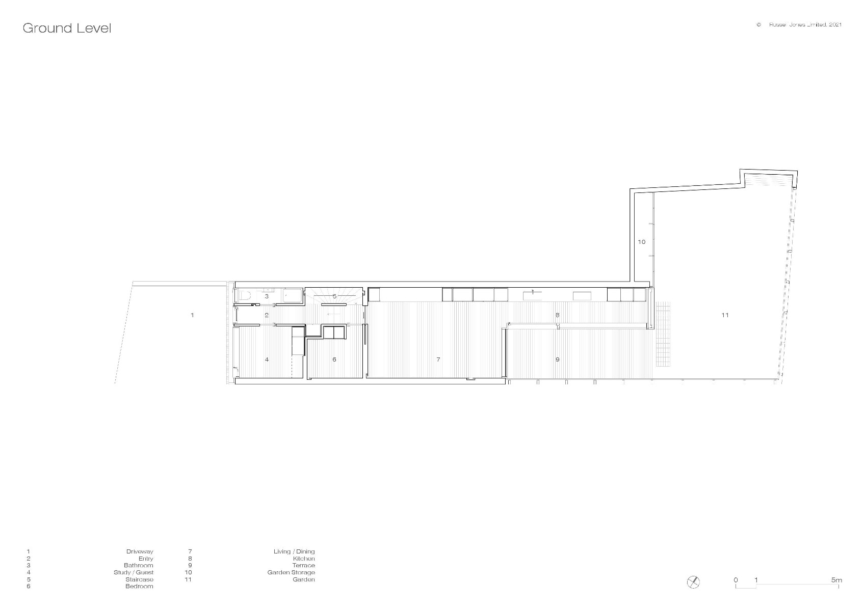
Räumliche Gliederung
Der Neubau besteht auf einer Länge von 20 m aus mehreren, ineinandergreifenden Volumen, die der natürlichen Topografie folgen. Bei einer maximalen Gebäudebreite von 5,10 m entstehen so im Inneren vier Ebenen. Sie sind jeweils als Zwischengeschosse konzipiert und bieten insgesamt 127 m² Wohnfläche. Sämtliche Räume ordnen sich vom Eingangsbereich bis hin zu einem rückseitigen, geschützten Außenbereich entlang einer zentralen Achse an. Neben einem Wohn-Essbereich mit Küche, offener Galerie und Gartenblick gibt es zwei Schlafräume, ein Gästezimmer und ein Atelier im Untergeschoss.


Das Holz sorgt für eine warme und ruhige Atmosphäre im Wohnbereich. © Rory Gardiner
Holz im Innen- und Außenbereich
Während an den Fassaden sibirische Lärche zum Einsatz kommt, kleiden Douglasienpaneele die Böden, Wände und Decken im Inneren des Wohnhauses. Sogar Fenster- und Türrahmen sowie die Einbauten sind im selben Holz ausgeführt. Der Naturwerkstoff stammt ausschließlich aus nachhaltiger Forstwirtschaft. Das optimiert die CO2-Bilanz des Neubaus und macht das Haus zu einem gemütlichen Zufluchtsort für seine Bewohnerinnen und Bewohner.
Architektur: Russell Jones
Bauherr: Privat
Standort: London (GB)
Tragwerksplanung: Techniker
















