Leimfreie Holzskulptur
Wohnhaus in Aarau von Gautschi Lenzin Schenker
Einfamilienhaus in Aarau, © Rasmus Norlander
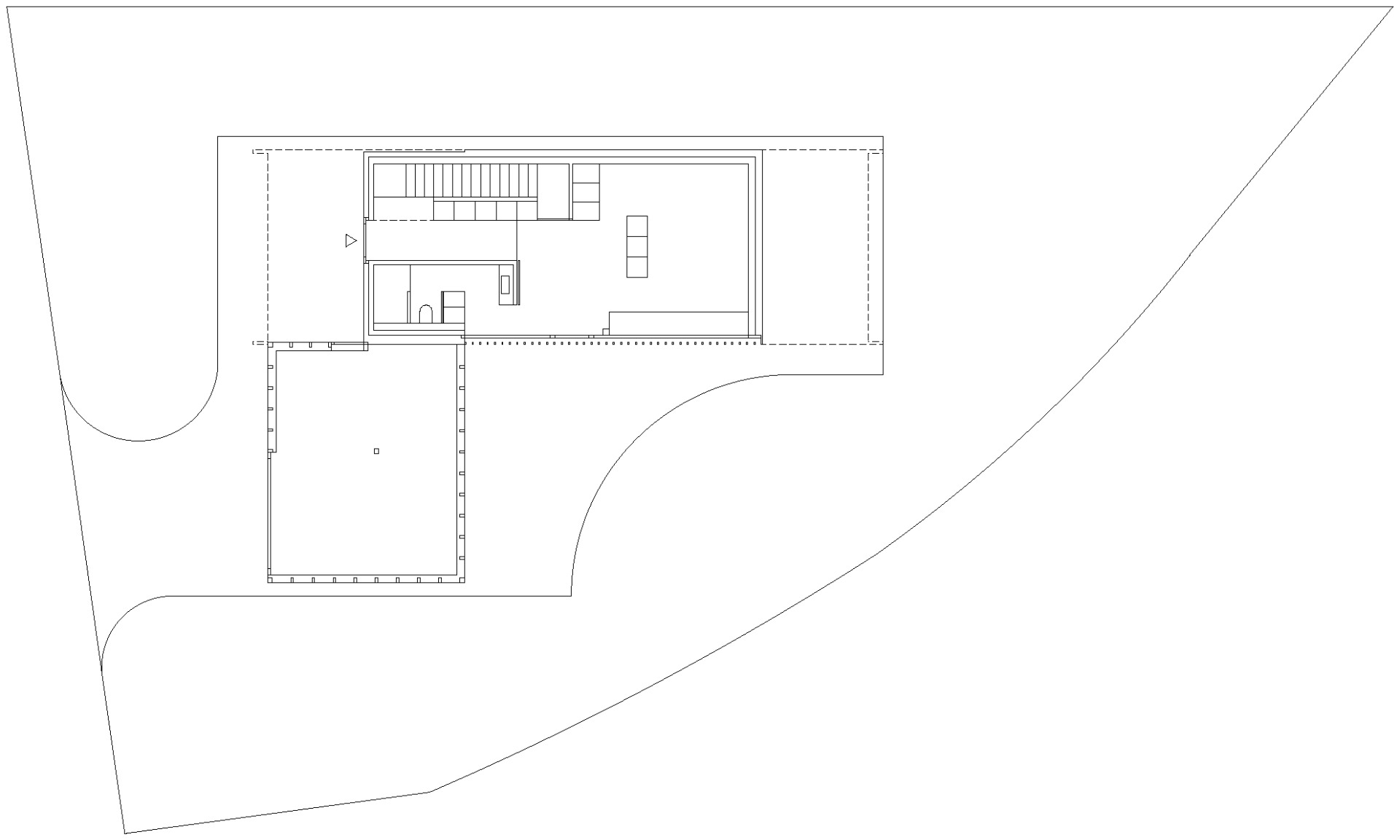
Am Stadtrand von Aarau, zwischen Wald und Feldern, haben Gautschi Lenzin Schenker eine bewohnbare Großskulptur aus Holz für eine vierköpfige Familie entworfen. Die Formensprache des dreigeschossigen Neubaus kennt man sonst eher von Betongebäuden – und die Anordnung des Raumprogramms stellt übliche Gepflogenheiten aus dem Einfamilienhausbau auf den Kopf.


Das Einfamilienhaus aus Holz liegt zwischen Wald und Feldern am Stadtrand von Aarau. © Rasmus Norlander
Raumprogramm
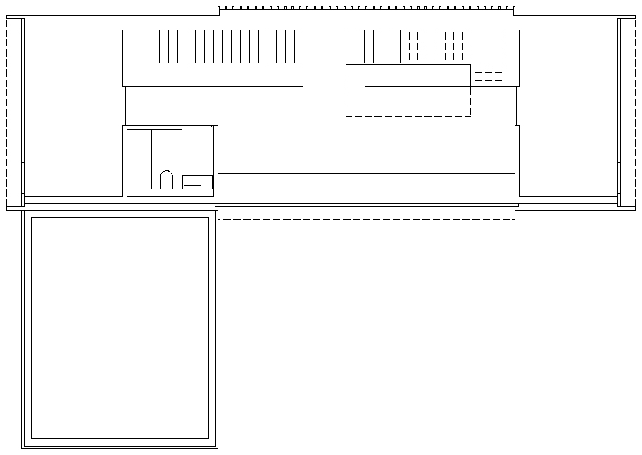
Im zurückgesetzten Erdgeschoss liegt, nur um eine Stufe erhöht gegenüber dem Eingangsbereich, das Elternschlafzimmer samt kleinem Arbeitsbereich. Im weit auskragenden Obergeschoss sind das Wohnzimmer der Familie und, an den beiden raumhoch verglasten Stirnseiten, die beiden Kinderzimmer untergebracht. Der Koch- und Essbereich befindet sich auf der obersten Ebene, mit Zugang zu zwei großzügigen Dachterrassen auf beiden Seiten. Ein Luftraum verbindet Wohn- und Essbereich in den beiden oberen Etagen. Eine einläufige Kaskadentreppe führt vom Eingang aus im Haus empor.
Schwarze Fassade aus Weißtannenholz
Die Gebäudeform kommt auch deswegen prägnant zur Wirkung, weil die Architekten auf Gartenzäune und sonstige Einfriedungen verzichteten. Nur die Auskragungen des Baukörpers selbst sowie die im Winkel angebaute Garage lassen vor dem Erdgeschoss einen hofähnlichen Außenbereich und einen überdachten Freisitz entstehen.


Das Bausystem heißt Holzpur. © Rasmus Norlander
„Holzpur“ heißt bezeichnenderweise das Bausystem, das die Architekten für die tragenden Wände verwendeten. Es ist ebenso leimfrei wie die Brettstapeldecken, die Kücheneinrichtung und sämtliche Schreinerarbeiten. Zum Einsatz kam ausschließlich Zentralschweizer Weißtannenholz – innen gelaugt und geseift und an den Fassaden schwarz gestrichen.


Innenraum, © Rasmus Norlander


Übergang zum Außenbereich, © Rasmus Norlander
Auch die Fensterrahmen sind aus Weißtanne, lediglich für die Treppen und Podeste sowie für Sitzbänke, Sideboard und Arbeitstisch im Gebäudeinneren verwendeten die Architekten Eschenholz. Als Fußboden dient ein Kalkspachtel auf einem kalkgebundenen Estrich.
Architektur: Gautschi Lenzin Schenker Architekten
Bauherr: privat
Standort: Tannerstraße, Aarau (CH)
Tragwerksplanung: Konstruktiv Ingenieure und Planer
HLS-Planung: Böni Gebäudetechnik
Elektroplanung: Hefti.Hess.Martignoni
Bauunternehmen: Küng Holzbau


























