Wohnen in einem Steinbruch
Wohnhaus in Ancede von Atelier Local
Das Wohnhaus liegt in einem ehemaligen Steinbruch in der Nähe von Baião, Portugal. © Francisco Ascensão
In einem langjährigen Prozess realisierte Atelier Local ein Wohnhaus in einem ehemaligen Steinbruch in der Nähe von Baião in Portugal. Verschiedene Herausforderungen zwangen das Architekturbüro, die Konstruktion und Materialität des Gebäudes auf ihre simpelsten Formen zu reduzieren. Im Rückblick erweist sich das Haus in Ancede als ein Gesamtkunstwerk des adaptiven Designs, von der Modellierung des Geländes bis hin zur Gestaltung der Türgriffe.


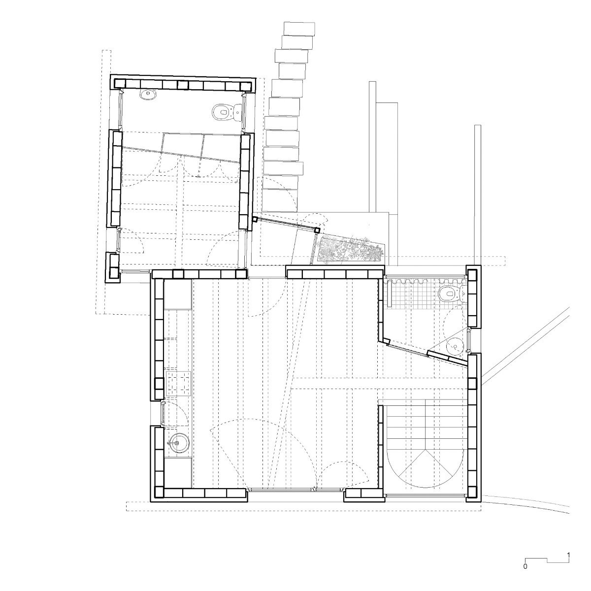
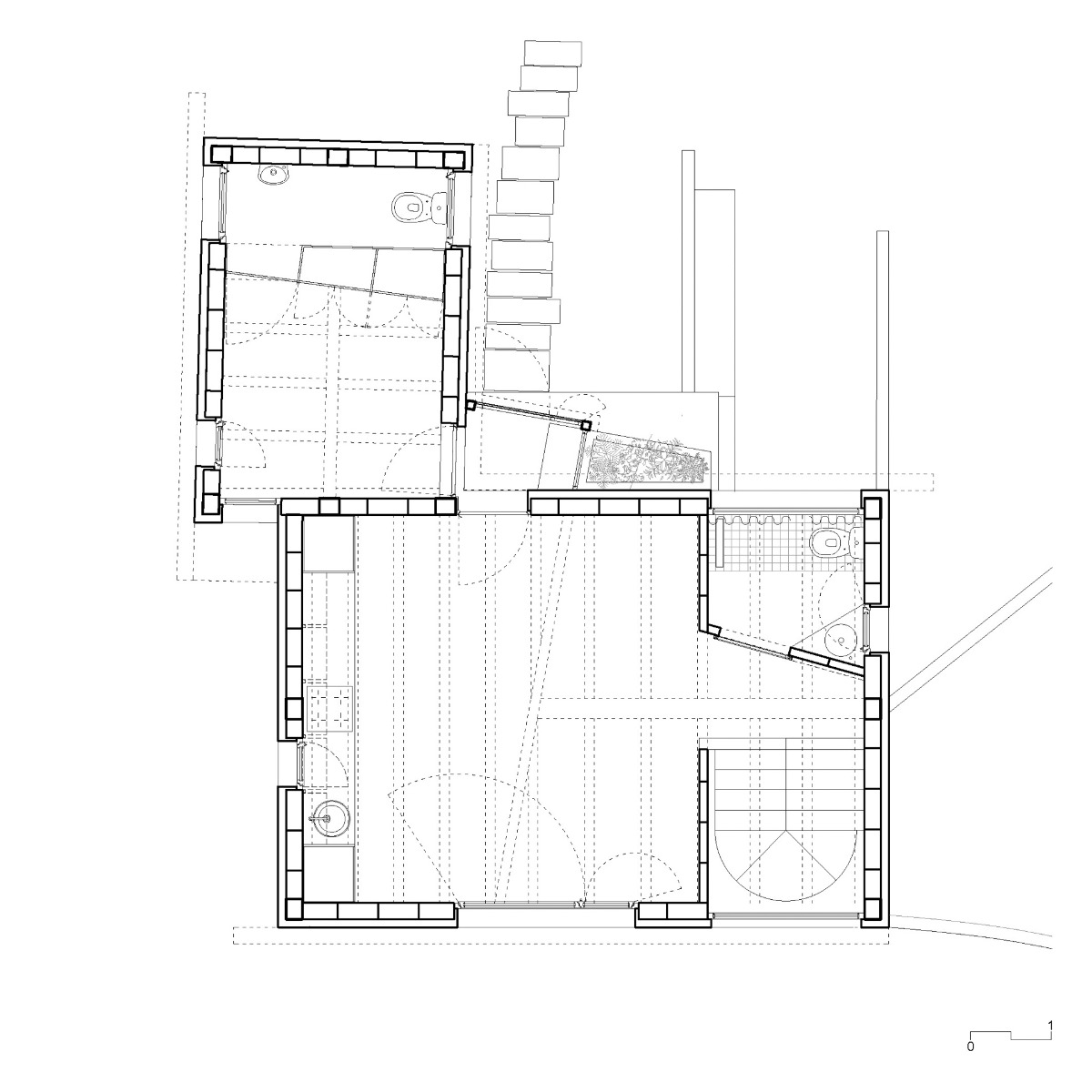
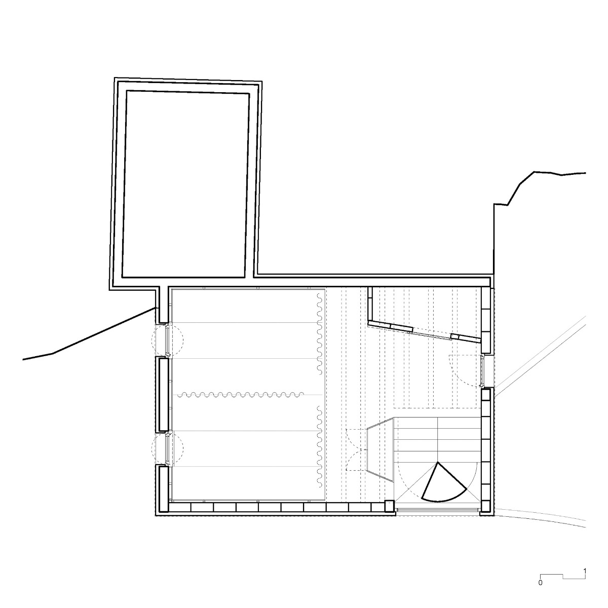
Im Wohnraum im zweiten Untergeschoss liegt das Herzstück des Hauses: ein öffenbares Rundfenster mit Blick über das angrenzende Naturschutzgebiet. © Francisco Ascensão
Pittoreske Umgebung
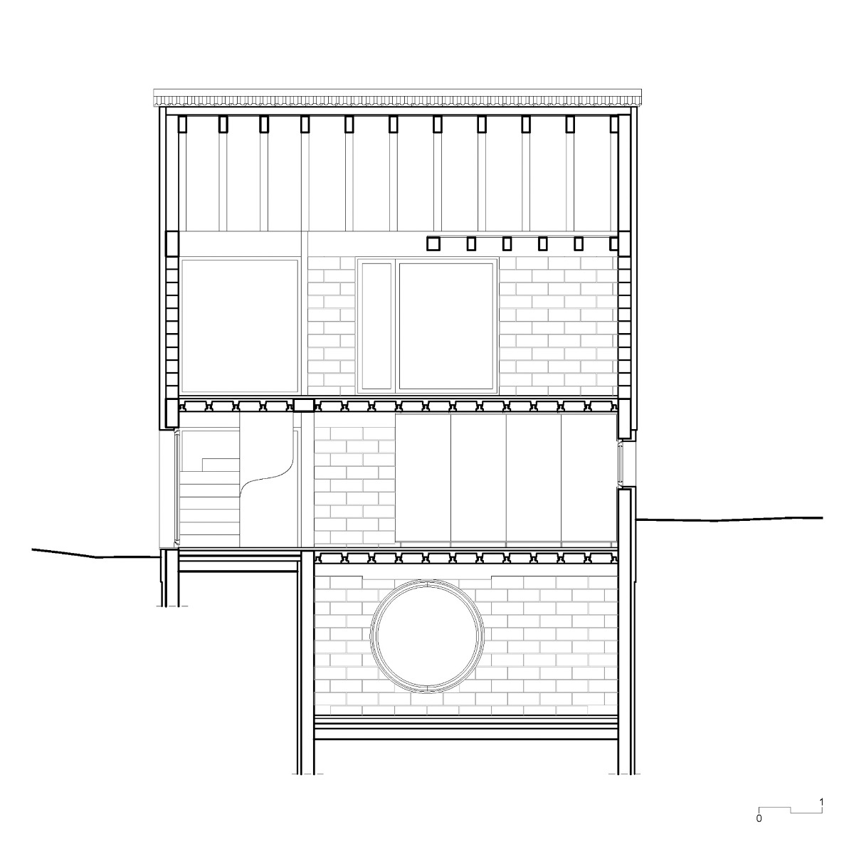
Ursprünglich planten die Bauherren, auf dem Grundstück in einem ehemaligen Steinbruch ein Wohnhaus mit etwa 300 m² Grundfläche zu errichten. Nach einer Reihe von Waldbränden wurde das Gelände jedoch Teil des umliegenden Naturschutzgebietes und die mögliche Grundfläche um das Fünffache reduziert. Trotz dieser Herausforderung setzte das Architekturbüro das Projekt auf eingeschränkter Fläche fort und entwarf einen umweltbewussten Bau mit Dach- und Deckenkonstruktion aus maßgefertigten Holzbalken und einer Wärmedämmung aus Korkplatten.
Einfaches Bauen aus Not
Während der Corona-Pandemie gestaltete sich die Suche nach qualifizierten Handwerkern schwierig. Das Architekturbüro sah sich daher gezwungen, das Haus nach den Vorgaben eines lokalen Bauunternehmens neu zu entwerfen, wobei nur die Kubatur des ursprünglichen Entwurfs beibehalten wurde. Die Konstruktion wurde bewusst einfach und kostengünstig gehalten, mit Betonstützen, -balken, wasserabweisenden MDF-Platten und wenigen weiteren Materialien. Lediglich eine dünn aufgetragene Schicht Farbe oder Lack bedeckt die Oberflächen, und die elektrischen Leitungen verlaufen auf Putz. Selbst die Aluminiumfensterrahmen stammen aus einem Katalog und sind anschließend in dem kräftigen Rot gestrichen, das dem Gebäude seinen besonderen Charakter verleiht.


Großformatige Fenster bieten einen Ausblick über die Landschaft. © Francisco Ascensão
Viel Raum auf wenig Fläche
Das Wohnhaus liegt an einem Hang, wobei sich der Eingang im obersten der drei Geschosse befindet. In den Untergeschossen sind drei Schlaf- und Wohnräume sowie Bäder angeordnet. Die Verbindung zwischen den Geschossen erfolgt über eine schmale, U-förmige Treppe. Zusätzlich ist über eine Leiter eine Hochebene über der Küche im Erdgeschoss zu erreichen. Ein eingeschossiger Nebenbau, der separat zugänglich ist, beherbergt einen weiteren Raum.


Betonfertigteile, MDF-Platten und Holzbalken prägen den Innenraum. © Francisco Ascensão


Die einfache Bauweise schaffte kombiniert mit dem ästhetischen Bewusstsein des Büros eine besondere Atmosphäre. © Francisco Ascensão
Anpassung als Entwurfsprinzip
Das fertige Wohnhaus entspricht nicht seiner ursprünglichen Vision und zeugt damit von der steten Notwendigkeit in der Architektur, zu reflektieren und auf äußere Einflüsse einzugehen. So wird das Gebäude zu einem herausragenden Beispiel für adaptives Design, Minimalismus und einfaches Bauen.
Architektur: atelier local
Mitarbeitende: João Paupério, Maria Rebelo, Francisco Craveiro
Bauherr: Privat
Standort: Baião (PT)
Zeitraum: 2018–2023
Bauunternehmen: Varandas & Alpendres
Schreinerarbeiten: Carpimestre
Ingenieurwesen: FACE lda
























